Trosobni stan Tar, Tar-Vabriga, Tar-Vabriga

€ 195.000
3
57 m²
1
1
Ne
Balkon

Bilješka

Oglas ažuriran 14. 04. 2026.
Opis

referenca: ALG-3310

Moderan stan u novogradnji sa namještajem! Prilika!

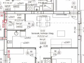
U slikovitom mjestu Tar, u neposrednoj blizini živopisnog grada Poreča, nalazi se ovaj novouređeni stan na prvom katu koji predstavlja izvrsnu priliku za kupnju kvalitetne nekretnine u jednom od najtraženijih dijelova Istre. Stan ima unutarnju površinu od 57,17 m² i natkriveni balkon veličine 9,61 m² koji pruža ugodan prostor za opuštanje ili objedovanje na otvorenom.

Pažljivo osmišljen raspored uključuje hodnik koji vodi u prostrani dnevni boravak s modernom kuhinjom, suvremenu kupaonicu te dvije prostrane spavaće sobe koje omogućuju ugodan i funkcionalan životni prostor. U kupaonici je postavljeno podno grijanje koje osigurava dodatnu udobnost i toplinu, dok su u ostalim prostorijama ugrađeni klima uređaji koji pružaju učinkovito grijanje i hlađenje tijekom cijele godine.

Ova nekretnina savršeno je prilagođena za stalno stanovanje, korištenje za odmor ili kao sigurna investicija s izvrsnim potencijalom za ostvarenje prihoda putem turističkog najma.

Razgled nekretnine moguć je uz potpisivanje ugovora o posredovanju, koji predstavlja pravnu osnovu za daljnje postupke sukladno Zakonu o posredovanju u prometu nekretnina. U slučaju realizacije kupoprodaje, agencijska provizija iznosi 3% + PDV te se naplaćuje prilikom sklapanja predugovora ili glavnog ugovora o kupoprodaji.

Tar je poznat po opuštenom načinu života i izvrsnoj infrastrukturi koja uključuje trgovine, restorane, vrtiće i sve sadržaje potrebne za svakodnevni život. Lokacija omogućuje brz pristup Jadranskoj obali, prekrasnim plažama i kulturnim znamenitostima Poreča, što ovu nekretninu čini odličnim izborom za sve koji traže kvalitetan život u Istri.

Vaše zadovoljstvo naša je misija. Radujemo se budućoj suradnji!

https://alphaluxegroup.hr

ID CODE: ALG-3310

Ana Budimir
Voditeljica ureda Poreč
Mob: +385 99 441 3836
Tel: +385 52 204 933
E-mail: ana@alphaluxegroup.com
https://alphaluxegroup.com

Robert Budimir
Agent s licencom
Mob: +385 95 363 1892
Tel: +385 52 204 933
E-mail: robert@alphaluxegroup.com
https://alphaluxegroup.com

Marijana Budimir
Agent s licencom
Mob: +385 95 363 1893
Tel: +385 52 204 933
E-mail: marijana@alphaluxegroup.com
https://alphaluxegroup.com
Značajke
Vrsta
Stan
Ugovor
Prodaja
Kat
1 kat
Dizalo
Ne
Površina
57 m²
Prostorije
3
Spavaće sobe
2
Kupaonice
1
Balkon
Da
Terasa
Ne
Klimatizacija
Samostalno, hlađenje/grijanje
Ostale karakteristike
  • Protuprovalna vrata
Informacije o cijeni
Cijena
€ 195.000
Cijena po m²
3.421 €/m²
Energetska učinkovitost
  • Klima uređaj

    Samostalno, hlađenje/grijanje
  • Energetski certifikat

    Neklasificirano
Otkrijte svaki kutak nekretnine
+9
Dodatne mogućnosti

Obratite se oglašivaču

Ili