Višeobiteljska kuća Kaldanija, Buje, Buje

€ 310.000
5
109 m²
Ne

Bilješka

Oglas ažuriran 16. 02. 2026.
Opis

referenca: 133-117

Istra, Buje okolica - dvojna kuća 109m2, 3 spavaće sobe, u izgradnji

Kaiser Immobilien predstavlja stan u dvojnoj kući u malom mjestu u okolici Savudrije nadomak Portoroža i Slovenije. Umag je udaljen 6 km, Savudrija 7 km, do Portoroža ima 13 km, a do mora ima 3 km.

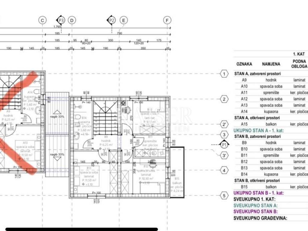
Stan B predstavlja polovicu dvojne kuće u izgradnji od 109m2 (105m2 stan+ balkon 4m2). Neto korisna površina stana iznosi 103m2.
Stan ima u prizemlju kuhinju 12m2, dnevni boravak 21m2, kupaonicu 5m2 i spremište 5m2. Na katu se nalaze 3 spavaće sobe od 9m2, 10m2 i 12m2, kupaonica od 6m2 i spremište 4 m2. Na katu je balkon od 4m2. Iznimno praktičan i funkcionalan raspored zadovoljite će sve potrebe za svakodnevni život ili turistički boravak.

Nekretnina je pred početkom izgradnje, prodaje se po sistemu ključ u ruke, a predviđeni završetak radova je kraj 2026. godine. Kupac nekretnine ima mogućnost sa prodavateljem dogovoriti sve detalje oko uređenja dvojne kuće odnosno stana, dinamike plaćanja te je ovo prilika koja omogućava puno fleksibilnosti i opcija za prilagodbu po željama kupca. Kupcu pripada i dio okućnice stana.

Izvrsna prilika za kupnju nekretnine po korektnoj cijeni koja se može koristiti za stanovanje ili turistički najam.

Posrednička naknada za kupca iznosi 3% + PDV. Naknada pokriva sve usluge vezane uz kupnju i plaća se samo u slučaju kupnje nekretnine, pri sklapanju prvog pravnog posla.

Slobodno nas kontaktirajte za dodatne informacije i dogovor oko obilaska nekretnine:
Damir Mlacović
e-mail: damir@kaiser-immobilien.hr
tel: +385-98-339-933

ID CODE: 133-117

Damir Mlacović
Agent s licencom u posredovanju u prometu nekretnina
Mob: +38598339933, +385995677888
E-mail: damir@kaiser-immobilien.hr
www.kaiser-immobilien.hr
Značajke
Vrsta
Višeobiteljska kuća
Ugovor
Prodaja
Katovi zgrade
1
Dizalo
Ne
Površina
109 m²
Prostorije
5
Spavaće sobe
3
Balkon
Ne
Terasa
Ne
Klimatizacija
Samostalno, hlađenje/grijanje
Informacije o cijeni
Cijena
€ 310.000
Cijena po m²
2.844 €/m²
Energetska učinkovitost
  • Godina izgradnje

    2026
  • Klima uređaj

    Samostalno, hlađenje/grijanje
  • Energetski certifikat

    Neklasificirano
Otkrijte svaki kutak nekretnine
+9
Dodatne mogućnosti

Obratite se oglašivaču

Ili