map icon

Obiteljska kuća 80 m², Pašman

Pašman
€ 248.000
80 m²

Bilješka

Oglas ažuriran 30. 04. 2026.
Opis

referenca: 236

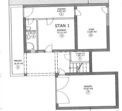
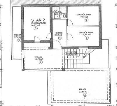
Na mirnoj lokaciji u Ždrelcu na otoku Pašmanu, svega 140 metara od mora i uređenih plaža, smjestila se lijepa obiteljska kuća sadvije potpuno odvojene stambene jedinice, garažom i dodatnim potkrovnim prostorom. Kuća se nalazi na parceli površine 172 m, a sastoji se od prizemlja i kata, s praktično odvojenim ulazima. U prizemlju se nalazi jednosobni stan površine cca 40 m, koji se sastoji od spavaće sobe, kupaonice te manje kuhinje i dnevnog boravka s izlazom na terasu i dvorište, dok kat obuhvaća dvosobni stan površine cca 40 m s prostranom djelomično natkrivenom terasom površine oko 45 m, s pogledom na more i okolni krajolik. Na ovu terasu se nadovezuje vanjsko stubište koje vodi, na još jednu, krovnu terasu površine 12 m, s koje se otvara izuzetan panoramski pogled na more, Pašmanski most koji povezuje otoke Pašman i Ugljan, te samo mjesto Ždrelac. Sve su terase orijentirane prema sjeveroistoku, što ih čini idealnim mjestom za boravak i druženje tijekom vrućih ljetnih dana, budući da pružaju prirodan hlad i ugodnu atmosferu. A zahvaljujući njihovoj prostranosti, svatko može pronaći kutak za privatnost i potpuni odmor. Unutrašnjost kuće uređena je jednostavno i funkcionalno, s naglaskom na udobnost i boravak na otvorenom. Kuća je okružena mediteranskim zelenilom i mirnim susjedstvom, što stvara autentičan otočni ugođaj savršen za sve koji traže mir, blizinu mora i općenitu kvalitetu života u jednom od najugodnijih dijelova otoka Pašmana. Kuća još posjedujegaražu površine 19,8 m te parkirno mjesto, dok se u neuređenom potkrovlju pruža mogućnost uređenja idealno za spremište, radionicu ili manji stambeni prostor (galeriju). Ždrelac je slikovito naselje smješteno na spoju otoka Pašmana i Ugljana, poznato po bistrini mora, mirnim uvalama i autentičnom mediteranskom ambijentu. Zbog svoje blizine kopnu (mostom je povezan s otokom Ugljanom i trajektnimlinijama Preko-Zadar i Tkon-Biograd), predstavlja izvrsno mjesto za obiteljski život, vikendicu ili turističko ulaganje.
Značajke
Vrsta
Obiteljska kuća
Ugovor
Prodaja
Površina
80 m²
Namješteno
Ne
Klimatizacija
Hlađenje/grijanje
Informacije o cijeni
Cijena
€ 248.000
Cijena po m²
3.100 €/m²
Energetska učinkovitost
  • Klima uređaj

    Hlađenje/grijanje
  • Energetski certifikat

    Oslobođeno
Otkrijte svaki kutak nekretnine
+21
Dodatne mogućnosti

Obratite se oglašivaču

Ili