Četverosobni stan novo, drugi kat, Sinj

€ 353.351
4
119 m²
1
2
Da

Bilješka

Oglas ažuriran 30. 04. 2026.
Opis

referenca: I33039

Sinj S9 moderan život u srcu Dalmacije!

Ekskluzivna novogradnja kao savršena alternativa Splitu za one koji traže mir, prirodu i vrhunsku kvalitetu stanovanja.

Predstavljamo Vam prestižni projekt modernih stambenih jedinica u mirnom dijelu Sinja, okruženom zelenilom i panoramskim pogledima na dalmatinske planine. Ova elegantna stambena zgrada s ukupno 9 luksuznih stanova pruža savršen balans profinjenog dizajna, vrhunske opreme i privatnosti.

Projekt je osmišljen za zahtjevne kupce koji ne pristaju na kompromise one koji traže više od stana i žele prostor koji odražava njihov stil i životne vrijednosti.

Vrhunska gradnja i materijali, moderna arhitektura s naglaskom na eleganciju i prozračnost, mirna lokacija uz odličnu prometnu povezanost, osigurana parkirna mjesta i ostave za svaki stan, privatni vrtovi u prizemlju idealni za potpunu privatnost.

Posebno izdvajamo:
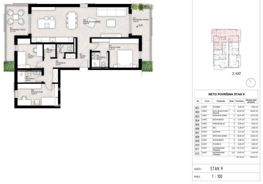
stan S9 na 2. katu, neto površine 119,78 m, s pažljivo osmišljenim rasporedom: tri prostrane spavaće sobe, prostrani dnevni boravak, kuhinja s blagovaonicom, 2 kupaonice, Wc, hodnik, predosoblje, ostava i 2 natkrivene terase od 13,17m2 i 10,67m2 za uživanje u pogledu i miru.

Natkriveno parkirno mjesto: 7.500
Nenatkriveno parkirno mjesto: 5.000

Katnost zgrade je Suteren + Prizemlje + 2. kata, visine 12,91 m, mjereno od najniže kote uređenog terena do gornjeg ruba stropne konstrukcije.
Vertikalna komunikacija među etažama omogućena je trokrakim stepeništem i električnim dizalom.
Konstrukcija zgrade je armiranobetonska. Zidovi vanjske fasade oblažu se toplinskom izolacijom, pločama kamene vune kaširane staklenim voalom (kao KI FPL 035 klasa gorivosti A1 prema HRN EN 13501-1). Završna obloga je silikonska fasada.
Vanjski prozori i vrata su PVC sa ostakljenjima od trostruko izolirajućeg stakla s dva stakla niske emisije (Low-e) zvučno-izolacijske vrijednosti 34 dB. Kao zaštita od sunca ugradit će se aluminijski klizni brisoleji. Ulazna vrata u stanove izvesti će se kao protuprovalna. Sva unutarnja stolarija je tipska.
Na svim podovima predviđena je postava porculanskih pločica i gotovih višeslojnih parketa, srednje klase probira. Gotovi višeslojni parketi se ne bruse i ne lakiraju se. Na pod terasa predviđena je postava protukliznih porculanskih pločica.
Pregradni zidovi su gipskartonski s pocinčanom potkonstrukcijom. Stropovi stanova izvest će se kao spušteni od gipskaronskih ploča, s ugrađenom mineralnom vunom prema negrijanim i vanjskim dijelovima.
Predviđena je ugradnja porculanskih pločica na podne i zidne površine kupatila, prema obradama namijenjenima za pojedino mjesto ugradnje. Kupaonice su opremljene vrhunskom keramikom i sanitarijama renomiranih proizvođača (Geberit, Hansgrohe, Catalano, Novellini), s električnim podnim grijanjem. Kao glavni sustav za grijanje i hlađenje odabrana su tri multi split sustava. Za svaku stambenu jedinicu po jedan zaseban sustav. Prostor oko građevine će se urediti kao uređene zelene površine na kojima će se posaditi autohtona stabla kao i bilje primjereno mediteranskom podneblju. Kolni pristup i nenatkriveni parking će se asfaltirati, a natrkiveni parking će se izvesti s AB pločom debljine 20 cm sa završnom obradom od protukliznog premaza s kvarcnim posipom.

Ovo nije samo nekretnina, već investicija u kvalitetu života dom koji pruža udobnost, sigurnost i profinjenost svakog detalja.
Značajke
Vrsta
Stan
Ugovor
Prodaja
Kat
2 kat
Dizalo
Da
Površina
119 m²
Prostorije
4
Spavaće sobe
3
Kupaonice
1
Namješteno
Ne
Garažno mjesto, parkirna mjesta
1 na zajedničkom parkingu
Grijanje
Samostalno, napajanje električnom energijom
Klimatizacija
Hlađenje/grijanje
Informacije o cijeni
Cijena
€ 353.351
Cijena po m²
2.969 €/m²
Energetska učinkovitost
  • Godina izgradnje

    2025
  • Stanje

    Novo / U izgradnji
  • Grijanje

    Samostalno, napajanje električnom energijom
  • Klima uređaj

    Hlađenje/grijanje
Otkrijte svaki kutak nekretnine
+24
Dodatne mogućnosti

Obratite se oglašivaču

Ili