Obiteljska kuća Sukošan, Sukošan

€ 10.000
5+
411 m²
3+
Ne
Terasa

Bilješka

Oglas ažuriran 02. 03. 2026.
Opis

referenca: 736

SUKOŠAN - Luksuzna vila prvi red uz plažu- smart sistem

LUKSUZNA SMART VILA S BAZENOM I WELLNESSOM – MODERNA ARHITEKTURA I PANORAMSKA KROVNA TERASA

Prodaje se vrhunska luksuzna vila opremljena smart home sustavom, raspoređena na tri etaže: podrum, prizemlje i kat s krovnom terasom. Vila je projektirana s naglaskom na komfor, privatnost i suvremeni dizajn.

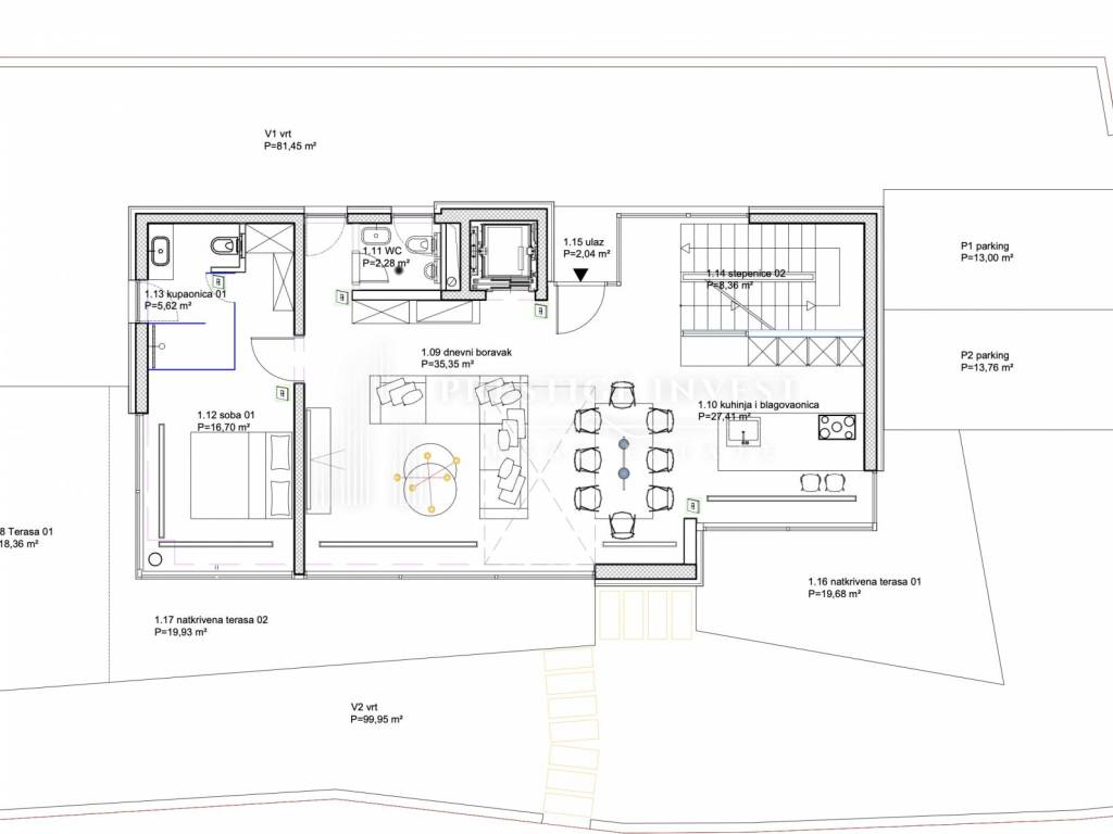
PRIZEMLJE
Unutarnja površina:
Ulaz – 2,04 m²
WC – 2,28 m²
Kupaonica 01 – 5,62 m²
Spavaća soba 01 – 16,70 m²
Dnevni boravak – 35,35 m²
Kuhinja i blagovaonica – 27,41 m²
Stubište – 8,36 m²

Vanjski dio prizemlja:
Natkrivena terasa 01 – 19,68 m²
Natkrivena terasa 02 – 19,93 m²
Terasa 01 – 18,36 m²
Vrt 1 – 81,45 m²
Vrt 2 – 99,95 m²
Parking P1 – 13,00 m²
Parking P2 – 13,76 m²

Prizemlje karakterizira prostrani open-space koncept dnevnog boravka s kuhinjom i blagovaonicom, velikim staklenim stijenkama te direktnim izlazom na terase i vrt.

1. KAT
Hodnik – 14,25 m²
Soba 02 – 16,10 m²
Soba 03 – 13,68 m²
Soba 04 (master) – 25,50 m²
Kupaonica 02 – 6,24 m²
Kupaonica 03 – 5,98 m²
Kupaonica 04 – 5,80 m²
Stubište – 9,03 m²

Vanjski dio kata:
Natkrivena terasa 03 – 4,64 m²
Natkrivena terasa 04 – 7,94 m²
Na katu se nalaze tri spavaće sobe, svaka s vlastitom kupaonicom, dok master soba pruža dodatni luksuz i privatnost.

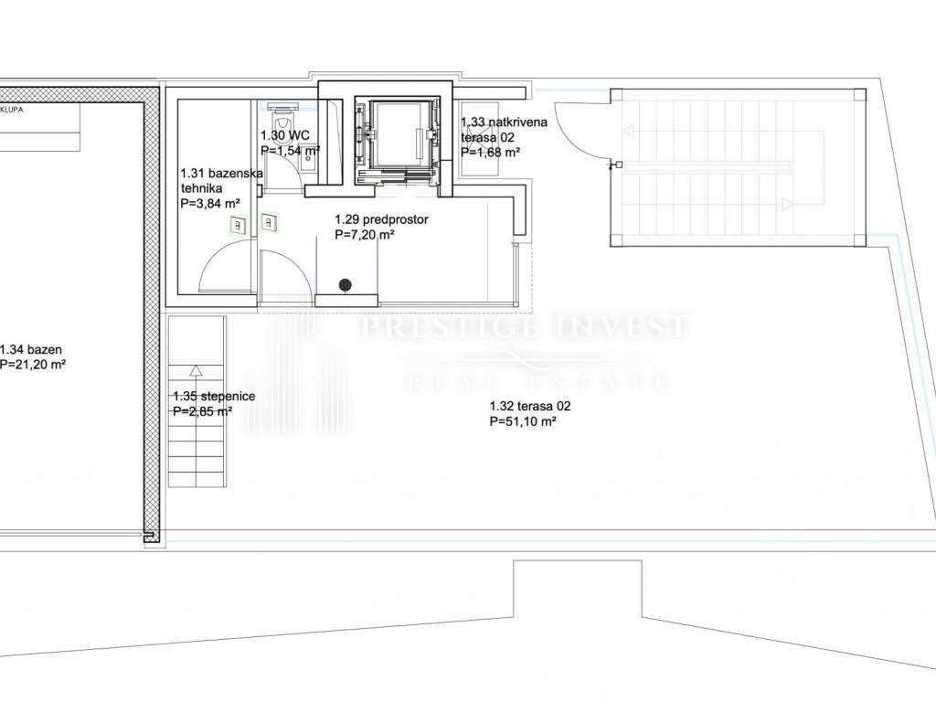
KROVNA TERASA - WELLNESS & ZONA RELAKSACIJE
Predprostor – 7,20 m²
WC – 1,54 m²
Bazenska tehnika – 3,84 m²
Bazen – 21,20 m²
Stubište – 2,85 m²
Natkrivena terasa 02 – 1,68 m²
Terasa 02 (krovna / gornja razina) – 51,10 m²
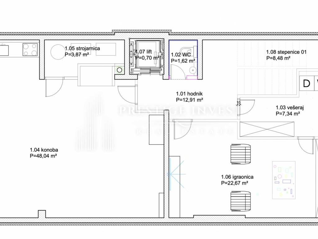
Podrumska etaža osmišljena je kao privatna oaza s wellness zonom, bazenom i prostorom predviđenim za roštilj i druženja.

PODRUM
Strojarnica - 3,87m2
Konoba- 48,04m2
Hodnik - 12,91m2
Igraonica 22,67m2
Vešeraj 7,34m2
Stepenište 8,48m2

DODATNE PREDNOSTI
Smart home sustav upravljanja rasvjetom, grijanjem i videonadzorom
Podno grijanje i klimatizacija
Moderan dizajn i vrhunski materijali
Velike staklene stijene i obilje prirodnog svjetla
Krovna terasa s panoramskim pogledom
Privatni bazen na krovnoj terasi
Lift koji povezuje sve etaže
2 parkirna mjesta

CIJENA u oglasu nije ispravna, navedena je zbog sinkronizacije oglasa!!

Cijena na UPIT!

KONTAKT
Za dodatne informacije, fotografije, dokumentaciju ili dogovor razgledavanja:
Telefon: +385 95 73 55 171
E-mail: info@prestigeinvest.hr

ID CODE: 736

Ivana Ančić
Voditelj ureda
Mob: +385 95 73 55 171
Tel: +385 95 588 8082
E-mail: info@prestigeinvest.hr
www.prestigeinvest.hr
Značajke
Vrsta
Obiteljska kuća
Ugovor
Prodaja
Katovi zgrade
4
Dizalo
Ne
Površina
411 m²
Prostorije
5+
Spavaće sobe
4
Kupaonice
3+
Balkon
Ne
Terasa
Da
Garažno mjesto, parkirna mjesta
2 na zajedničkom parkingu
Grijanje
Samostalno, zrak
Klimatizacija
Samostalno, hlađenje/grijanje
Ostale karakteristike
  • Alarmni sustav
Informacije o cijeni
Cijena
€ 10.000
Cijena po m²
24 €/m²
Energetska učinkovitost

Potrošnja energije

A+

Otkrijte svaki kutak nekretnine
+41
Dodatne mogućnosti

Obratite se oglašivaču

Ili