Četverosobni stan Centar, Gornji Grad - Medveščak, Medveščak - Šalata, Zagreb

€ 603.750
4
121 m²
1
2
Ne
Balkon

Bilješka

Oglas ažuriran 19. 02. 2026.
Opis

referenca: 23

Zagreb Centar, Đorđićeva, 121m2, 4s, prekrasan građanski stan (prodaja)

Prodaje se prekrasan građanski stan na drugom katu predivno obnovljene i uredno održavane zgrade (ukupno tri kata + tavan + podrum). Zgrada je 2025 godine kontrukcijski obnovljena (fasada, krov, haustor).

Zgrada je u postupku ishođenja sredstava za lift. Suglasnosti suvlasnika su potpisane.

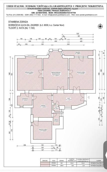
Stan površine 121 m² odlikuju prostranost i visoki stropovi (3,30 m), a sastoji se od:
• tri velike i prostrane sobe (25.94 m2, 24.84 m2 i 23.10 m2)
• dodatne djevojačke sobe (10.52 m2)
• reprezentativnog ulaznog foajea (11,27 m2)
• kuhinje (13.85 m2)
• ostave (2.42 m2)
• kupaonice (5.23 m2)
• odvojenog toaleta (1.24 m2)
• prekrasnog balkona u secesijskom stilu (4.68 m2)

Tehničke karakteristike:
• Centralno etažno grijanje
• Novi kondenzacijski bojler
• Tri klima uređaja
• Spremište u podrumu zgrade

Stan se prodaje nenamješten.

NAJAM: stan je moguće iznajmiti. Cijena najma: 2.000€ mjesečno plus režije

Dokumentacija i vlasništvo su uredni.

*Nije moguća zamjena za drugu nekretninu*

Parking je javni naplatni (zona).

Savršena nekretnina za život, poslovnu djelatnosti ili kao investicija.

Za vise informacija o ovoj posebnoj nekrentini obratite nam se s povjerenjem.

Agencijska provizija za kupca: 2% od postignute cijene uvećana za PDV

ID CODE: 23

Nikolina Gregorić
Direktorica prodaje i operacija
Mob: +385 91 605 7590
E-mail: nikolina@amg-nekretnine.hr
www.amg-nekretnine.hr
Značajke
Vrsta
Stan
Ugovor
Prodaja
Kat
2 kat
Katovi zgrade
3
Dizalo
Ne
Površina
121 m²
Prostorije
4
Spavaće sobe
4
Kupaonice
1
Balkon
Da
Terasa
Ne
Grijanje
Centralno, podno grijanje
Klimatizacija
Samostalno, hlađenje/grijanje
Informacije o cijeni
Cijena
€ 603.750
Cijena po m²
4.990 €/m²
Energetska učinkovitost
  • Godina izgradnje

    1918
  • Grijanje

    Centralno, podno grijanje
  • Klima uređaj

    Samostalno, hlađenje/grijanje
  • Energetski certifikat

    Neklasificirano
Tlocrt
Otkrijte svaki kutak nekretnine
+19
Dodatne mogućnosti

Obratite se oglašivaču

Ili