Obiteljska kuća 202 m², novo, Samobor

€ 750.000
5
202 m²
2
Ne

Bilješka

Oglas ažuriran 12. 03. 2026.
Opis

referenca: I34490

Kuća, novogradnja, Zagrebačka županija, Samobor-okolica, 202,26m2, samostojeća

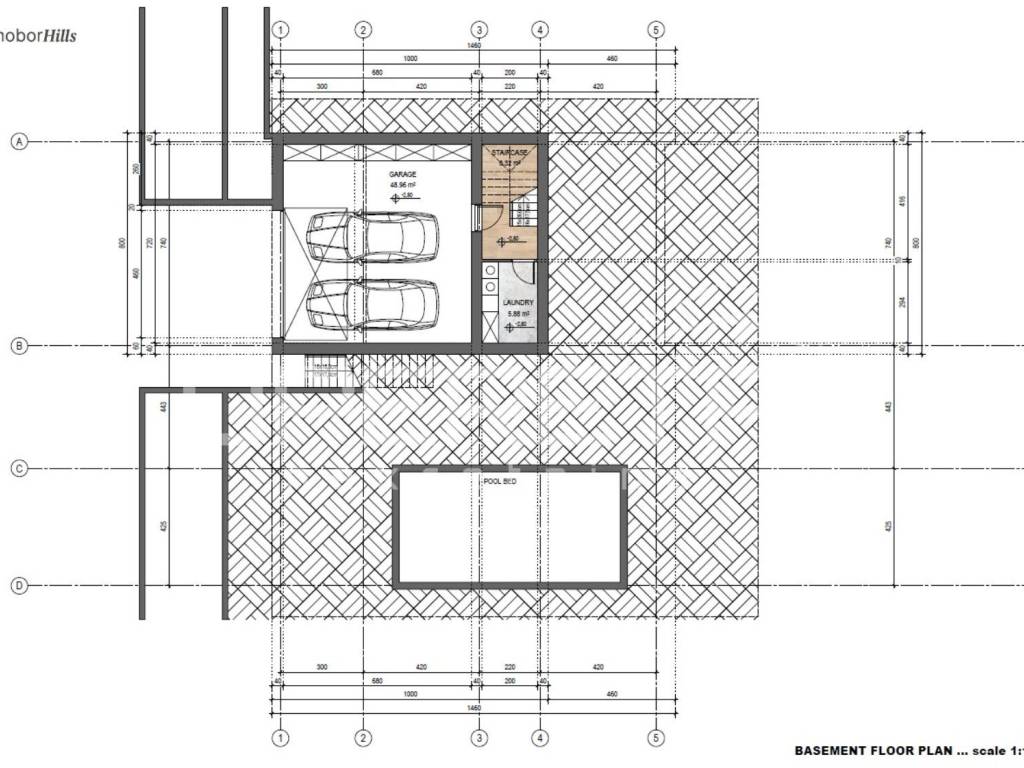
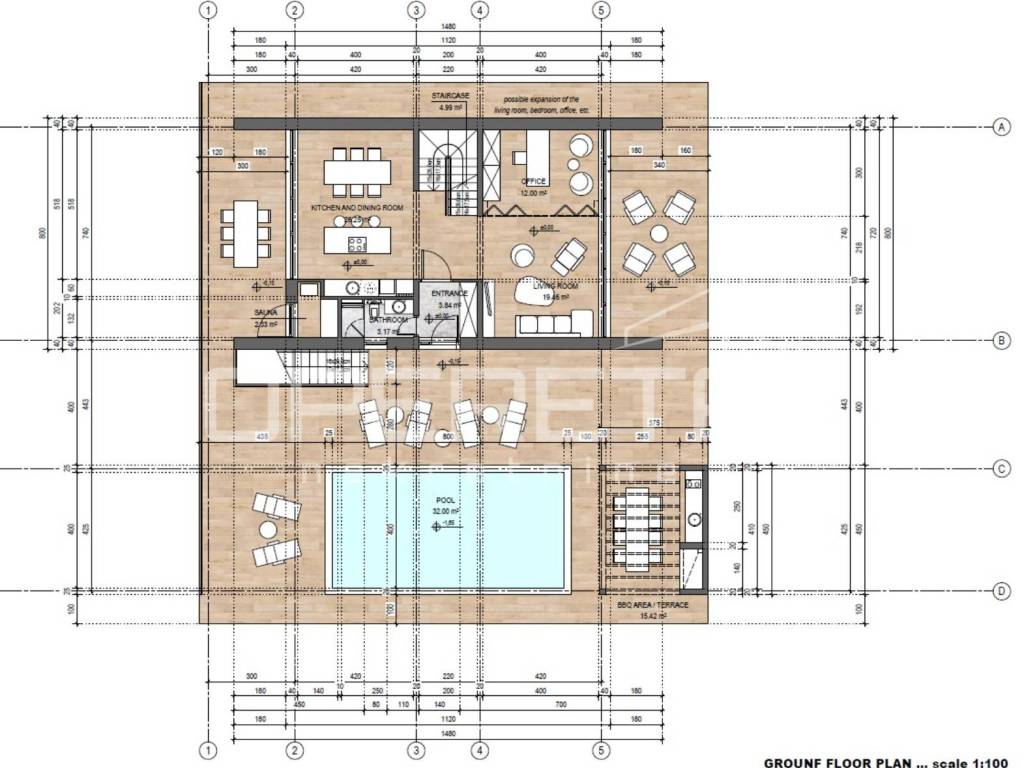
U izgradnji je projekt "Samobor Hills" samostoječih luksuznih vila s bazenom na fantastičnoj lokaciji smještenoj na brdu u neposrednoj blizini Samobora na samo 5 minuta automobilom od samog centra grada.
Mirno okruženje i zelenilo pružaju uvjete za ugodan i kvalitetan život izvan gradske buke.
Oglašena akcijska cijena vrijedi za predugovore potpisane do 1.5.2026.godine!
Više informacija na upit!
Značajke
Vrsta
Obiteljska kuća
Ugovor
Prodaja
Kat
1
Dizalo
Ne
Površina
202 m² | poslovni prostor 1.004 m²
Prostorije
5
Spavaće sobe
4
Kupaonice
2
Namješteno
Ne
Garažno mjesto, parkirna mjesta
1 na zajedničkom parkingu
Grijanje
Samostalno, napajanje električnom energijom
Klimatizacija
Hlađenje/grijanje
Detalji površine

Stambeni prostor

Kat
1
Površina
202,0 m²
Koeficijent
100%
Vrsta površine
Glavni
Komercijalna površina
202,0 m²

Zemljište

Kat
Prizemlje
Površina
802,0 m²
Koeficijent
100%
Vrsta površine
Dodatno
Komercijalna površina
802,0 m²
Informacije o cijeni
Cijena
€ 750.000
Cijena po m²
747 €/m²
Energetska učinkovitost
  • Godina izgradnje

    2026
  • Stanje

    Novo / U izgradnji
  • Grijanje

    Samostalno, napajanje električnom energijom
  • Klima uređaj

    Hlađenje/grijanje
Otkrijte svaki kutak nekretnine
+7
Dodatne mogućnosti

Obratite se oglašivaču

Ili