Trosobni stan Privlaka, Privlaka

€ 250.000
3
75 m²
1
1
Ne
Terasa

Bilješka

Oglas ažuriran 06. 03. 2026.
Opis

referenca: 149

PRIVLAKA,NOVOGRADNJA,1 KAT, 2-SOBAN STAN S POGLEDOM NA MORE,ZAJEDNIČKI BAZEN G-102

Predstavljamo Stan S102, moderan i funkcionalan dvosoban stan smješten na 1. katu stambenog kompleksa u Privlaci, svega 120 metara od mora, s prekrasnim pogledom na more i južnom orijentacijom koja osigurava obilje prirodnog svjetla tijekom cijelog dana.
Posebna prednost ove nekretnine jest činjenica da je stan potpuno dovršen te odmah useljiv, što budućem vlasniku omogućuje brzo i bezbrižno preuzimanje bez dodatnih radova ili čekanja.
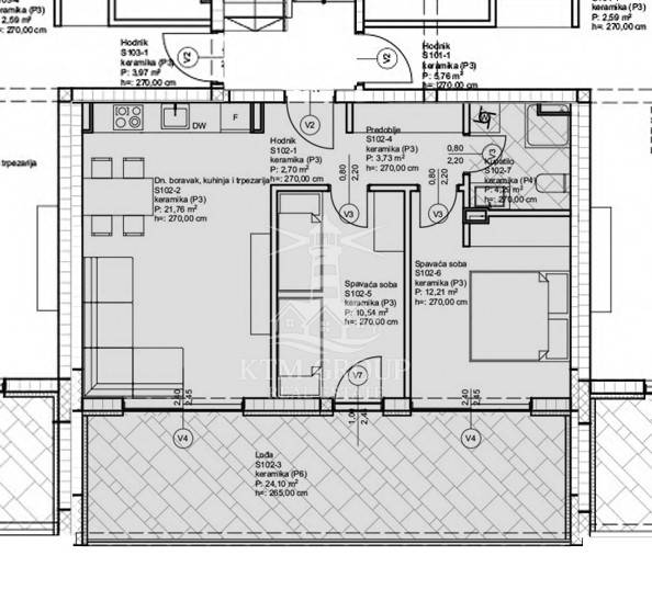
Sastoji se od:
• hodnika (2,70 m²)
• predsoblja (3,73 m²)
• blagovaonice s kuhinjom i dnevnim boravkom (21,76 m²)
• dvije komforne spavaće sobe (10,54 m² i 12,21 m²)
• kupaonice (4,29 m²)
• VEOMA PROSTRANE TERASE površine 24,10 m² (obračunski 18,07 m²)
• jedno vanjsko parkirno mjesto
Sveukupno 91,83 m²,a ukupna netto korisna površina stana sa svim pripacima iznosi 75,80 m².

Kompleks se sastoji od tri moderne zgrade građene prema najvišim standardima gradnje, uključujući konstrukciju dimenzioniranu za 9. seizmičku zonu, što jamči sigurnost i kvalitetu. U dvorištu zgrade nalazi se zajednički bazen namijenjen svim stanarima – savršeno mjesto za opuštanje i druženje.
Svi stanovi opremljeni su vrhunskom opremom i suvremenim tehnološkim rješenjima:
• Smart Inverter klima sustavi grijanja i hlađenja
• Podno grijanje u kupaonicama
• Vrhunska unutarnja stolarija modernog dizajna s punim štokovima
• Šestokomorna PVC vanjska stolarija s troslojnim izo staklima i Low-e premazom renomiranih europskih proizvođača
• ALU rolete na elektro pogon s integriranim komarnicima
• Sanitarna oprema vrhunske kvalitete
• Parket i keramika I. klase
• Priprema za smart instalaciju
• Smart ključ-kartica za ulaz u zgradu
• Video portafon
• Punjač za električna vozila
• Termo fasada
Privlaka je slikovito dalmatinsko mjesto smješteno nedaleko od Zadra, poznato po dugim pješčanim plažama, čistom moru i plitkim uvalama idealnim za obitelji s djecom. Mjesto odiše autentičnim mediteranskim ugođajem, mirnom atmosferom i prekrasnim zalascima sunca, a istovremeno pruža blizinu svih važnih sadržaja i urbane infrastrukture.
Stan S102 predstavlja izvrsnu priliku za miran obiteljski život, luksuzni odmor ili sigurnu investiciju na atraktivnoj lokaciji uz more.

U ZGRADI A su na prodaju sljedeći stanovi:
G001 - prizemlje, jednosoban stan, 66,05 m² - 210.000,00 €
G002- prizemlje- PRODANO
G003- prizemlje -PRODANO
G004 - prizemlje, dvosoban stan, 74,99 m² - 239.000,00
G 101- 1. kat, dvosoban stan, 85,77 m² - 270.000,00 €
G 102- 1. kat, dvosoban stan, 75,80 m² - 250.000,00 €
G103- 1. kat, dvosoban stan , 79,12 m² - 255.000,00 €
G201 - 2. kat, dvosoban penthouse 103,78 m² - 350.000,00 €
G202 - 2. kat, dvosoban penthouse , 97,05 m² - 335.000,00 €
G203 - 2. kat, dvosoban penthouse, 97,15 m² - 335.000,00 €

ID CODE: 149

Monika Zurak
Agent s licencom
Mob: +385 98 388 983
E-mail: voluta@ktmrealestate.hr
www.ktmrealestate.hr
Značajke
Vrsta
Stan
Ugovor
Prodaja
Kat
1 kat
Katovi zgrade
2
Dizalo
Ne
Površina
75 m²
Prostorije
3
Spavaće sobe
2
Kupaonice
1
Balkon
Ne
Terasa
Da
Garažno mjesto, parkirna mjesta
1 na zajedničkom parkingu
Grijanje
Samostalno, zrak
Klimatizacija
Samostalno, hlađenje/grijanje
Informacije o cijeni
Cijena
€ 250.000
Cijena po m²
3.333 €/m²
Energetska učinkovitost
  • Godina izgradnje

    2025
  • Grijanje

    Samostalno, zrak
  • Klima uređaj

    Samostalno, hlađenje/grijanje
  • Energetski certifikat

    Neklasificirano
Otkrijte svaki kutak nekretnine
+15
Dodatne mogućnosti

Obratite se oglašivaču

Ili