Trosobni stan Siverićka, Knežija - Srednjaci, Zagreb

€ 495.000
3
106 m²
2
Terasa

Bilješka

Oglas ažuriran 03. 03. 2026.
Opis

referenca: EUROVILLA-277895

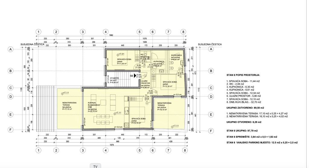
Zagreb, Srednjaci, prekrasan četverosoban stan na drugom katu, 97,79 m²

Zagreb, Srednjaci, prekrasan četverosoban stan na drugom katu od 97,79 m2.Stan 6 - 97,79 m²Prodaje se luksuzan stan površine 97,79 m² u novogradnji, s prostranim rasporedom i visokim standardom gradnje. Stan se sastoji od:spavaća soba: 11,44 m²spavaća soba: 12,34 m²spavaća soba: 12,10 m²WC: 2,06 m²kupaonica: 6,35 m²kupaonica: 6,61 m²ulazni prostor: 5,90 m²dnevni boravak/kuhinja/blagovaonica: 32,70 m²Dodatno:nenatkrivena terasa 1: 4,27 m²nenatkrivena terasa 2: 4,02 m²spremište: 1,92 m²vanjsko parkirno mjesto: 2,5 m²natkriveno parkirno mjesto 3,6m2Stanovi su projektirani po najvišim standardima i odlikuju se:dizalicama topline za grijanje i hlađenjeklimama u svakom stanuPVC dvoslojnom stolarijom za optimalnu izolacijunajkvalitetnijim materijalimamaksimalnom energetskom učinkovitošćusvaki stan ima svoje spremište i vanjsko parkirno mjestoLokacija:Kvart nudi sve pogodnosti za obiteljski život - od škola, vrtića i parkova do trgovina i kafića. Prometna povezanost omogućava brz pristup svim dijelovima Zagreba.Srednjaci su kvart u kojem dominiraju zelene površine, sportski sadržaji i mirni dijelovi idealni za šetnju i opuštanje. Ovo je savršena lokacija za mlade obitelji koje traže sigurno i kvalitetno okruženje za život.Za više informacija ili dogovor o razgledu, slobodno nas kontaktirajte!... Više na eurovilla.hr, ID: 277895
Ako želite znati više, možete razgovarati s Matteo Mikulić.
Značajke
Vrsta
Stan
Ugovor
Prodaja
Kat
2
Površina
106 m²
Prostorije
3
Spavaće sobe
3
Terasa
Da
Detalji površine

Stambeni prostor

Kat
2
Površina
106,0 m²
Koeficijent
100%
Vrsta površine
Glavni
Komercijalna površina
106,0 m²
Informacije o cijeni
Cijena
€ 495.000
Cijena po m²
4.670 €/m²
Energetska učinkovitost
  • Stanje

    Novo / U izgradnji
  • Energetski certifikat

    Oslobođeno
Tlocrt
Otkrijte svaki kutak nekretnine
+2
Dodatne mogućnosti

Obratite se oglašivaču

Ili