Obiteljska kuća 150 m², Kloštar Ivanić

€ 115.000
3
150 m²
1
Da
Balkon

Bilješka

Oglas ažuriran 08. 04. 2026.
Opis

referenca: ZG87737

Obiteljska kuća u Kloštar Ivaniću

Samostojeća obiteljska kuća na prodaju Kloštar Ivanić, naselje Bešlinec 150 m, okućnica 358 m

Na prodaju je samostojeća obiteljska kuća površine 150 m s okućnicom od 358 m, smještena u mirnoj ulici u naselju Bešlinec, nadomak centra Kloštar Ivanića. Nekretnina predstavlja izvrsnu priliku za obiteljski život u prirodnom i tihom okruženju, uz brzu povezanost s gradom i metropolom.

Kuća je građena tijekom 1980-ih godina, redovito je održavana te je kroz godine djelomično obnavljana i nadograđivana. Novi krov postavljen je 2021. godine, što dodatno povećava vrijednost i sigurnost nekretnine. Objekt je funkcionalan i odmah useljiv. Kuća ima ishođenu uporabnu dozvolu, tako da je moguća kupnja na kredit.

Kuća je u potpunosti komunalno opremljena te posjeduje priključak električne energije i vode, kao i septičku jamu.
Grijanje je riješeno putem sustava na drva, što omogućuje ekonomično i učinkovito zagrijavanje prostora tijekom zimskih mjeseci te pruža dodatni ugođaj topline doma.

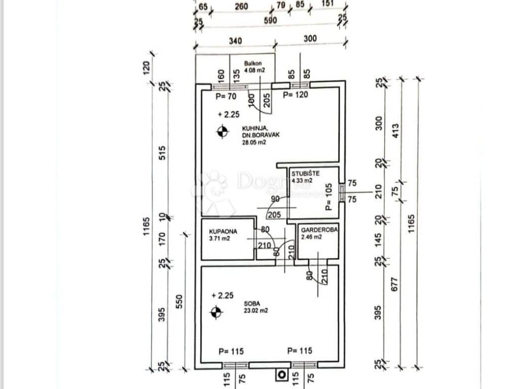
Raspored prostorija

Kuća se sastoji od:

dvije spavaće sobe
kuhinje
dnevnog boravka
kupaonice
ulaznog hodnika
ostave
balkona

Uz stambeni dio, kući pripadaju i pomoćne prostorije koje dodatno povećavaju funkcionalnost i pružaju mogućnost prilagodbe prema potrebama budućih vlasnika.

Dodatne pogodnosti:

osigurano parkirno mjesto
uređeni vrt
prostor za roštilj
mirna i ugodna lokacija

Ova nekretnina idealna je za kupce koji traže kuću s okućnicom u Kloštar Ivaniću, mirno okruženje, ali i dobru prometnu povezanost s urbanim sadržajima.

Za sva ostala pitanja stojim na raspolaganju

Roman Turčić
095 557 9337
roman.turcic@dogma-nekretnine.com

ID KOD AGENCIJE: ZG87737

Roman Turčić
Agent s licencom
Mob: 095/557-9337
Tel: 01/211-0039
E-mail: roman.turcic@dogma-nekretnine.com
www.dogma-zagreb.com
Ako želite znati više, možete razgovarati s Roman Turčić.
Značajke
Vrsta
Obiteljska kuća
Ugovor
Prodaja
Kat
1
Dizalo
Da
Površina
150 m² | poslovni prostor 508 m²
Prostorije
3
Spavaće sobe
2
Kupaonice
1
Balkon
Da
Terasa
Ne
Garažno mjesto, parkirna mjesta
1 u garaži
Detalji površine

Stambeni prostor

Kat
1
Površina
150,0 m²
Koeficijent
100%
Vrsta površine
Glavni
Komercijalna površina
150,0 m²

Zemljište

Kat
Prizemlje
Površina
358,0 m²
Koeficijent
100%
Vrsta površine
Dodatno
Komercijalna površina
358,0 m²
Informacije o cijeni
Cijena
€ 115.000
Cijena po m²
226 €/m²
Energetska učinkovitost
  • Godina izgradnje

    1981
  • Energetski certifikat

    Oslobođeno
Otkrijte svaki kutak nekretnine
+21
Dodatne mogućnosti

Obratite se oglašivaču

Ili