Obiteljska kuća Pavićini, Marčana, Peruški, Kavran, Pavičini, Marčana

€ 139.025
2
41 m²
1
Ne

Bilješka

Oglas ažuriran 26. 03. 2026.
Opis

referenca: SH75

Modularna kuća, Pavićini - kompletno opremljena

PRILIKA - NOVO NA TRŽIŠTU - LUKSUZNE MODULARNE KUĆE SA BAZENOM KOMPLETNO OPREMLJENE - USELJENJE LJETO 2026!

Općina Marčana je općina u sklopu koje nalazimo prekrasna mjesta poput Krnice, Raklja, Pavićina, Peruška, Duge uvale i mnogih drugih manjih mjesta. Nalazi se na istočnoj obali šarmantnog istarskog poluotoka te ima još predivnih, divljih i netaknutih plaža što je prava rijetkost kada uzmemo u obzir južni ili zapadni dio Istre.

Zadnjih godina postaju sve popularnije opcije gradnje u vidu montažnih kuća, a pojavio se i novi trend u vidu modularnih objekata. Modularne objekte, osim iznimne brzine postavljanja i gradnje imaju veliku prednost što se mogu lako nadograđivati, premještati te imaju dugoročni vijek trajanja. Upravo ovaj oblik gradnje nije toliko zastupljen u Istri te smo upravo mi jedni od prvih koji svojim klijentima nudimo ovu fenomenalnu opciju.

U mirnom mjestu u sklopu općine Marčana, uz samu lokalnu i ne toliko prometnu cestu, u prodaju smo dobili prekrasan projekt u kojem se nalaze 3 manje, potpuno opremljene modularne kuće, svaka zasebna i kompletno autonomna.

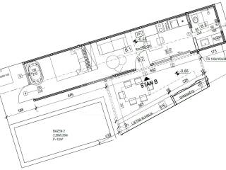
Kuća je ukupne neto stambene površine 27m2 te se sastoji od jedinstvene cjeline u vidu open space sistema. Ulaskom se ulazi u predsoblje/dnevni boravak koji nastavlja s kuhinjom u nizu te se na kraju nalazi kupaonica. S druge strane nalazimo spavaću sobu, odlično izmaknutu od dnevnog dijela visokim ormarima kao pregradu za odvajanje prostora te tako iskoristivši maksimalno svaki dio prostora. S obzirom na to da se radi o manjem objektu svaki pedalj prostora je iskorišten te se ukupni dojam prostora u stvarnosti dojma puno veći. Ispred same kuće nalazi se prostrana natkrivena terasa od ukupno 18m2 na kojoj se nalazi prostor za druženje s vanjskom ljetnom kuhinjom. U nastavku terase prelazimo na ne natkriveni dio terase koji je također popločen te tu počinje dio sunčališta i "plaže"bazena. Bazen je 12m2 površine te je i više nego dovoljan za osvježenje u toplim ljetnim mjesecima.
S obzirom na to da se radi o modularnom objektu isti je odlično izoliran s 10cm izolacijom. Stolarija na otvorima je PVC visoke kvalitete s roletnama i komarnicima. Podovi će biti obloženi keramikom 1. klase te će tako upotpuniti maksimalno ukupni dojam. Prednost više u ovim objektima dolazi s time što će biti kompletno opremljeni, odnosno kuhinja, dnevni boravak, kupaonica i spavaća soba isporučuje se s kućom tako da budući vlasnik ne mora razmišljati o opremanju.
Uz kuću, u cijeni iste dolazi i jedno parkirno mjesto.

POSEBNE ZNAČAJKE:
- visoka kvaliteta gradnje po svim EU standardima
- modularna gradnja, novitet na Istarskom tlu!
- kvalitetna PVC stolarija
- klima uređaji za grijanje i hlađenje objekta
- bazen 12m2
- parkirno mjesto
- odlična i mirna lokacija
- kompletno opremljeni objekt, bez razmišljanja o namještaju
- odlična investicija u turističke svrhe
- velika natkrivena terasa s ljetnom kuhinjom
- useljenje: ljeto 2024.

DETALJI KVADRATURA OBJEKTA:
- neto stambena površine objekta: 27m2
- natkrivena terasa: 18m2 (po koeficijentu 0,5 =9m2)
- ne natkrivena terasa: 10m2 (po koeficijentu 0,25 =2,5m2)
- parkirno mjesto: 12m2 (po koeficijentu 0,25 =3m2)
UKUPNA KVADRATURA - 41,5m2

Bazen - 12m2
Vrt - 70-160m2 ovisno o kući

S obzirom na to da u dosadašnjoj ponudi nije bilo ovakvih objekata svakako preporučujemo da se dogovori pregled lokacije kao i sastanak za dobivanje više informacija o samim modularnim objektima. Uz odličnu lokaciju na kojoj će se nalaziti ovo može biti idealna prilika za investiciju u turističke svrhe te prihođenju dodatne zarade od turističkog iznajmljivanja.

ID CODE: SH75

Claudio Mezzalira
Licencirani agent za nekretnine
Mob: +385 99 285 7323
Tel: +385 99 285 7323
E-mail: claudio@sevenhills.hr
www.sevenhills.hr
Značajke
Vrsta
Obiteljska kuća
Ugovor
Prodaja
Dizalo
Ne
Površina
41 m²
Prostorije
2
Spavaće sobe
1
Kupaonice
1
Balkon
Ne
Terasa
Ne
Garažno mjesto, parkirna mjesta
1 na zajedničkom parkingu
Klimatizacija
Samostalno, hlađenje/grijanje
Informacije o cijeni
Cijena
€ 139.025
Cijena po m²
3.391 €/m²
Energetska učinkovitost
  • Godina izgradnje

    2026
  • Klima uređaj

    Samostalno, hlađenje/grijanje
  • Energetski certifikat

    Neklasificirano
Otkrijte svaki kutak nekretnine
+17
Dodatne mogućnosti

Obratite se oglašivaču

Ili