Trosobni stan Sukošan, Sukošan

€ 273.000
3
74 m²
1
PR
Ne

Bilješka

Oglas ažuriran 01. 05. 2026.
Opis

referenca: 137-210

Sukošan, Zadar - Moderan dvosobni stan u prizemlju(S2), 250 m od mora

Kaiser Immobilien predstavlja: Moderan dvosobni stan u prizemlju, 150 m od mora – Sukošan
U srcu zadarske rivijere, u nautičkom centru Sukošan, smjestio se ovaj elegantni stan u prizemlju nove, kvalitetne zgrade. Zahvaljujući izvrsnoj poziciji, na samo dvije minute hoda od uređenih plaža, ovaj stan pruža maksimalan komfor mediteranskog načina života.
O STANU:
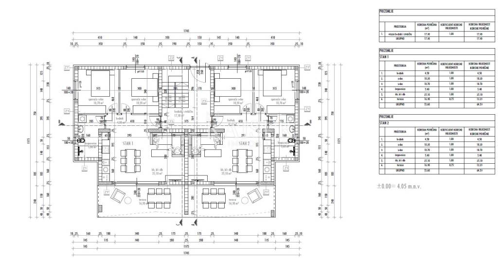
Stan oznake Stan 1 pažljivo je projektiran kako bi osigurao maksimalnu funkcionalnost bez nepotrebnog gubitka prostora. Ukupna korisna površina iznosi 72,60 m², dok neto prodajna vrijednost s koeficijentima iznosi 68,53 m².
RASPORED PROSTORIJA:
Tlocrt stana osigurava jasnu odvojenost spavaćeg dijela od dnevne zone:
Dnevna zona (Open-space): Središnji dio stana čini prostor za kuhinju, blagovaonicu i dnevni boravak od 25,10 m². Iz dnevnog dijela se izlazi na terasu, što omogućuje prirodnu cirkulaciju zraka i obilje svjetla.
Spavaće sobe (2):
Spavaća soba 1: 10,70 m²
Spavaća soba 2: 10,20 m²
Obje sobe su prostrane i predviđene za bračne krevete.
Kupaonica: Stan posjeduje jednu veliku, moderno opremljenu kupaonicu od 5,80 m².
Hodnik: Funkcionalno organiziran ulazni hodnik od 4,50 m².
Terasa: Poseban adut ovog stana u prizemlju je velika natkrivena terasa od 16,30 m², koja je idealna za blagovanje na otvorenom i uživanje u mirisu mora.
LOKACIJA I POGODNOSTI:
Blizina mora: Iznimna lokacija na samo 150 m od mora i plaža.
Sukošan: Lokacija s najboljom nautičkom infrastrukturom na Jadranu (Marina Dalmacija), bogatom gastronomskom ponudom i blizinom Zadra (7 km).
Prizemlje: Idealno za obitelji s djecom, nautičare ili starije osobe zbog lakog pristupa.
Kvaliteta: Moderna novogradnja s visokokvalitetnim materijalima i suvremenim dizajnom.
Ovaj stan predstavlja izvrsnu priliku za one koji traže nekretninu u Sukošanu koja je jednostavna za održavanje, a nudi sav komfor potreban za luksuzan odmor ili profitabilan turistički najam.
Uživajte u blizini mora i mediteranskom šarmu Sukošana. Za više informacija i dogovor razgleda, kontaktirajte nas:
Kupac je oslobođen poreza na promet nekretnina, a kupnja putem pravne osobe s pravom odbitka pretporeza omogućuje povrat PDV-a sukladno zakonu.
Agencijska provizija za kupca iznosi 3% + PDV i plaća se u slučaju kupovine nekretnine, pri zaključenju prvog pravnog akta. Razgledavanje nekretnine moguće je uz prethodni dogovor.
Ako želite iskoristiti priliku i postati vlasnik ove nekretnine u srcu Dalmacije, kontaktirajte nas:
Joško Bašić
E-mail: josko@kaiser-immobilien.hr
Tel: +385-91-511-2693
http://kaiser-immobilien.hr/

ID CODE: 137-210

Joško Bašić
Agent posredovanja u prometu nekretnina
Mob: +385915112693, +385995677888
E-mail: josko@kaiser-immobilien.hr
www.kaiser-immobilien.hr
Ako želite znati više, možete razgovarati s Joško Bašić.
Značajke
Vrsta
Stan
Ugovor
Prodaja
Kat
Prizemlje
Katovi zgrade
2
Dizalo
Ne
Površina
74 m²
Prostorije
3
Spavaće sobe
2
Kupaonice
1
Balkon
Ne
Terasa
Ne
Informacije o cijeni
Cijena
€ 273.000
Cijena po m²
3.689 €/m²
Energetska učinkovitost

Potrošnja energije

A+

Tlocrt
Otkrijte svaki kutak nekretnine
+7
Dodatne mogućnosti

Obratite se oglašivaču

Ili