Trosobni stan Lutvinka, Slavonski Brod, Slavonski Brod

€ 186.000
3
74 m²
1
3
Da
Terasa

Bilješka

Oglas ažuriran 30. 04. 2026.
Opis

referenca: 1265

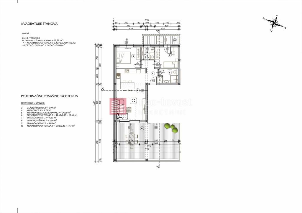
D. RAČKOG trosoban stan, 74 m², 3. kat, LIFT, NOVOGRADNJA

STAN S8 | 3. KAT | 74,40 m² | LIFT

Dragutina Račkog, Slavonski Brod – u ponudi je trosoban stan na 3. katu moderne novogradnje, smješten u mirnoj i slijepoj ulici koja osigurava privatnost, sigurnost i minimalan promet, ukupne obračunske površine 74,40 m². Posebnu vrijednost daje prostrana terasa koja pruža dodatni komfor i ekskluzivnost stanovanja.

Stan se sastoji od ulaznog hodnika, dnevnog boravka, kuhinje i blagovaonice u open space konceptu s izlazom na prostranu terasu površine 42,63 m², dvije spavaće sobe, ostave, kupaonice te dodatne terase.

Pripada mu i parkirno mjesto (natkriveno ili nenatkriveno) koje nije uključeno u cijenu.

Početak gradnje: lipanj 2026.

Završetak radova: 12 mjeseci od početka gradnje

OPREMA I TEHNIČKE KARAKTERISTIKE
* Centralno etažno plinsko grijanje
* Podno grijanje na plin u svim prostorijama
* PVC stolarija
* Klima uređaj (inverter grijanje/hlađenje)
* Odvojeni svi režijski troškovi
* Protuprovalna vrata
* Podne obloge po izboru kupca
* Lift u zgradi

CIJENA I POGODNOSTI
Cijena: 2.500 EUR/m²

Nekretnina je u sustavu PDV-a – kupac ne plaća porez na promet nekretnina.
Postoji mogućnost ostvarivanja državne subvencije – povrata 50% PDV-a za kupce do 45 godina starosti prilikom kupnje prve nekretnine.

Stan predstavlja rijetku priliku za kupnju penthousea s velikom terasom u novogradnji na traženoj lokaciji.

Za više informacija, tlocrte i rezervacije, obratite nam se s povjerenjem.

ID CODE: 1265

Edi Bračun
Agent s licencom
Mob: +385 95 8939 386
Tel: 035 448 862
E-mail: edi@trgo-invest-nekretnine.hr
www.trgo-invest-nekretnine.hr

Ante Jerković
Agent s licencom
Mob: +385914457777
Tel: 035448862
Fax: 035448862
E-mail: ante@trgo-invest-nekretnine.hr
www.trgo-invest-nekretnine.hr
Značajke
Vrsta
Stan
Ugovor
Prodaja
Kat
3 kat
Katovi zgrade
3
Dizalo
Da
Površina
74 m²
Prostorije
3
Spavaće sobe
2
Kupaonice
1
Balkon
Ne
Terasa
Da
Garažno mjesto, parkirna mjesta
1 na zajedničkom parkingu
Grijanje
Centralno, podno grijanje
Klimatizacija
Samostalno, hlađenje/grijanje
Ostale karakteristike
  • Protuprovalna vrata
Informacije o cijeni
Cijena
€ 186.000
Cijena po m²
2.514 €/m²
Energetska učinkovitost
  • Grijanje

    Centralno, podno grijanje
  • Klima uređaj

    Samostalno, hlađenje/grijanje
  • Energetski certifikat

    Neklasificirano
Tlocrt
Otkrijte svaki kutak nekretnine
+2
Dodatne mogućnosti

Obratite se oglašivaču

Ili