Trosobni stan Veli vrh, Pula, Veli Vrh - Industrijska zona, Pula

€ 1
3
73 m²
1
4
Da

Bilješka

Oglas ažuriran 19. 03. 2026.
Opis

referenca: 6096

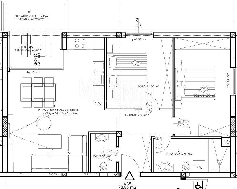
ISTRA, PULA NOVOGRADNJA stan na 4. katu 73,85 m²,garažno parkirno mjesto A38

PULA – NOVOGRADNJA | Stan na 4. katu 73,85 m² ,garažno parkirno mjesto A38

U ponudi je moderan stan u novogradnji u Puli, smješten na 4. katu kvalitetne stambene zgrade s liftom. Ukupna površina stana iznosi 73,85 m². Projekt je trenutno u izgradnji, a planirani završetak radova je listopad 2027. godine.

Stan je funkcionalnog i ugodnog rasporeda te se sastoji od:

ulaznog hodnika
dvije spavaće sobe
kupaonice
dodatnog WC-a
prostranog dnevnog boravka s kuhinjom i blagovaonicom
terase s izlazom iz dnevnog boravka

Zgrada je opremljena liftom, a stanovi će imati podno grijanje u svim prostorijama, vrhunsku stolariju te visoku razinu toplinske i zvučne izolacije, što osigurava visoku razinu komfora i kvalitete stanovanja.

Stan se prodaje po sistemu „ključ u ruke“.

Cijena garažnog parkirnog mjesta iznosi 18.500 €.
Postoji i mogućnost kupnje spremišta u podrumu zgrade (nije uvjet kupnje).
Planirani završetak izgradnje je 10/2027. godine.

Nekretnina predstavlja odličnu priliku za stanovanje ili investiciju na atraktivnoj lokaciji u Puli.

ID CODE: 6096

Zoran Stupar
Agent s licencom
Mob: +385 99 5705 551
Tel: +385 52 774 199
E-mail: zoran.stupar@mololongorealestate.com
www.mololongorealestate.com
Značajke
Vrsta
Stan
Ugovor
Prodaja
Kat
4 kat
Katovi zgrade
4
Dizalo
Da
Površina
73 m²
Prostorije
3
Spavaće sobe
2
Kupaonice
1
Balkon
Ne
Terasa
Ne
Garažno mjesto, parkirna mjesta
1 u garaži, 1 na zajedničkom parkingu
Grijanje
Samostalno, zrak
Klimatizacija
Samostalno, hlađenje/grijanje
Informacije o cijeni
Cijena
€ 1
Cijena po m²
0 €/m²
Energetska učinkovitost

Potrošnja energije

A+

Dodatne mogućnosti

Obratite se oglašivaču

Ili