Trosobni stan Veli vrh, Pula, Veli Vrh - Industrijska zona, Pula

€ 1
3
55 m²
1
3
Da

Bilješka

Oglas ažuriran 19. 03. 2026.
Opis

referenca: 6101

ISTRA, PULA NOVOGRADNJA stan na 3.katu 55m² garažno parkirno mjesto, A30

PULA – NOVOGRADNJA | Stan na 3. katu 55 m² | terasa | garažno parkirno mjesto, A30

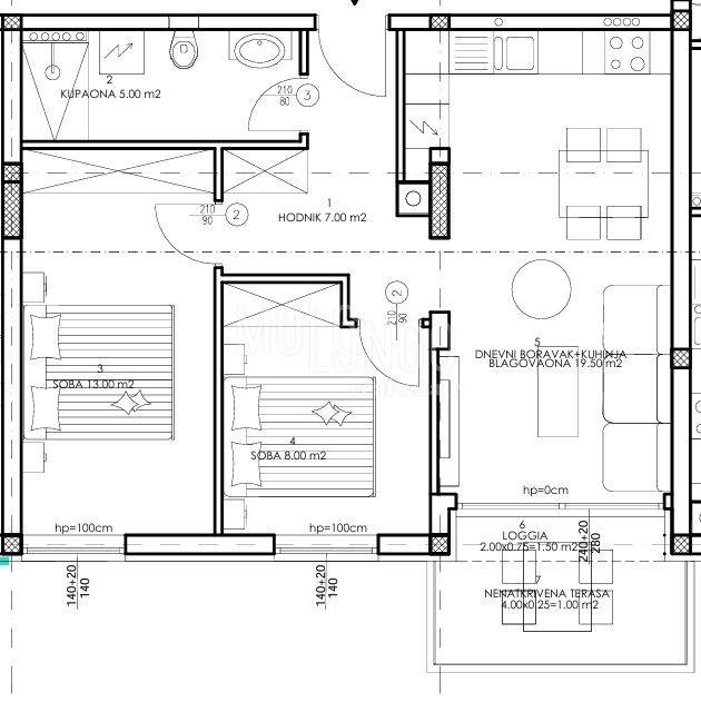
U ponudi je stan u modernoj novogradnji u Puli, smješten na 3. katu kvalitetne stambene zgrade s liftom. Ukupna površina stana iznosi 55 m². Projekt je trenutno u izgradnji, a planirani završetak radova je listopad 2027. godine.

Stan je funkcionalnog i praktičnog rasporeda te se sastoji od:

ulaznog hodnika
dvije spavaće sobe
kupaonice
kuhinje s blagovaonicom
dnevnog boravka
loggie

Zgrada je opremljena liftom, a stanovi će imati podno grijanje u svim prostorijama, vrhunsku stolariju te visoku razinu toplinske i zvučne izolacije, što osigurava maksimalnu udobnost stanovanja.

Stan se prodaje po sistemu „ključ u ruke“.

Cijena garažnog parkirnog mjesta iznosi 18.500 €.
Postoji i mogućnost kupnje spremišta u podrumu zgrade (nije uvjet kupnje).

Planirani završetak izgradnje je 10/2027. godine.

Ova nekretnina predstavlja odličnu priliku za ugodan obiteljski život ili sigurnu investiciju u kvalitetnu novogradnju na atraktivnoj lokaciji u Puli.

ID CODE: 6101

Zoran Stupar
Agent s licencom
Mob: +385 99 5705 551
Tel: +385 52 774 199
E-mail: zoran.stupar@mololongorealestate.com
www.mololongorealestate.com
Značajke
Vrsta
Stan
Ugovor
Prodaja
Kat
3 kat
Katovi zgrade
4
Dizalo
Da
Površina
55 m²
Prostorije
3
Spavaće sobe
2
Kupaonice
1
Balkon
Ne
Terasa
Ne
Garažno mjesto, parkirna mjesta
1 u garaži, 1 na zajedničkom parkingu
Grijanje
Samostalno, zrak
Klimatizacija
Samostalno, hlađenje/grijanje
Informacije o cijeni
Cijena
€ 1
Cijena po m²
0 €/m²
Energetska učinkovitost

Potrošnja energije

A+

Dodatne mogućnosti

Obratite se oglašivaču

Ili