Trosobni stan četvrti kat, Veli Vrh - Industrijska zona, Pula

€ 1
3
73 m²
1
4
Da

Bilješka

Oglas ažuriran 19. 03. 2026.
Opis

referenca: IS1520531

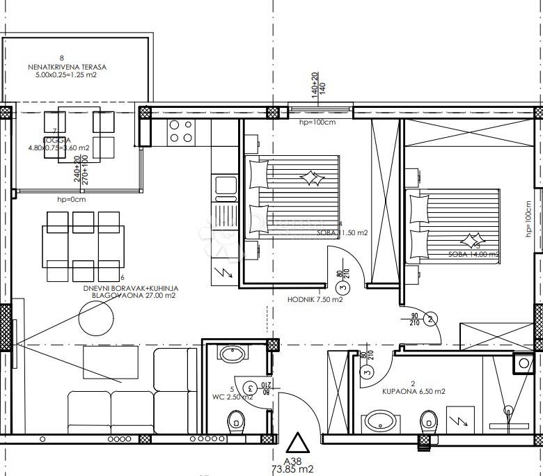
Novogradnja Veli Vrh - 4. kat, 73 m2 (A38)

U ponudi su moderni stanovi u novogradnji smještenoj na mirnoj i ugodnoj lokaciji u Puli. Projekt obuhvaća stambenu zgradu s ukupno četiri kata, osmišljenu kako bi budućim stanarima pružila kvalitetan i ugodan životni prostor.

Stanovi su funkcionalnog rasporeda te dolaze u različitim kvadraturama od 49 m do 93 m, što ih čini idealnim izborom za samce, parove, obitelji, ali i kao odličnu investiciju za dugoročno ili turističko iznajmljivanje. Projekt je osmišljen s naglaskom na udobnost stanovanja, prostranost i maksimalno iskorištenje prostora.

Gradnja zgrade započinje u svibnju 2026. godine, dok se završetak radova i useljenje očekuju u rujnu 2027. godine.

Nekretnina se nalazi na atraktivnoj lokaciji koja pruža mir i privatnost, a istovremeno omogućuje brz pristup svim važnim sadržajima. Udaljenost od centra Pule iznosi svega 2,7 km, dok su more i uređene plaže udaljene približno 5 km.

Parking mjesto nije uključeno u cijenu stana.

Za više informacija o projektu, raspoloživim stanovima i detaljima kupnje slobodno nas kontaktirajte.

Filip Crnjac
Agent s licencom
Mob: +385 91 6001 216
Email: filip.crnjac@dogma-nekretnine.com

ID KOD AGENCIJE: IS1520531

Filip Crnjac
Agent s licencom
Mob: 091/600-1216
Tel: 052 645 444
E-mail: filip.crnjac@dogma-nekretnine.com
www.dogma-istra.com
Ako želite znati više, možete razgovarati s Filip Crnjac.
Značajke
Vrsta
Stan
Ugovor
Prodaja
Kat
4 kat
Dizalo
Da
Površina
73 m²
Prostorije
3
Spavaće sobe
2
Kupaonice
1
Balkon
Ne
Terasa
Ne
Garažno mjesto, parkirna mjesta
1 u garaži
Klimatizacija
Samostalno, hlađenje/grijanje
Informacije o cijeni
Cijena
€ 1
Cijena po m²
0 €/m²
Energetska učinkovitost
  • Godina izgradnje

    2027
  • Klima uređaj

    Samostalno, hlađenje/grijanje
  • Energetski certifikat

    Oslobođeno
Otkrijte svaki kutak nekretnine
+2
Dodatne mogućnosti

Obratite se oglašivaču

Ili