Trosobni stan novo, prizemlje, Podgora

€ 309.000
3
1
PR
Da
Terasa

Bilješka

Oglas ažuriran 16. 04. 2026.
Opis

referenca: RE902889

Makarska, Živogošće - dvosoban stan u novogradnji blizu mora

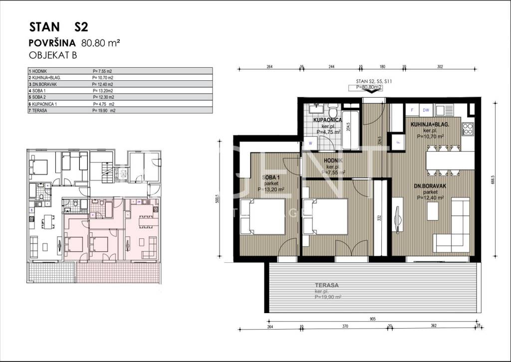
Dvosoban stan nalazi se u prizemlju zgrade u novom stambenom kompleksu u mjestu Blato na Makarskoj rivijeri, svega oko 150 metara od mora. Stan predstavlja odličan izbor za život, odmor ili kao investicija za turistički najam. Ukupne neto površine 80.80 m², stan se sastoji od dnevnog boravka s kuhinjom i blagovaonicom, dvije spavaće sobe te kupaonice. Dnevni boravak povezan je s terasom površine od 19.90 m², a stan je orijentiran prema jugu, što omogućuje puno prirodnog svjetla tijekom dana. Stan se nalazi u sklopu modernog projekta koji obuhvaća tri manje stambene zgrade s ukupno 30 apartmana. U standardu opreme predviđena je keramika formata 60 × 60 cm kroz cijeli stan, kvalitetna PVC stolarija s dvostrukim staklom te velike staklene stijene prema lođi. Na većim otvorima ugrađuju se električne rolete, dok su na manjim prozorima ručne. Grijanje i hlađenje riješeno je putem klima sustava, a u kupaonicama je predviđen zidni električni radijator. Stanovi imaju protuprovalna ulazna vrata, a kupaonice kvalitetnu sanitarnu opremu uz planirane slavine proizvođača Grohe. Zgrade su opremljene ORONA dizalima te video portafon sustavom proizvođača 2N. Blato je mirno mjesto na južnom dijelu Makarske rivijere, poznato po dugim šljunčanim plažama i kristalno čistom moru. Okruženo je borovom šumom i maslinicima te pruža autentičan mediteranski ambijent idealan za odmor ili život uz more. Makarska je udaljena oko dvadeset kilometra, dok se Drvenik s trajektnom lukom za otok Hvar nalazi se na manje od deset kilometara vožnje, a u samom Blatu postoji i mala marina koja omogućuje vez za brodice. U cijenu stana uključeno je vanjsko parkirno mjesto, a stan će biti useljiv u drugom kvartalu 2027. godine. Za više informacija o ovom stanu ili dogovor razgledavanja slobodno nas kontaktirajte.
Značajke
Vrsta
Stan
Ugovor
Prodaja
Kat
Prizemlje
Katovi zgrade
3
Dizalo
Da
Prostorije
3
Spavaće sobe
2
Kupaonice
1
Terasa
Da
Garažno mjesto, parkirna mjesta
1 na zajedničkom parkingu
Klimatizacija
Samostalno, hlađenje/grijanje
Informacije o cijeni
Cijena
€ 309.000
Energetska učinkovitost
  • Godina izgradnje

    2027
  • Stanje

    Novo / U izgradnji
  • Klima uređaj

    Samostalno, hlađenje/grijanje
  • Energetski certifikat

    Oslobođeno
Tlocrt
Otkrijte svaki kutak nekretnine
+13
Dodatne mogućnosti

Obratite se oglašivaču

Ili