Četverosobni stan novo, sedmi kat, Jarun - Prečko, Zagreb

€ 330.000
4
79 m²
2
7
Da

Bilješka

Oglas ažuriran 22. 04. 2026.
Opis

referenca: I35005

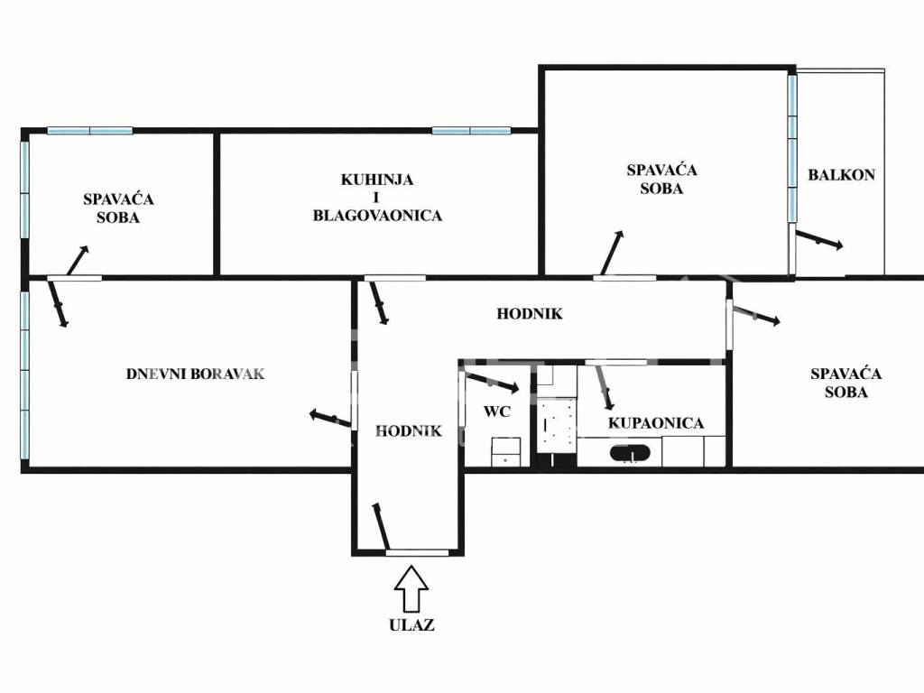
PRODAJA, STAN, ZAGREB, PREČKO, 79m2, 4-SOBAN, Sibeliusova ulica. Stan ima 76m2 zatvorenog prostora, a sastoji se od 2 hodnika, prostranog dnevnog boravka, kuhinje i blagovaonice, zasebnog WC-a, kupaonice, 2 spavaće sobe od kojih jedna ima izlaz na balkon i jedne manje sobe(korišteno kao spavaća soba). U ukupnu kvadraturu stana po koeficijentu obračunato je spremište i balkon. Mirna lokacija, jezero Jarun nalazi se na svega nekoliko minuta pješice kao i svi potrebni sadržaji potrebni za ugodan urbani život: trgovina, supermarket, škola, park, ljekarna, vrtić, autobus, restorani, kafići, igrališta.. Odlična prilika za Kupca koji želi sunčani topli dom u uređenom naselju. Odmah useljivo! PREPORUČUJEMO!
Značajke
Vrsta
Stan
Ugovor
Prodaja
Kat
7 kat
Dizalo
Da
Površina
79 m²
Prostorije
4
Spavaće sobe
3
Kupaonice
2
Namješteno
Ne
Grijanje
Centralno
Klimatizacija
Hlađenje/grijanje
Informacije o cijeni
Cijena
€ 330.000
Cijena po m²
4.177 €/m²
Energetska učinkovitost

Potrošnja energije

C

Otkrijte svaki kutak nekretnine
+13
Dodatne mogućnosti

Obratite se oglašivaču

Ili