map icon

Obiteljska kuća 263 m², Omiš

Omiš
€ 495.000
5+
263 m²
1
Balkon
Terasa

Bilješka

Oglas ažuriran 28. 04. 2026.
Opis

referenca: 2456

Omiš Duće kuća 263 m2 otvoren pogled na more

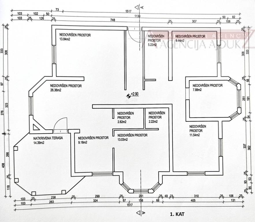
Ekskluzivno prodajemo samostojeću kuću na mirnoj lokaciji u mjestu Duće pored grada Omiša. Ukupna površina kuće iznosi 263 m2 na dvije etaže (prizemlje i kat).
Prizemlje je uređeno, održavano i odmah useljivo dok je gornja etaža u roh bau izvedbi sa postavljenim instalacijama struje i vode.
U prizemlju se nalazi dnevni boravak sa kuhinjom i blagovaonicom, 3 spavaće sobe, hodnik, kupaonica te dvije ostave.
Kuća je položena na parceli od 433 m2. Na preostalom dijelu parcele ima dovoljno mjesta za igradnju bazena, roštilja i ostalih popratnih sadržaja. Iz prizemlja kao i sa kata pruža se nesmetan pogled na more i otoke. 
Kuće je legalizirana te posjeduje pravomoćno Rješenje o izvedenom stanju. Također postoji mogučnost legalne nadogradnje još jedne etaže.
Udaljenost od mora zračnom linijom iznois 250 metara, a pristupnim putem cca 400 metara.
S obzirom na samu lokaciju, ova kuća pruža intimu, mir i zagarantiran odmor. 
Kompletna dokumentacija je uredna i čista bez tereta. Molimo samo ozbiljne ponude.
Lokacija nekretnine: https://maps.app.goo.gl/2nCZ3nTRFfoxh8qZ9
Sve ostale detalje možete dobiti u uredu agencije.
Razgledavanje nekretnine moguće je isključivo uz potpisivanje Ugovora o posredovanju koji je temelj za daljnje radnje vezane uz kupoprodaju nekretnine, a sve u skladu sa Zakonom o zaštiti podataka i Zakonu o posredovanju u prometu nekretnina.
Naravno, u skladu sa Općim uvjetima poslovanja naplaćuje se agencijska provizija
Ako želite znati više, možete razgovarati s Željko Ajduk.
Značajke
Vrsta
Obiteljska kuća
Ugovor
Prodaja
Kat
Prizemlje
Površina
263 m²
Prostorije
5+
Spavaće sobe
6
Kupaonice
1
Balkon
Da
Terasa
Da
Garažno mjesto, parkirna mjesta
1 na zajedničkom parkingu
Pogled
More
Ostale karakteristike
  • Vanjska stolarija od stakla/drva
Detalji površine

Stambeni prostor

Kat
Prizemlje
Površina
263,0 m²
Koeficijent
100%
Vrsta površine
Glavni
Komercijalna površina
263,0 m²
Informacije o cijeni
Cijena
€ 495.000
Cijena po m²
1.882 €/m²
Pojedinosti o troškovima
Troškovi etažiranja
Bez naknada za etažno vlasništvo
Energetska učinkovitost
  • Energetski certifikat

    Neklasificirano
Tlocrt
Omis, Omis
Omis, Omis
Otkrijte svaki kutak nekretnine
+13
Dodatne mogućnosti

Obratite se oglašivaču

Ili