Trosobni stan Rudeš, Trešnjevka - Sjever, Rudeš - Ljubljanica, Zagreb

€ 392.000
3
94 m²
1
2
Ne
Terasa

Bilješka

Oglas ažuriran 29. 04. 2026.
Opis

referenca: 506

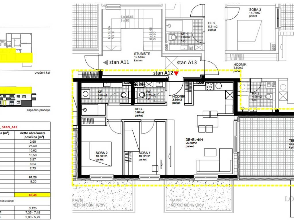
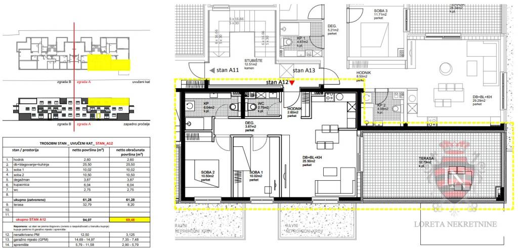
Rudeš | moderan 3-soban stan u mirnoj ulici | terasa 32,79 m² | parking + spremište

Na prodaju je moderan, potpuno namješten i iznimno ugodan 3-soban stan smješten na 2. i posljednjem katu manje zgrade bez lifta iz 2021. godine, u mirnoj ulici u Rudešu, izvan glavne prometnice, a nadomak sadržaja koji svakodnevicu čine jednostavnijom.

Stan raspolaže s 61,28 m² zatvorenog stambenog prostora i vrlo funkcionalnim rasporedom koji prirodno odvaja dnevni i noćni dio. Sastoji se od dnevnog boravka s kuhinjom i blagovaonicom, dvije spavaće sobe, kupaonice i dodatnog WC-a. Jugozapadna orijentacija stanu daje obilje prirodnog svjetla i ugodnu atmosferu tijekom cijelog dana.

Posebnu vrijednost ove nekretnine daje terasa od 32,79 m² — prostor koji ne djeluje kao dodatak, nego kao prava vanjska dnevna zona. Na terasi su izvedeni priključci za vodu, struju, TV i grijanje, pa budući vlasnik dobiva idealno mjesto za jutarnju kavu, opuštanje, rad od kuće ili druženja na otvorenom. Uz provjeru svih potrebnih tehničkih i pravnih uvjeta, terasa nudi i odličan potencijal za izvedbu zatvorenog zimskog vrta.

Stan se prodaje potpuno namješten te je opremljen centralnim etažnim plinskim grijanjem, klimom, PVC stolarijom, parketima, protuprovalnim vratima i portafonom. U cijenu su uključeni natkriveno vanjsko parkirno mjesto od 14 m² i spremište od 5 m², što ovu nekretninu čini još praktičnijom i dugoročno vrjednijom.

Mikrolokacija odlično spaja privatnost i dostupnost. U blizini se nalaze škola, vrtić, dječje igralište, trgovine, crkva i ostali sadržaji potrebni za ugodan svakodnevni život, a područje je dobro povezano linijama 116, 118 i 134 prema Ljubljanici, Trgu Mažuranića, Črnomercu i Prečkom.

Ovo je stan za kupce koji ne traže samo kvadrate, nego osjećaj lakoće stanovanja: noviju zgradu, mir, privatnost, vanjski prostor koji se zaista koristi i parkiranje bez kompromisa.

U oglasu su dostupni tlocrt i virtualna šetnja. Za dodatne informacije i dogovor termina razgledavanja, slobodno se javite.
Kontakt telefon 098 / 915 - 5643 ( Ivan )

LORETA NEKRETNINE
Loreta Usluge Office: Tel: 01 / 3866 - 844
Zagrebačka avenija 100a, 10 000 Zagreb
www.loreta-nekretnine.com

ID CODE: 506

Ivan Bošković
Agent s licencom
Mob: 098/9155-643
Tel: 01/3866 844
E-mail: ivan.boskovic@loreta.hr
www.loreta.hr
Značajke
Vrsta
Stan
Ugovor
Prodaja
Kat
2 kat
Katovi zgrade
2
Dizalo
Ne
Površina
94 m²
Prostorije
3
Spavaće sobe
2
Kupaonice
1
Balkon
Ne
Terasa
Da
Garažno mjesto, parkirna mjesta
1 na zajedničkom parkingu
Grijanje
Centralno, podno grijanje
Klimatizacija
Samostalno, hlađenje/grijanje
Ostale karakteristike
  • Protuprovalna vrata
  • Video portafon
Informacije o cijeni
Cijena
€ 392.000
Cijena po m²
4.170 €/m²
Energetska učinkovitost

Potrošnja energije

A

Tlocrt
Virtualni obilazak
Otkrijte svaki kutak nekretnine
+23
Dodatne mogućnosti

Obratite se oglašivaču

Ili