map icon

Dvosobni stan drugi kat, Vrbik - Cvjetno naselje, Zagreb

ZagrebVrbik - Cvjetno naselje
€ 227.000
2
63 m²
1
2
Ne
Balkon
Podrum

Bilješka

Oglas ažuriran 14. 04. 2026.
Opis

referenca: EK-2998923

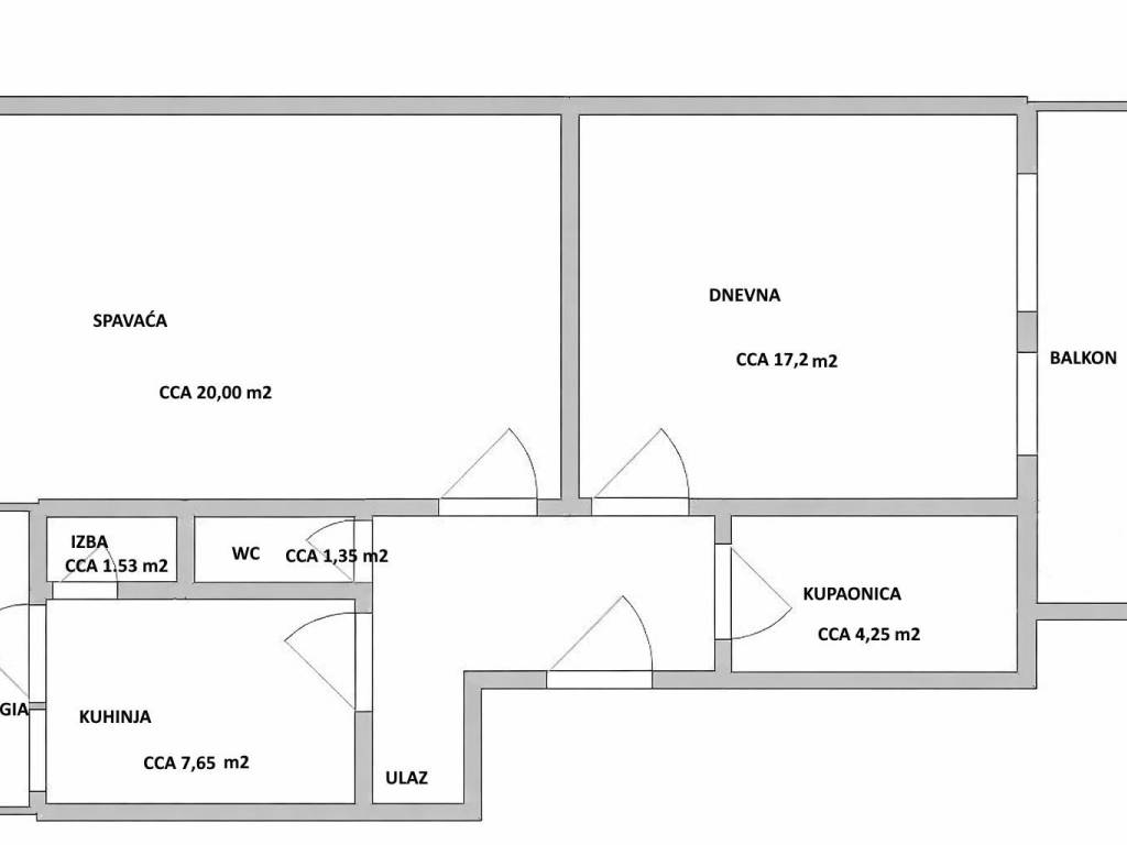
PRODAJA - STAN S ODLIČNIM RASPOREDOM U CVJETNOM NASELJU (VESLAČKA ULICA) Na prodaju je stan smješten u mirnom i vrlo traženom dijelu Zagreba - Cvjetnom naselju, u Veslačkoj ulici. Nalazi se na 2. odnosno 3. katu (visoko prizemlje) uredne stambene zgrade s ukupno pet katova (bez lifta). Stan predstavlja izvrsnu priliku za uređenje prema vlastitim željama i potrebama. OSNOVNE INFORMACIJE Ukupna površina: 63,09 m² stambenog prostora neto + dodatno balkon i lođa+spremište Stanje: stan je potpuno namješten i spreman dalje za iznajmljivanje ili za djelomičnu obnovu Instalacije: nova elektroinstalacija i plinske instalacije Grijanje: trenutno na plinske peći Raspored: vrlo funkcionalan Zahvaljujući odličnom tlocrtu, stan nudi veliki potencijal za modernizaciju. RASPORED Stan se sastoji od: ulaznog dijela dnevnog boravka kuhinje spavaće sobe kupaonice zasebnog toaleta balkona lođe ostave spremište u prizemlju Prostorije su pravilnog oblika, što dodatno olakšava buduće uređenje. ZGRADA krov zgrade je obnovljen u stubištu je ugrađena PVC stolarija zgrada nije pretrpjela oštećenja u potresu uredno i održavano zajedničko stubište optika u zgradi LOKACIJA Cvjetno naselje jedna je od najpoželjnijih lokacija za stanovanje u Zagrebu zbog mira, zelenila i izvrsne prometne povezanosti. Tramvajska i autobusna stanica nalaze se na svega nekoliko minuta hoda. U neposrednoj blizini dostupni su svi važni sadržaji: škola, vrtić, dom zdravlja, ljekarna, trgovine i ugostiteljski objekti. Uredna dokumentacija, useljenje odmah Kupac ne plaća agencijsku proviziju! Tražena cijena: 227.000 eur - za dogovor/razgovor Za dodatne informacije i dogovor oko razgledavanja, slobodno se javite.
Značajke
Vrsta
Stan
Ugovor
Prodaja
Kat
2 kat
Katovi zgrade
5
Dizalo
Ne
Površina
63 m²
Prostorije
2
Spavaće sobe
2
Kupaonice
1
Namješteno
Ne
Balkon
Da
Terasa
Ne
Grijanje
Samostalno
Informacije o cijeni
Cijena
€ 227.000
Cijena po m²
3.603 €/m²
Energetska učinkovitost
  • Godina izgradnje

    1958
  • Grijanje

    Samostalno
Otkrijte svaki kutak nekretnine
+19
Dodatne mogućnosti

Obratite se oglašivaču

Ili