Stan novo, prvi kat, Velika Gorica

€ 320.481
5+
102 m²
2
1

Bilješka

Oglas ažuriran 15. 04. 2026.
Opis

referenca: 3779-1

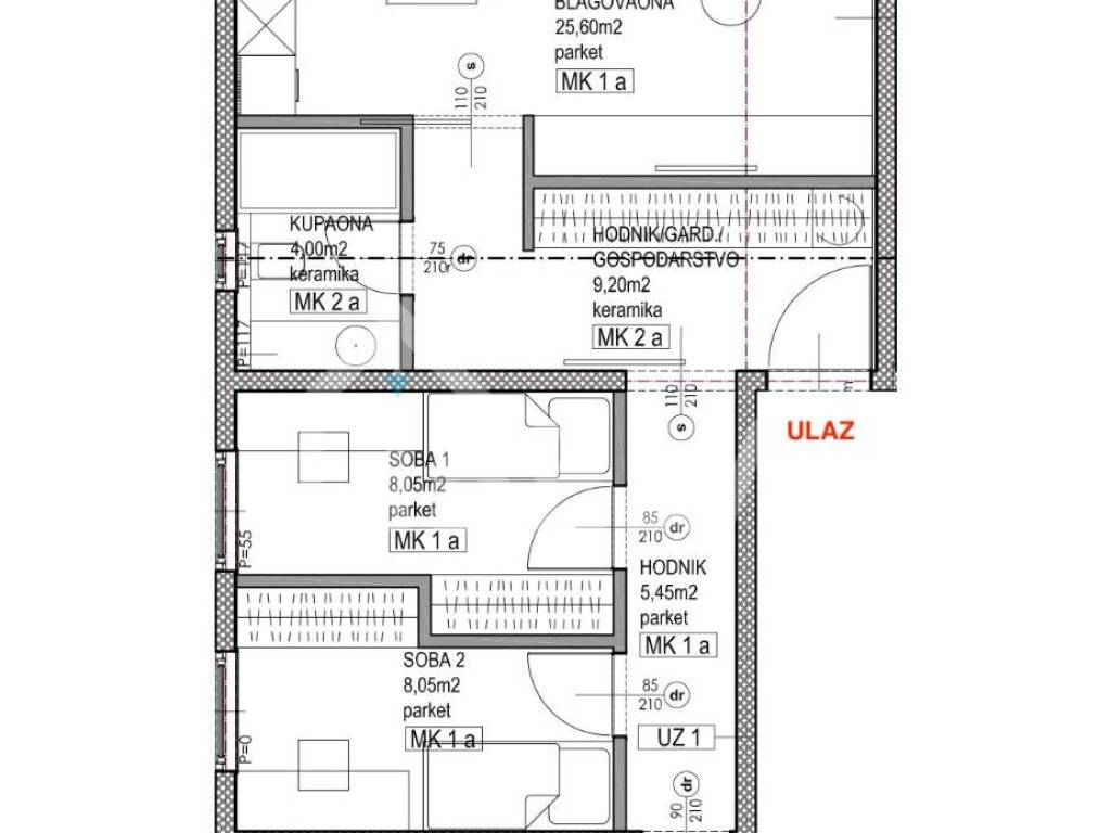
Prodaje se četverosobni stan neto obračunske površine 101,74 m2 na 1. katu novogradnje bez lifta.
Useljenje je predviđeno za jesen 2026. godine.
Stan B-S2 sastoji se od dnevnog boravka s kuhinjom i blagovaonicom, 3 spavaće sobe, 2, kupaonice, ulaznog hodnika, hodnika i loggie. Stanu pripadaju spremište, garaža i vanjsko parkirno mjesto u prizemlju zgrade.
Zgrada se sastoji od 3 etaže, prizemlja, 1. i 2. kata. Sadrži 4 stambene jedinice. Smještena je u Sisačkoj ulici širem centru Velike Gorice, u blizini svih sadržaja bitnih za ugodan i kvalitetan život.

Kratki tehnički opis:
Armirano betonska konstrukcija i ploče
Termo fasada
Očekivani energetski razred je A+
PVC stolarija
Grijanje: podno - dizalica topline
Klima
Podovi: parket, a u kupaonicama pločice i sanitarije 1. klase
Protuprovalna vrata
Orijentacija: SZ-JZ-JI
Parking: garaža i vanjsko parkirno mjesto
Cijena: garaža, spremište i VPM 320.48

Kupnja direktno od investitora, ne plaća se porez na promet nekretnina

Svim svojim kupcima osiguravamo BESPLATNO kreditno posredovanje u ishođenju stambenog kredita.

Sve dodatne informacije kao i dogovor oko razgledavanja nekretnine možete dobiti pozivom na broj:
099/6655767 Krunoslav Črep

LIBELIN ŠTREBERAJ

Želite znati više o tajnama tržišta nekretnina? Zanima vas koliko iznosi kapara, ili kako kupiti nekretninu putem kredita i slične teme?
Otkrijte sve to i još mnogo više u LIBELINOM ŠTREBERAJU.
Kliknite na link i započnite svoje istraživanje: Libelin Štreberaj.

#velikagorica #gorica #centar #malagorica #chromosovonaselje #visoki brijeg #starigrad #kurilovec #galženica #kupnjastana #novogradnja #novogradnjavelikagorica
Ako želite znati više, možete razgovarati s Krunoslav Črep.
Značajke
Vrsta
Stan
Ugovor
Prodaja
Kat
1 kat
Površina
102 m²
Prostorije
5+
Spavaće sobe
3
Kupaonice
2
Grijanje
Centralno
Informacije o cijeni
Cijena
€ 320.481
Cijena po m²
3.142 €/m²
Energetska učinkovitost
  • Godina izgradnje

    2026
  • Stanje

    Novo / U izgradnji
  • Grijanje

    Centralno
  • Energetski certifikat

    Neklasificirano
Otkrijte svaki kutak nekretnine
+7
Dodatne mogućnosti

Obratite se oglašivaču

Ili