Trosobni stan Bibinje, Bibinje

€ 230.080
3
57 m²
1
2
Ne
Balkon

Bilješka

Oglas ažuriran 21. 04. 2026.
Opis

referenca: S-1390

BIBINJE – dvosobni stan S5 od 57 m2 na 2. katu, 150 m od mora, NOVOGRADNJA!

BIBINJE – prodaje se dvosobni stan S5 od 57,52 m2 na 2. katu, 150 m od mora, NOVOGRADNJA!

Na mirnoj lokaciji, svega 150 metara od mora, smješten je moderan projekt novogradnje.
Zgrada se prostire na prizemlje i dva kata te obuhvaća ukupno 6 stambenih jedinica.
U prizemlju je predviđen poslovni prostor, dok su na prvom i drugom katu smještena po tri komforna stana.

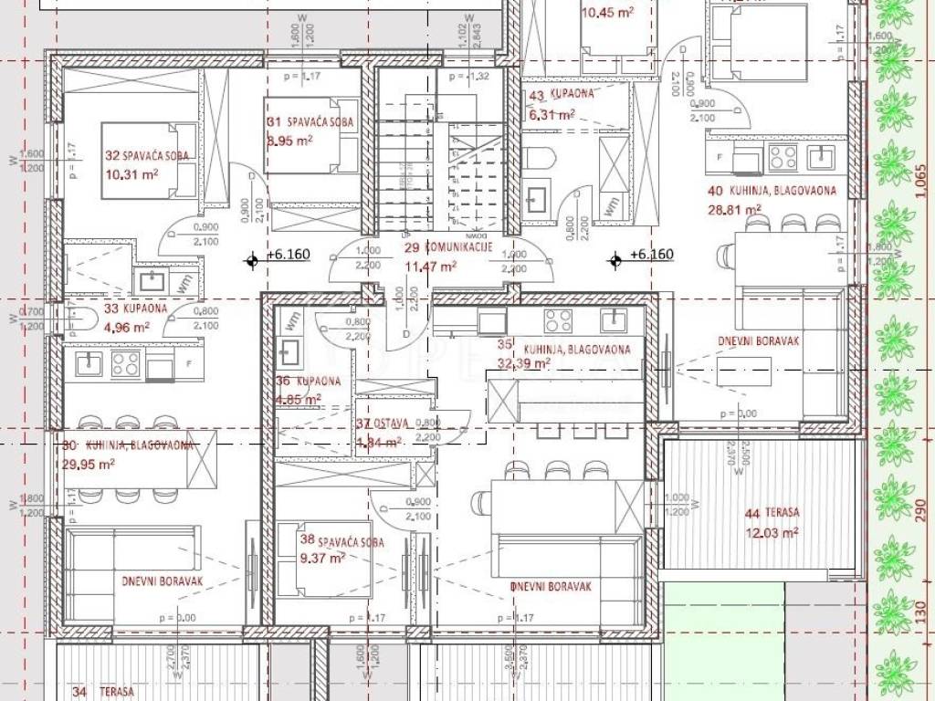
Stan S5 se nalazi na 2. katu i sastoji se od:
- kuhinje s dnevnim boravkom (32,39 m2)
- spavaće sobe 1 (9,37 m2)
- kupaonice (4,85 m2)
- ostave (1,84 m2)
- terase (12,64 m2 x 0,5 = 6,32 m2)
- 1 parkirno mjesto (13,75 m2 x 0,2 = 2,75 m2)
Ukupna bruto površina stana je 74,84 m2, dok neto površina iznosi 57,52 m2.

U građenju zgrade se koriste visoko kvalitetni materijali u skladu s najvišim standardima gradnje.
Opremljenost stanova:
- Sanitarije i pločice visoke kvalitete
- Kvalitetna PVC i ALU stolarija s elektroroletama i komarnicima
- Protupožarna i protuprovalna ulazna vrata
- Podno grijanje u svim prostorijama
- Inverter klima uređaj (više unutarnjih jedinica)
- Termo fasada od 10 cm
- Video nadzor i portafon

U zgradi su na prodaju sljedeći stanovi:
S1 - dvosobni stan od 67,05 m2 na 1. katu – 268.180,00 €
S2 - dvosobni stan od 57,51 m2 na 1. katu – 230.040,00 €
S3 - dvosobni stan od 62,70 m2 na 1. katu – 250.780,00 €
S4 - dvosobni stan od 68,02 m2 na 2. katu – 272.060,00 €
S5 - dvosobni stan od 57,52 m2 na 2. katu – 230.080,00 €
S6 - dvosobni stan od 62,95 m2 na 2. katu – 251.780,00 €

Bibinje je dalmatinsko mjesto smješteno uz samo more, nedaleko od Zadra, poznato po čistim plažama i opuštenoj mediteranskoj atmosferi.
Nudi savršen spoj tradicionalnog dalmatinskog načina života i moderne infrastrukture.
Idealno za odmor ili cjelogodišnje stanovanje.
Blizina marine Dalmacija, brojnih restorana i svih potrebnih sadržaja dodatno doprinosi njegovoj atraktivnosti.

Početak radova je predviđen na jesen 2026.g, a završetak do kraja 2027.g.

**KUPAC NE PLAĆA AGENCIJSKU PROVIZIJU!

ID CODE: S-1390

Alma Cipurković
Mob: +385 (0)91 400 1616
Tel: +385 (0)99 284 1984
E-mail: alma@perlanekretnine.hr
www.perlanekretnine.hr

Iva Prtenjača
Mob: +385 (0)91 400 1414
Tel: +385 (0)99 284 1984
E-mail: iva@perlanekretnine.hr
www.perlanekretnine.hr
Značajke
Vrsta
Stan
Ugovor
Prodaja
Kat
2 kat
Katovi zgrade
2
Dizalo
Ne
Površina
57 m²
Prostorije
3
Spavaće sobe
2
Kupaonice
1
Balkon
Da
Terasa
Ne
Garažno mjesto, parkirna mjesta
1 na zajedničkom parkingu
Grijanje
Samostalno, zrak
Klimatizacija
Samostalno, hlađenje/grijanje
Informacije o cijeni
Cijena
€ 230.080
Cijena po m²
4.036 €/m²
Energetska učinkovitost
  • Godina izgradnje

    2026
  • Grijanje

    Samostalno, zrak
  • Klima uređaj

    Samostalno, hlađenje/grijanje
  • Energetski certifikat

    Neklasificirano
Otkrijte svaki kutak nekretnine
+12
Dodatne mogućnosti

Obratite se oglašivaču

Ili