Trosobni stan Umag, Centar, Luka, Finida, Umag

€ 402.061
3
87 m²
1
1
Da
Terasa

Bilješka

Oglas ažuriran 25. 04. 2026.
Opis

referenca: 29

Umag, top lokacija – stan na 1. katu, pogled na more, 200 m od mora

Umag, top lokacija – stan na 1. katu s pogledom na more, 200 m od mora

Na jednoj od najtraženijih lokacija u okolici Umaga, svega 200 metara pješice od mora, prodaje se moderan stan oznake C smješten na 1. katu kvalitetne novogradnje.
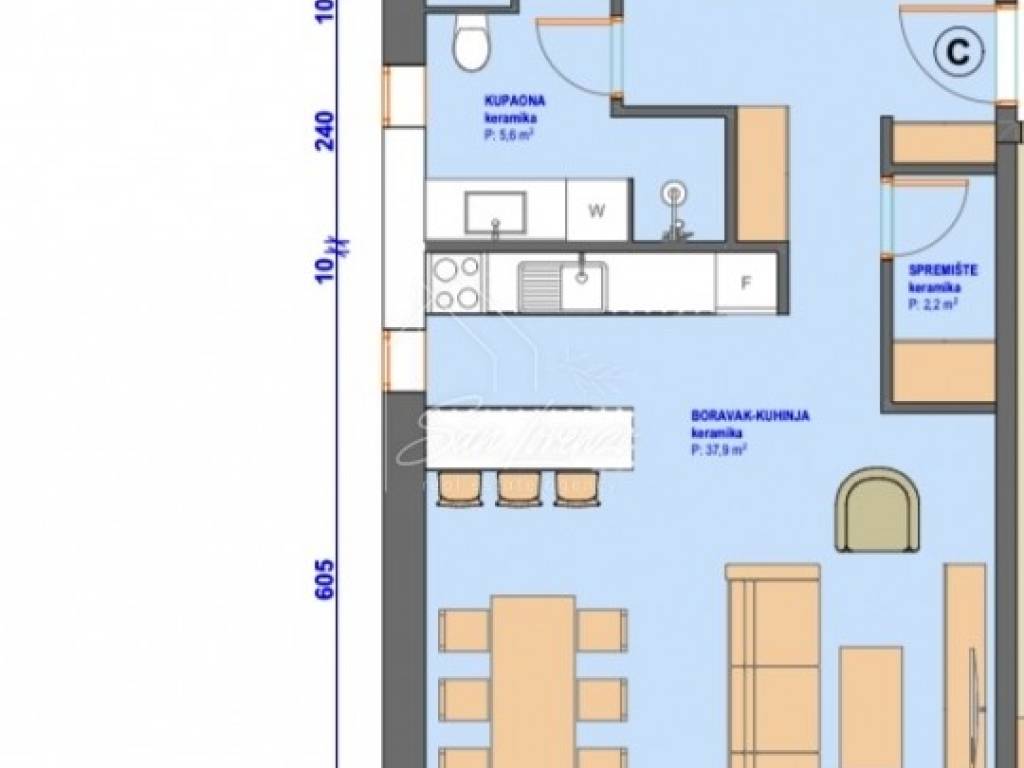
Stan ukupne površine 87,11 m² pažljivo je projektiran kako bi pružio maksimalnu funkcionalnost i udobnost stanovanja. Sastoji se od:
dnevni boravak s kuhinjom i blagovaonicom: 37,90 m²
spavaća soba 1: 12,60 m²
spavaća soba 2: 11,70 m²
kupaonica: 5,60 m²
spremište u stanu: 2,20 m²
natkrivena terasa: 16,00 m²
Stan se ističe odličnim rasporedom, obiljem prirodnog svjetla te ugodnim spojem unutarnjeg i vanjskog prostora. Natkrivena terasa pruža ugodan prostor za boravak na otvorenom, uz pogled na more koji dodatno povećava vrijednost nekretnine.
Uz stan dolaze i dodatne pripadajuće jedinice:
spremište oznake 4
natkriveno parkirno mjesto br. 4: 13,30 m²
parkirno mjesto br. 10: 12,60 m²
Nekretnina se ističe visokom kvalitetom gradnje i suvremenom opremom koja osigurava ugodan boravak tijekom cijele godine. Ugrađeno je električno podno grijanje, dok se za hlađenje brinu klima uređaji u svakoj prostoriji. Stan je opremljen protuprovalnim, protudimnim i protupožarnim ulaznim vratima, aluminijskim staklenim stijenama, PVC prozorima te električnim roletama, a dodatnu vrijednost prostoru daju velike staklene površine i obilje prirodnog svjetla. Sanitarije su uključene u cijenu.
Dodatno, osigurana je i priprema za punjenje električnih vozila – izvedena je prva faza instalacija na parkirnim mjestima (provedene cijevi).
Zgrada je opremljena liftom i građena prema suvremenim standardima, s naglaskom na dugoročnu kvalitetu i energetsku učinkovitost.
Lokacija nudi savršen balans mira i dostupnosti – u neposrednoj blizini nalaze se uređene plaže, restorani, trgovine, šetnice i biciklističke staze.
Dodatna prednost za kupce je činjenica da je nekretnina u vlasništvu pravne osobe, zbog čega kupac ne plaća porez na promet nekretnina od 3%.
Uživajte u miru i mediteranskom načinu života u ovoj atraktivnoj nekretnini u Umagu, svega 200 m od mora.
Za sve informacije, San Lorenzo Realty stoji vam na raspolaganju.

ID CODE: 29

Biba Tenžera
Agent s licencom
Mob: +385 958916333
E-mail: info@sanlorenzo-realty.hr
www.sanlorenzo-realty.hr
Značajke
Vrsta
Stan
Ugovor
Prodaja
Kat
1 kat
Katovi zgrade
3
Dizalo
Da
Površina
87 m²
Prostorije
3
Spavaće sobe
2
Kupaonice
1
Balkon
Ne
Terasa
Da
Garažno mjesto, parkirna mjesta
2 na zajedničkom parkingu
Grijanje
Samostalno, zrak
Klimatizacija
Samostalno, hlađenje/grijanje
Informacije o cijeni
Cijena
€ 402.061
Cijena po m²
4.621 €/m²
Energetska učinkovitost

Potrošnja energije

A+

Tlocrt
Dodatne mogućnosti

Obratite se oglašivaču

Ili