Četverosobni stan Retfala, Industrijska četvrt, Retfala, Josipovac, Osijek

€ 349.000
4
125 m²
1

Bilješka

Oglas ažuriran 29. 04. 2026.
Opis

referenca: EUROVILLA-938097

Osijek, Retfala, odlično raspoređen peterosoban stan na 1. katu, 125 m²

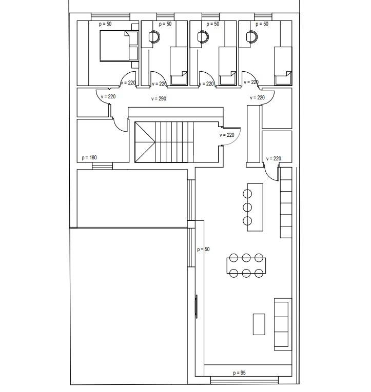
Osijek, Retfala – na prodaju je peterosoban stan u novogradnji smješten na prvom katu urbane vile s ukupno tri etaže koja počinje sa izgradnjom na jesen 2026. godine, dok je završetak radova predviđen u roku od 18 mjeseci.Riječ je o stanu neto površine 125,11 m², projektiranom za obiteljski život s naglaskom na funkcionalan raspored prostorija i odvojenost dnevnog i spavaćeg dijela. Stan je orijentiran na sjever i jug, što omogućuje dobru prirodnu osvijetljenost i prozračnost tijekom dana. Uz stan dolaze dva parkirna mjesta.Ulaskom u stan pristupa se prostranom hodniku koji povezuje sve prostorije. Dnevni dio sastoji se od open space prostora površine 49,05 m² u kojem su objedinjeni dnevni boravak, kuhinja i blagovaonica, s izlazom na loggiu površine 10,28 m². Spavaći dio čine četiri sobe, od kojih je jedna predviđena kao glavna spavaća soba, dok su preostale tri pogodne za dječje sobe, radnu sobu ili garderobu. Stan raspolaže s dvije kupaonice, što dodatno doprinosi funkcionalnosti, kao i s dvije ostave unutar stana.U sklopu opreme predviđeno je podno grijanje, klima uređaji, PVC stolarija s električnim podizanjem i spuštanjem roleta te suvremeni standardi gradnje novije generacije.Stan se nalazi u osječkoj Retfali, u blizini svih sadržaja potrebnih za svakodnevni život, uključujući škole, vrtiće, trgovine, javni prijevoz i glavne prometne pravce. Lokacija omogućuje dobru povezanost s ostalim dijelovima grada, uz mirno stambeno okruženje.Kupcima se na vrijeme otvara mogućnost planiranja kupnje i eventualnih prilagodbi interijera u ranoj fazi gradnje.Za sva dodatna pitanja i informacije stojimo Vam uvijek na raspolaganju.... Više na eurovilla.hr, ID: 938097
Ako želite znati više, možete razgovarati s Emir Omerović.
Značajke
Vrsta
Stan
Ugovor
Prodaja
Kat
1
Površina
125 m²
Prostorije
4
Spavaće sobe
4
Detalji površine

Stambeni prostor

Kat
1
Površina
125,0 m²
Koeficijent
100%
Vrsta površine
Glavni
Komercijalna površina
125,0 m²
Informacije o cijeni
Cijena
€ 349.000
Cijena po m²
2.792 €/m²
Energetska učinkovitost
  • Stanje

    Novo / U izgradnji
  • Energetski certifikat

    Oslobođeno
Tlocrt
Dodatne mogućnosti

Obratite se oglašivaču

Ili