Trosobni stan novo, drugi kat, Sveti Filip i Jakov

€ 359.784
3
107 m²
1
2
Terasa

Bilješka

Oglas ažuriran 22. 01. 2026.
Opis

referenca: 5002

Sv.PETAR NA MORU-NOVOGRADNJA-PENTHOUSE-2 sp.sobe-107 m2-POGLED NA MORE

Prodaje se moderan stan u NOVOGRADNJI / zgradi sa ukupno 6 stambenih jedinica, na odličnoj lokaciji u blizini mora u mjestu Sv. Petar na moru. Objekt se sastoji od prizemlja, prvog i drugog kata, i ima pogled na more, a udaljenost do plaže je svega 150 m!!
Sa objekta se pruža nevjerojatan pogled na otok Galešnjak, poznat i kao "Otok ljubavi", smješten u zadarskom arhipelagu i na kristalno čisto more. Njegov romantični oblik srca i netaknuta priroda privlači avanturiste i ljubitelje divljih pejzaža, te nudi nezaboravno iskustvo.
Zgrada je trenutno u izgradnji, završetak radova planiran je do 05/2026., a ishođenje uporabne dozvole očekuje se do 09/2026. godine.
 
KARAKTERISTIKE ZGRADE:
- Armirano - betonska konstrukcija,
- Fasada / termoizolacija 10 cm,
- Knauf pregrade / duplo opločenje,
- Stolarija PVC / trostruko ostakljenje - podizno-klizne stijene,
- Rolete sa ugrađenim elektro-podizačima i komarnicima,
- Podno el. grijanje instalirano u kupaonici i dnevnom boravku - mogućnost WIFI upravljanja
- Hlađenje / Grijanje putem Multi-split klima uređaja - u dnevnom boravku i spavaćim sobama mogućnost WIFI upravljanja
- Videoportafon na ulazu u zgradu
- Sanitarije renomiranih proizvođača / walk in tuš
 
 
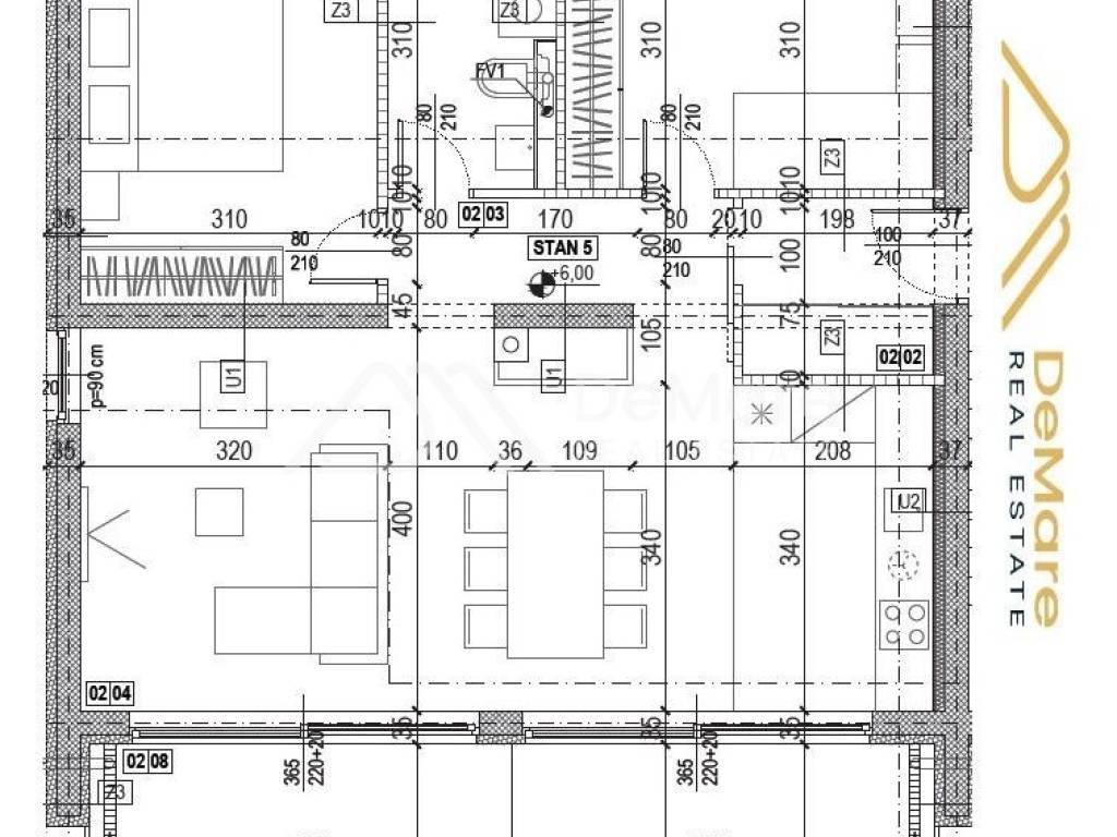
PENTHOUSE S5 stan na 2. KATU s dvije spavaće sobe
Stan se nalazi na drugom katu i sastoji se od:
≈ hodnika / 3,70 m2,
≈ 2 spavaće sobe / 13,33 m2 i 11,93 m2,
≈ kupaonice / 5,08 m2,
≈ predsoblja, / 3,95 m2,
≈ dnevnog boravka s kuhinjom i blagovaonicom / 34,21 m2,
≈ natkrivene terase / 18,70 m2.
Unutarnji stambeni prostor zauzima ukupno 72,20 m2.
Unutarnjim stubištem može se pristupiti prostranoj krovnoj terasi / 94,68 m2, sa koje se pruža panoramski pogled na more i otoke.
Stanu pripada i jedno vanjsko parkirno mjesto / 12,50 m2 na okućnici zgrade.
Ukupna obračunska korisna vrijednost površine stana s pripadcima iznosi 107,72 m2.
 
Postoji mogućnost odabira keramike i parketa od ponuđene tri varijante, prema dogovoru s investitorom i ovisno o fazama gradnje.
 
Plaćanje prvog dijela je 10 % od cijene nekretnine (kapara), a za ostatak iznosa postoji mogućnost financiranja stambenim kreditom.
Kupac plaća agencijsku proviziju u iznosu od 1,5 % + PDV.
Prodavatelj je pravna osoba u sustavu pdv-a, pa stoga kupac NE PLAĆA porez na promet nekretnina.
Za sva dodatna pitanja i informacije slobodno nas nazovite!
 
De Mare d.o.o.
Tel: +385 23 300 400
Mail: info@demare.hr
 
LOKACIJA:
Sv. PETAR NA MORU udaljen je 15-ak km jugoistočno od grada Zadra i svega 10 km sjeverozapadno od starog gradića Biograda na moru. Udaljenost do zračne luke Zemunik je 9 km.
Ovo malo mjesto pruža sve što Vam je potrebno za svakodnevni život i za idealan godišnji odmor. Brojni restorani, kafići i trgovine učinit će boravak u ovom mjestu još opuštenijim. Sv. Petar je mjesto poznato po prekrasnim šljunčanim plažicama, a blizu je grada Biograda na moru, u kojem se nude brojni dodatni turistički sadržaji.
 
Ako želite znati više, možete razgovarati s Ivo Strenja.
Značajke
Vrsta
Stan
Ugovor
Prodaja
Kat
2
Katovi zgrade
2
Površina
107 m²
Prostorije
3
Spavaće sobe
2
Kupaonice
1
Terasa
Da
Garažno mjesto, parkirna mjesta
1 na zajedničkom parkingu
Klimatizacija
Samostalno, hlađenje/grijanje
Pogled
More, panoramski pogled
Ostale karakteristike
  • Vanjska stolarija od stakla / PVC-a
Detalji površine

Stambeni prostor

Kat
2
Površina
107,7 m²
Koeficijent
100%
Vrsta površine
Glavni
Komercijalna površina
107,7 m²
Informacije o cijeni
Cijena
€ 359.784
Cijena po m²
3.362 €/m²
Pojedinosti o troškovima
Troškovi etažiranja
Bez naknada za etažno vlasništvo
Energetska učinkovitost
  • Godina izgradnje

    2025
  • Stanje

    Novo / U izgradnji
  • Klima uređaj

    Samostalno, hlađenje/grijanje
  • Energetski certifikat

    Neklasificirano
Otkrijte svaki kutak nekretnine
+19
Dodatne mogućnosti

Obratite se oglašivaču

Ili