map icon

Stan novo, prvi kat, Nin

Nin
€ 363.600
5
73 m²
1
1
Da
Terasa

Bilješka

Oglas ažuriran 23. 12. 2025.
Opis

referenca: 3857-1

Prodaje se luksuzni stan / apartman samo 20 m od mora u Zatonu. Radi se o novogradnji s liftom u 2. redu do mora u Zatonu kod Zadra. Apartman ima djelomičan pogled na more.
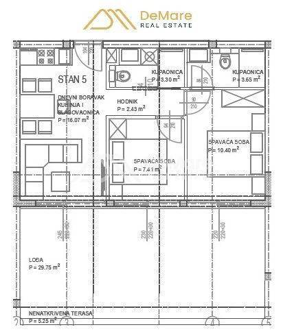
Ovo je stan je na prvom katu objekta . Raspored prostorija čine hodnik, 2 spavaće sobe, kupaonica, kuhinja s blagovaonicom i dnevnim boravkom te dijelom natkrivena terasa. Neto korisna površina opisanih prostorija s terasom iznosi 65,57 m2. Dodatno apartmanu pripadaju dva parkirališna mjesta .
Ukupna neto površina apartmana sa svim pripacima iznosi 72,72 m2.
Nekretnina je u sustavu PDV-a, kupac ne plaća porez na promet nekretnina.
Plaćanje prvog dijela iznosa 10 % od cijene nekretnine (kapara), a za ostatak iznosa mogućnost financiranja stambenim kreditom.
Ova nekretnina je od centra mjesta Zaton udaljena svega 700 m, a grad Zadar je udaljen oko 12 km.

Oprema:
Gradnja ciglenim termo blokom. Termoizolacija fasade 10 cm stiropor. Podne obloge su pločice i parketi. Aluminijski prozori s troslojnim staklom, komarnicima te električnim roletama i žaluzinama. Klima uređaji su u dnevnom boravku i svakoj spavaćoj sobi. Osim toga, podno grijanje (dizalicom topline) i klima uređaje Mitsubishi . Nadalje, ulazna vrata su protuprovalna i protupožarna. U vrtu se nalazi vanjski tuš.
Za ovu nekretninu se očekuje energetski certifikat A.

Lokacija:
Zaton je malo turističko mjesto idealno za istinski odmor i opuštanje od stresa svakodnevnice. Smješten je između dvaju povijesnih gradova Nina (2 km) i Zadra (12 km).
Predstavlja jedinstveni spoj dalmatinske arhitekture, ugodne mediteranske klime, očuvane prirode, bogate kulturno povijesne baštine te živahne turističke svakodnevnice.
Nin je također poznat po dugim pješčanim plažama, ljekovitim blatu. Blizina NP Paklenica i Kornati .
Značajke
Vrsta
Stan
Ugovor
Prodaja
Kat
1 kat
Dizalo
Da
Površina
73 m²
Prostorije
5
Spavaće sobe
2
Kupaonice
1
Terasa
Da
Klimatizacija
Centralno, hlađenje/grijanje
Ostale karakteristike
  • Protuprovalna vrata
Informacije o cijeni
Cijena
€ 363.600
Cijena po m²
4.981 €/m²
Energetska učinkovitost
  • Godina izgradnje

    2025
  • Stanje

    Novo / U izgradnji
  • Klima uređaj

    Centralno, hlađenje/grijanje
  • Energetski certifikat

    Neklasificirano
Otkrijte svaki kutak nekretnine
+17
Dodatne mogućnosti

Obratite se oglašivaču

Ili