map icon

Obiteljska kuća 207 m², Sesvete sjever, Zagreb

ZagrebSesvete sjever
€ 149.000
5+
207 m²

Bilješka

Oglas ažuriran 16. 04. 2026.
Opis

referenca: 3059-1

BEZ PROVIZIJE ZA KUPCE!
Uvijek najpovoljniji !

Prodaje se samostojeća kuća s okućnicom. Kuća se prostire na tri etaže NKP 206.93m2 sa okućnicom od 797m2. Kuća ima priključak na gradski vodovod, struju, plin te septičku jamu. 1993.g. uređena je fasada na kući (termožbuka), 2000.g. promijenjen je dio crijepa na krovu.

Kuća je smještena uz glavnu cestu (relacija Sesvete - Kašina), u neposrednoj blizini autobusne stanice (30m). Nalazi se u blizini vrtića, škole, trgovine, doma zdravlja, ljekarne te drugih bitnih sadržaja.

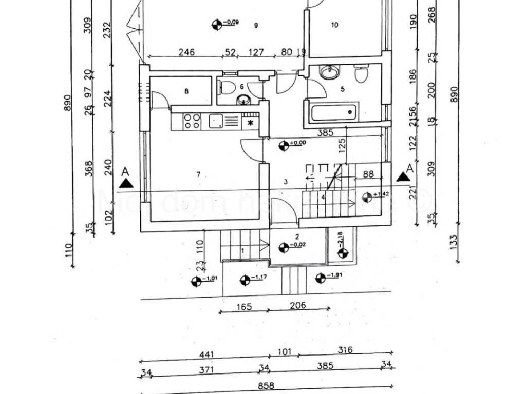
Sastoji se od:
PODRUM:
- spremišta
PRIZEMLJE:
- kuhinje s blagovaonom
- kupaone
- wc-a
- sobe
- garaže
- stubišta
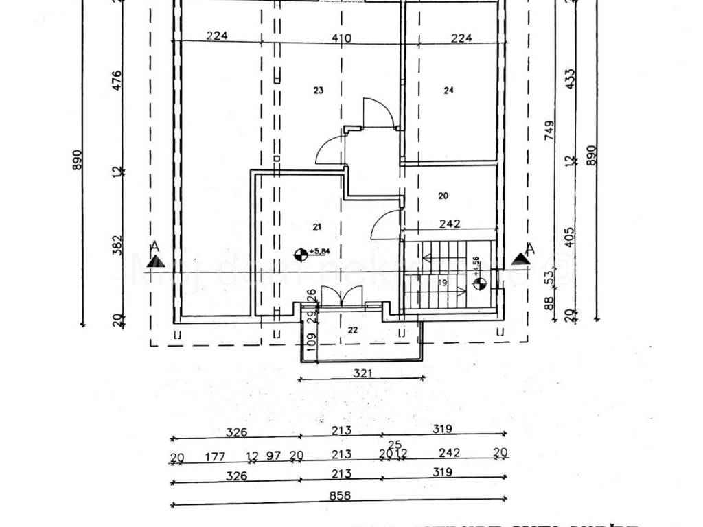
KAT:
- 3 sobe
- stubišta
- 3 balkona
POTKROVLJE:
- 2 sobe
- stubišta
- balkona

Grijanje u kući: plinsko-etažno
Godina izgradnje: 1968.g.
Energetski certifikat: u izradi.
Orijentacija: ZAPAD - ISTOK - JUG
Vlasništvo uredno

Posrednik: Mislav Plavanjac, Moj dom nekretnine d.o.o.

*USLUGE KREDITIRANJA *
U suradnji s licenciranim kreditnim posrednicima olakšavamo Vam put do stambenog kredita pronalaskom najpovoljnijeg modela kredita za Vas. Kontaktirajte nas i prepustite se planiranju useljenja u svoj dom iz snova!
*ENERGETSKO CERTIFICIRANJE NEKRETNINA*
U suradnji s licenciranim energetskim certifikatorima nudimo Vam mogućnost usluge energetskog certificiranja Vaše nekretnine. Obratite nam se!
Za sve dodatne informacije možete nas kontaktirati na broj mob.: 099/637-2727 ili na kontakte navedene u oglasu. Obratite se s povjerenjem!
Cjelokupna ponuda nekretnina na www.mojdom-nekretnine.hr
Ako želite znati više, možete razgovarati s Mislav Plavanjac.
Značajke
Vrsta
Obiteljska kuća
Ugovor
Prodaja
Kat
1
Površina
207 m² | poslovni prostor 1.085 m²
Prostorije
5+
Detalji površine

Stambeni prostor

Kat
1
Površina
207,0 m²
Koeficijent
100%
Vrsta površine
Glavni
Komercijalna površina
207,0 m²

Zemljište

Kat
Prizemlje
Površina
878,0 m²
Koeficijent
100%
Vrsta površine
Dodatno
Komercijalna površina
878,0 m²
Informacije o cijeni
Cijena
€ 149.000
Cijena po m²
137 €/m²
Energetska učinkovitost
  • Godina izgradnje

    1968
  • Energetski certifikat

    Neklasificirano
Otkrijte svaki kutak nekretnine
+16
Dodatne mogućnosti

Obratite se oglašivaču

Ili