Stan novo, Novalja

€ 481.545
117 m²
Ne

Bilješka

Oglas ažuriran 09. 11. 2025.
Opis

referenca: A741

Novalja, 117,45m2, mirna oaza Novalje, Ap2

Prodaje se vrhunski apartman na tri etaže bruto površine 117,45 m2, u kućama u nizu sa vrtom, u mirnoj oazi Novalje.

Apartman je smješten u sklopu manjeg kompleksa od pet zasebnih stambenih jedinica, te nudi privatnost, udobnost i visoku kvalitetu gradnje. Svaka jedinica ima vlastiti vrt te osigurana dva parkirna mjesta.

Raspored prostora:

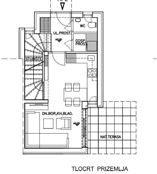
1. Prizemlje se sastoji od ulaznog prostora, spremišta, gostinjskog WC-a, prostranog dnevnog boravka s kuhinjom i blagovaonicom u otvorenom konceptu, elegantno povezanih s natkrivenom terasom i dvorištem površine 85,28 m2, u kojem se nalazi i kameni roštilj.

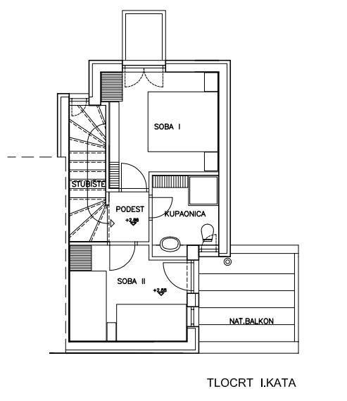
2. Prvi kat obuhvaća dvije udobne spavaće sobe, modernu kupaonicu te natkriveni balkon koji dodatno oplemenjuje prostor.

3. Podrum, površine 57,76 m2, pruža razne mogućnosti uređenja – može poslužiti kao konoba, wellness zona, igraonica ili dodatne spavaće sobe, ovisno o željama i potrebama budućih vlasnika.

Ukupna obračunska površina nekretnine iznosi 117,45 m2. U cijenu su uključena i dva parkirna mjesta te pripadajući vrt.

Položaj kuće osigurava brzu povezanost s plažama Vrtić i Lokunje.

Nekretnina se nalazi na izvrsnoj lokaciji, samo 200 metara od mora i plaže te 500 metara od centra Novalje. U blizini su svi ključni sadržaji – trgovine, restorani, dom zdravlja, autobusni kolodvor i ostali sadržaji potrebni za ugodan boravak.

Za dodatne informacije i dogovor oko razgledavanja, molimo vas kontaktirajte našeg agenta Igora na 095/581-4355.
Ako želite znati više, možete razgovarati s Igor Balog.
Značajke
Vrsta
Stan | Luksuzna nekretnina
Ugovor
Prodaja
Dizalo
Ne
Površina
117 m²
Spavaće sobe
0
Balkon
Ne
Terasa
Ne
Informacije o cijeni
Cijena
€ 481.545
Cijena po m²
4.116 €/m²
Energetska učinkovitost

Potrošnja energije

A+

Otkrijte svaki kutak nekretnine
+22
Dodatne mogućnosti

Obratite se oglašivaču

Ili