Stan novo, prvi kat, Tar-Vabriga

€ 200.640
5
63 m²
1
1
Da

Bilješka

Oglas ažuriran 14. 03. 2026.
Opis

referenca: 2346-1

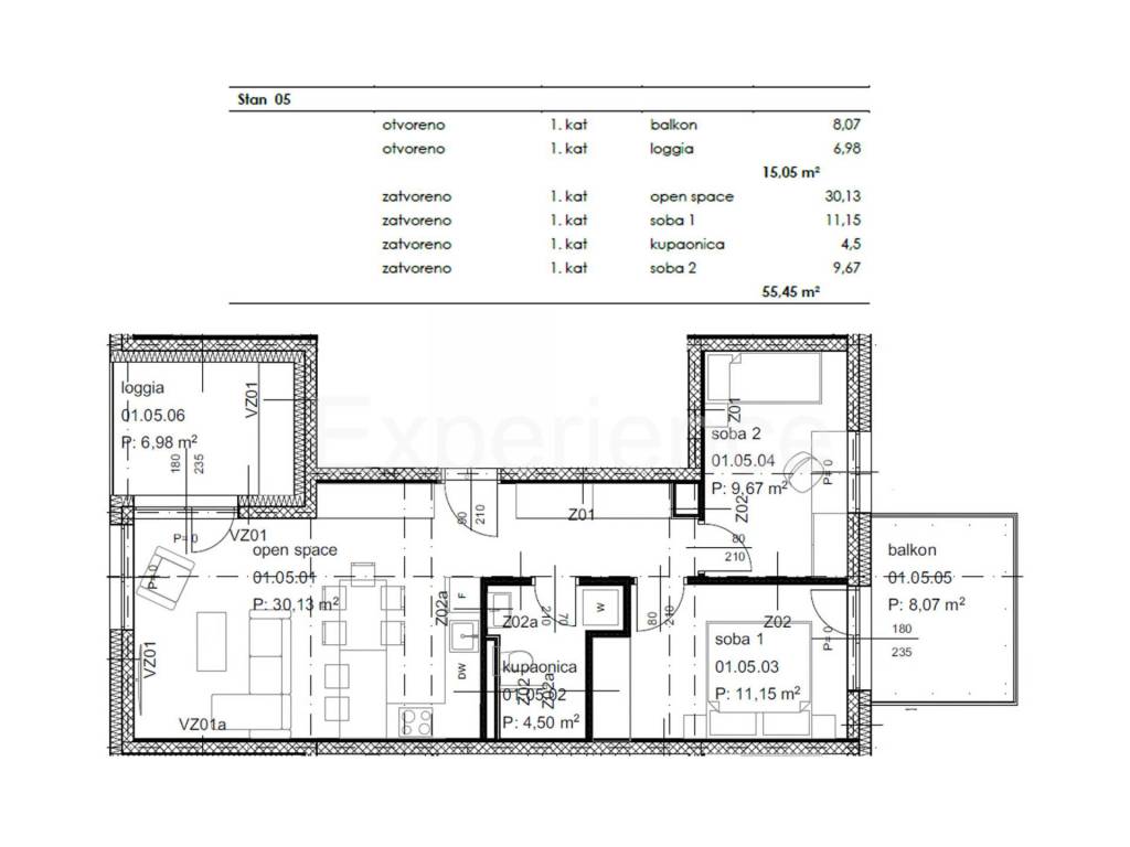
U Taru cca. 2.500 m od mora, u iznimno mirnom ambijentu na prodaji je trosoban stan, površine 62,70 m. Stan se nalazi na prvom katu rezidencijalne zgrade. Sadrži: otvoren i svijetao prostor u kojem su smješteni dnevni boravak, kuhinja i blagovaonica sa izlazom na lođu (6,98 m), dvije spavaće sobe od kojih jedna spavaća soba ima izlaz na balkon (8,07 m) i kupaonicu.

U prizemlju zgrade nalazi se zajedničko spremište za bicikle. Zgrada je opremljena liftom.

Stanu također pripadaju dva parkirna mjesta ispred zgrade.

Tehničke karateristike:
- termoizolacijska vuna 18 cm,
- armirano - betonska konstrukcija otoprna na potrese,
- lift,
- električno podno grijanje u cijelom stanu i termostat u svakoj prostoriji,
- klima uređaji u svim prostorijama,
- PVC stolarija sa troslojnim staklima,
- komarnici,
- električne rolete,
- protupožarna ulazna vrata,
- poratafon sa videopozivom,
- kvalitetna talijanska keramika,
- sanitarije Villeroy i Boch.

Posebna pogodnost ovog stana je LOKACIJA, na pješačkoj udaljenosti nalaze se škola, vrtić, apoteka, nekoliko restorana, trgovina, supermarket i caffe bar.
Planirani dovršetak gradnje je do lipnja 2026. godine.

Uz napomenu, prilikom kupnje nekretnine ne plaća se porez na promet nekretnina u iznosu 3% od ugovorene kupoprodajne cijene. U navedenoj cijeni uključen je PDV (25%).
Ako želite znati više, možete razgovarati s Patricija Simonetti.
Značajke
Vrsta
Stan
Ugovor
Prodaja
Kat
1 kat
Dizalo
Da
Površina
63 m²
Prostorije
5
Spavaće sobe
2
Kupaonice
1
Grijanje
Centralno
Ostale karakteristike
  • Protuprovalna vrata
Informacije o cijeni
Cijena
€ 200.640
Cijena po m²
3.185 €/m²
Energetska učinkovitost
  • Godina izgradnje

    2026
  • Stanje

    Novo / U izgradnji
  • Grijanje

    Centralno
  • Energetski certifikat

    Neklasificirano
Otkrijte svaki kutak nekretnine
+8
Dodatne mogućnosti

Obratite se oglašivaču

Ili