Stan novo, drugi kat, Privlaka

€ 399.000
5
100 m²
2
2

Bilješka

Oglas ažuriran 28. 04. 2026.
Opis

referenca: 2245-1

Novi projekt apartmani u izgradnji, predprodaja
Smješteni na izvrsnoj lokaciji, udaljeni od mora i plaže svega 100 metara s blagim padom terena prema moru.
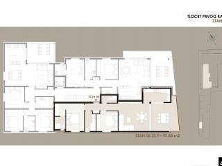
Apartman S8 smještena je na drugom katu i sastoji se od hodnika,dvije kupaone, dvije spavaće sobe, kuhinje s dnevnim boravkom, cw, natkrivenom terasom, ostava (spremište br,8) 2.80 m2.
Apartmanu pripada parkirno mjesto P2 13.75 m2
planirani rok završnih radova početak 2026 godine.
Cijena apartmana s pripadcima iznosi 399 000
Ako želite znati više, možete razgovarati s Gordana Ivanika.
Značajke
Vrsta
Stan
Ugovor
Prodaja
Kat
2 kat
Površina
100 m²
Prostorije
5
Spavaće sobe
2
Kupaonice
2
Informacije o cijeni
Cijena
€ 399.000
Cijena po m²
3.990 €/m²
Energetska učinkovitost
  • Godina izgradnje

    2025
  • Stanje

    Novo / U izgradnji
  • Energetski certifikat

    Neklasificirano
Otkrijte svaki kutak nekretnine
+3
Dodatne mogućnosti

Obratite se oglašivaču

Ili