map icon

Trosobni stan novo, Privlaka

Privlaka
€ 362.000
3
90 m²
1
Terasa

Bilješka

Oglas ažuriran 17. 11. 2025.
Opis

referenca: 35962

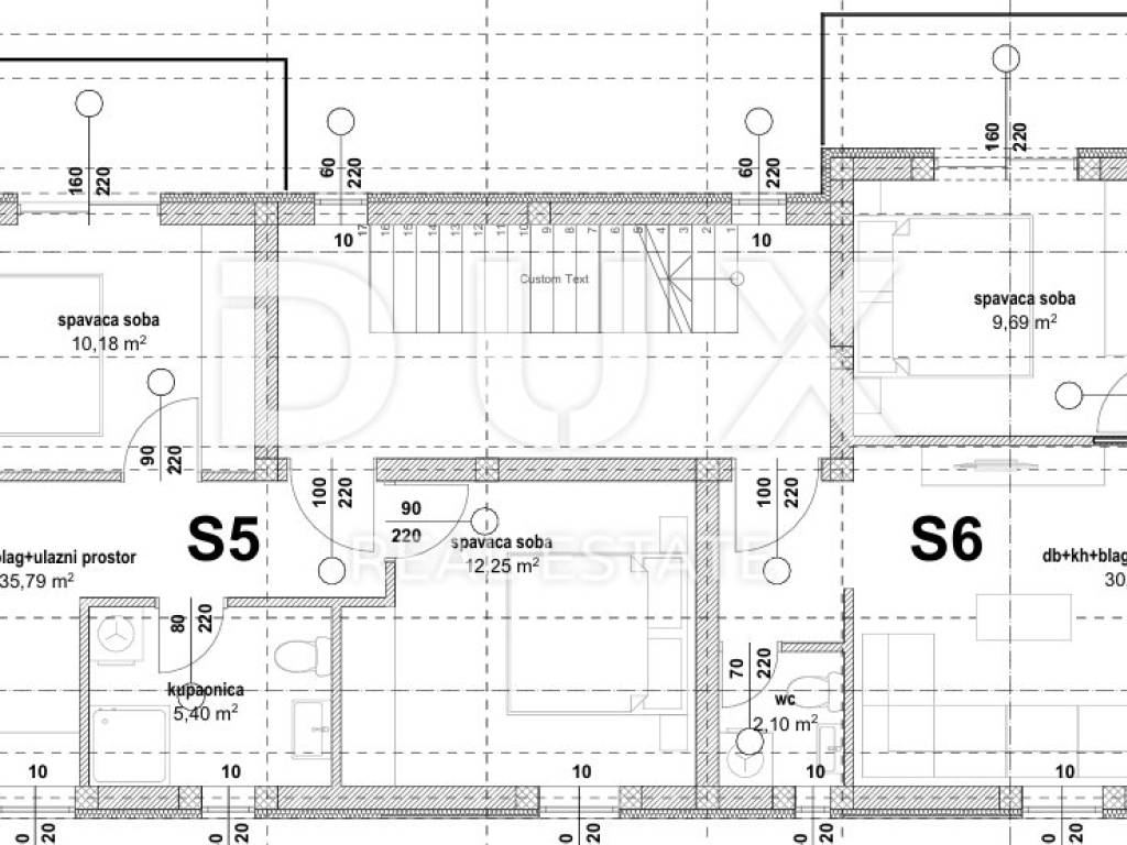
ZADAR, PRIVLAKA - Luksuzni penthouse s bazenom na krovnoj terasi! S5

ZADAR, PRIVLAKA - Luksuzni penthouse s bazenom na krovnoj terasi! S5

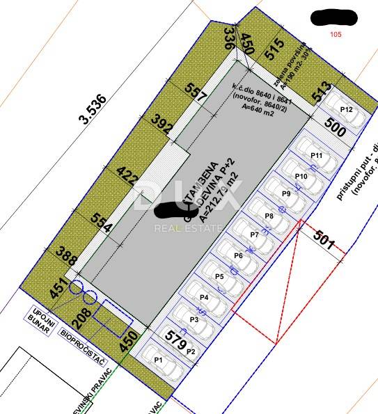
Prodaje se luksuzni penthouse u Privlaci, smješten na drugom katu novogradnje, s očaravajućim pogledom na more i udaljen samo 110 metara od obale. Ova jedinstvena nekretnina nudi savršen spoj modernog dizajna, komfora i prestiža, s pažljivo osmišljenim rasporedom koji uključuje dvije prostrane spavaće sobe, elegantnu kupaonicu, kuhinju, blagovaonicu i dnevni boravak otvorenog koncepta.

Posebnost ovog penthousea su dvije terase natkrivena terasa idealna za svakodnevno uživanje i spektakularna krovna terasa s privatnim bazenom, savršena za opuštanje uz nezaboravne panoramske poglede na more i zalaske sunca.

Stan je opremljen podnim grijanjem u cijelom prostoru te klima uređajima u svim prostorijama, što osigurava maksimalnu udobnost u svako doba godine. Dva parkirna mjesta dodatno doprinose praktičnosti ove nekretnine, čineći je idealnim izborom za luksuzni dom, odmor ili investiciju u turizam.

Kontaktirajte nas za više informacija i dogovorite razgledavanje ovog jedinstvenog penthousea!

Poštovani klijenti, agencijska provizija se naplaćuje u skladu s Općim uvjetima poslovanja.
https://www.dux-nekretnine.hr/opci-uvjeti-poslovanja

ID KOD AGENCIJE: 35962

Josip Šestan
Agent s licencom
Mob: +385 91 799 6986
Tel: +385 91 480 8808
E-mail: josip@dux-dalmacija.com
www.dux-dalmacija.com
Ako želite znati više, možete razgovarati s Josip Šestan.
Značajke
Vrsta
Stan
Ugovor
Prodaja
Površina
90 m²
Prostorije
3
Spavaće sobe
2
Kupaonice
1
Balkon
Ne
Terasa
Da
Klimatizacija
Samostalno, hlađenje/grijanje
Informacije o cijeni
Cijena
€ 362.000
Cijena po m²
4.022 €/m²
Energetska učinkovitost
  • Godina izgradnje

    2025
  • Stanje

    Novo / U izgradnji
  • Klima uređaj

    Samostalno, hlađenje/grijanje
  • Energetski certifikat

    Oslobođeno
Otkrijte svaki kutak nekretnine
+11
Dodatne mogućnosti

Obratite se oglašivaču

Ili