Obiteljska kuća 225 m², novo, Novigrad

€ 850.000
5
225 m²
3
Terasa

Bilješka

Oglas ažuriran 01. 05. 2026.
Opis

referenca: 19089

ZADAR, PRIDRAGA - Moderna vila s prekrasnim pogledom na more

ZADAR, PRIDRAGA - Moderna vila s prekrasnim pogledom na more

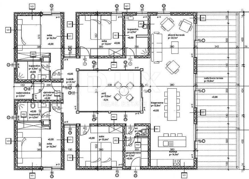
Prodaje se prizemnica stambene povšine 225 m2, a sastoji se od prostranog dnevnog boravka povezanog s kuhinjom i blagavaonicom (50 m2) ispred kojega je natkrivena terasa s bazenom. Prizemnica ima ukupno četiri spavaće sobe, od kojih dvije spavaće sobe dolaze s pripadajućim kupaonicama. Posebnost ove nekretnine ističe se u atriju unutar kojeg je stara maslina, koja izgleda kao da je kuća sagrađena oko nje. Atrij pruža kući da bude okupana svijetlom tokom cijelog dana, što pridonosi opustajućem osjećaju unutar cijele kuće.

Pridraga je malo primorsko mjesto uz sastavu općine Novigrad u Zadarskoj županiji, a u svom prekrasnom prirodnom okolišu nudi i šest kilometara dugačku šljunčanu plažu. Grad Zadar je udaljen 36 km, a zračna luka Zadar 23 km.

Poštovani klijenti, agencijska provizija naplaćuje se u skladu s Općim uvjetima poslovanja
www.dux-nekretnine.hr/opci-uvjeti-poslovanja

ID KOD AGENCIJE: 19089

DUX Nekretnine
Mob: +385 91 480 8808
Tel: +385 51 518 174
E-mail: info@dux-nekretnine.hr
www.dux-nekretnine.hr
Značajke
Vrsta
Obiteljska kuća
Ugovor
Prodaja
Površina
225 m²
Prostorije
5
Spavaće sobe
4
Kupaonice
3
Balkon
Ne
Terasa
Da
Klimatizacija
Samostalno, hlađenje/grijanje
Ostale karakteristike
  • Bazen
Informacije o cijeni
Cijena
€ 850.000
Cijena po m²
3.778 €/m²
Energetska učinkovitost

Potrošnja energije

A+

Otkrijte svaki kutak nekretnine
+22
Dodatne mogućnosti

Obratite se oglašivaču

Ili