map icon

Obiteljska kuća 160 m², Luka, Poreč

PorečLuka
€ 830.000
5
160 m²
3
Da
Balkon
Terasa

Bilješka

Oglas ažuriran 18. 11. 2025.
Opis

referenca: IS1517474

Poreč okolica, atraktivna vila s bazenom na mirnoj lokaciji

Moderna vila s bazenom na mirnoj lokaciji u okolici Poreča

Na prodaju je prekrasna moderna vila ukupne stambene površine 160 m, smještena na mirnoj i intimnoj lokaciji na samom kraju manjeg naselja u okolici Poreča. Okućnica od 776 m pruža dovoljno prostora za privatnost i uživanje u prirodnom okruženju.

Kuća se prostire na dvije etaže prizemlje i kat te je dizajnirana s naglaskom na udobnost, funkcionalnost i suvremeni stil gradnje.

Prizemlje se sastoji od prostranog dnevnog boravka u open-space konceptu povezanog s modernom kuhinjom i blagovaonicom. Iz dnevnog dijela izlazi se na natkrivenu terasu s pogledom na bazen površine 33,6 m, idealan za opuštanje u toplim ljetnim mjesecima. U prizemlju se nalazi i jedna elegantna spavaća soba s vlastitom kupaonicom, gostinjski toalet te spremište.

Na gornjoj etaži smještene su dvije luksuzne spavaće sobe, svaka sa svojom en-suite kupaonicom i izlazom na natkrivenu terasu, što omogućava dodatni komfor i privatnost.

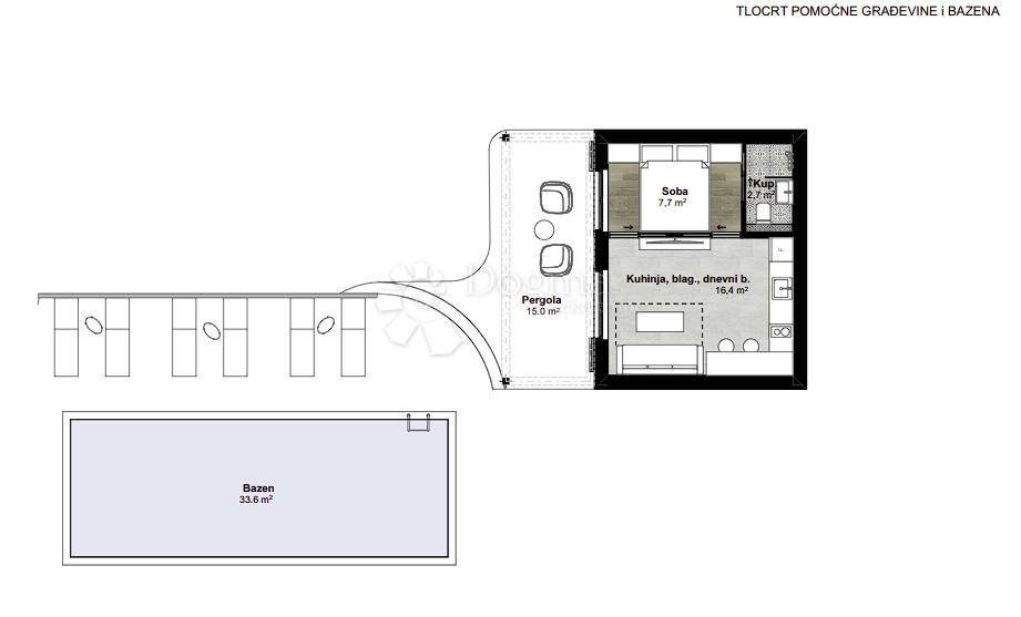
Na lijepo uređenoj okućnici nalazi se i dodatni objekt kvadrature 30m2 koji se po želji budućeg vlasnika može prenamijeniti u manji apartman, wellness zonu (sauna, jacuzzi) ili prostor za razonodu sve prema dogovoru s investitorom.

Grijanje je predviđeno putem podnog grijanja na struju ili dizalicu topline, ovisno o želji kupca, dok će za hlađenje biti instalirani klima uređaji u svim prostorijama.

Nekretnina također ima dva parkirna mjesta.

Ova nekretnina idealna je za obiteljski život, ali i kao investicija za turistički najam. Lokacija u blizini Poreča jamči mir, ali i blizinu svih važnih sadržaja i atrakcija koje nudi istarska obala.

Za više informacija i razgled nekretnine - Kontakt:

Karlo Šestan
Asistent u posredovanju
+385 91 361 1922
karlo.sestan@dogma-nekretnine.com

ID KOD AGENCIJE: IS1517474

Karlo Šestan
Asistent u posredovanju
Mob: 091/361-1922
Tel: 052 770 811
E-mail: karlo.sestan@dogma-nekretnine.com
www.dogma-istra.com
Ako želite znati više, možete razgovarati s Karlo Šestan.
Značajke
Vrsta
Obiteljska kuća
Ugovor
Prodaja
Kat
1
Dizalo
Da
Površina
160 m² | poslovni prostor 936 m²
Prostorije
5
Spavaće sobe
3
Kupaonice
3
Balkon
Da
Terasa
Da
Ostale karakteristike
  • Bazen
Detalji površine

Stambeni prostor

Kat
1
Površina
160,0 m²
Koeficijent
100%
Vrsta površine
Glavni
Komercijalna površina
160,0 m²

Zemljište

Kat
Prizemlje
Površina
776,0 m²
Koeficijent
100%
Vrsta površine
Dodatno
Komercijalna površina
776,0 m²
Informacije o cijeni
Cijena
€ 830.000
Cijena po m²
887 €/m²
Energetska učinkovitost
  • Godina izgradnje

    2026
  • Energetski certifikat

    Oslobođeno
Otkrijte svaki kutak nekretnine
+6
Dodatne mogućnosti

Obratite se oglašivaču

Ili