Obiteljska kuća 229 m², Luka, Poreč

€ 760.000
5
229 m²
3+

Bilješka

Oglas ažuriran 08. 04. 2026.
Opis

referenca: IS1516034

Vila na odličnoj lokaciji!

Na prodaju nudimo modernu vilu luksuznog dizajna, smještenu u mirnom okruženju sela, samo 10 minuta vožnje od mora i centra grada Poreč. Ova ekskluzivna nekretnina nudi savršeno optimiziran tlocrt i prodaje se po sistemu ključ u ruke, omogućujući vam da svoj novi dom prilagodite vlastitim željama i potrebama.

Lokacija i Okruženje
Vila se gradi na zemljištu od 914 m u mirnom okruženju idealnom za opuštanje i privatnost, a istovremeno pruža blizinu svih potrebnih sadržaja. Ova atraktivna lokacija omogućuje uživanje u tišini prirode uz istovremenu blizinu većih gradskih centara.

Dizajn i Raspored
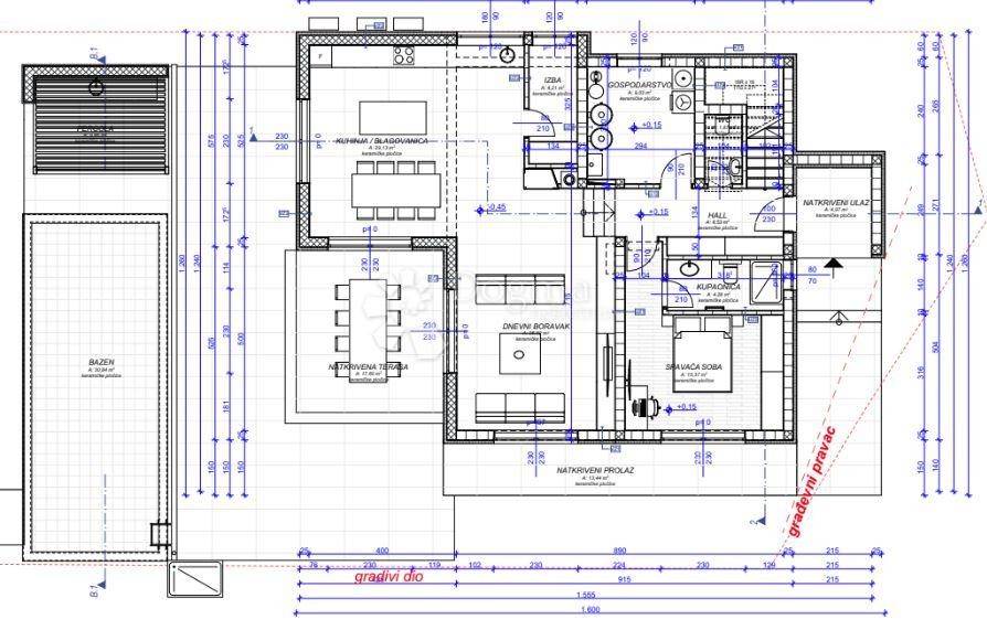
Nekretnina nudi 229,82 m stambene površine, raspoređene na dvije etaže prizemlje i kat:

Prizemlje:

Glavni ulaz smješten je na južnom pročelju, s natkrivenim prolazom koji vodi u:
Hodnik povezan sa spavaćom sobom i pratećom kupaonicom.
Gostinjski WC.
Otvoreni prostor s modernom kuhinjom, blagovaonicom i prostranim dnevnim boravkom.
Iz blagovaonice/dnevnog boravka moguć je izlaz na djelomično natkrivenu terasu, idealnu za opuštanje i druženje.

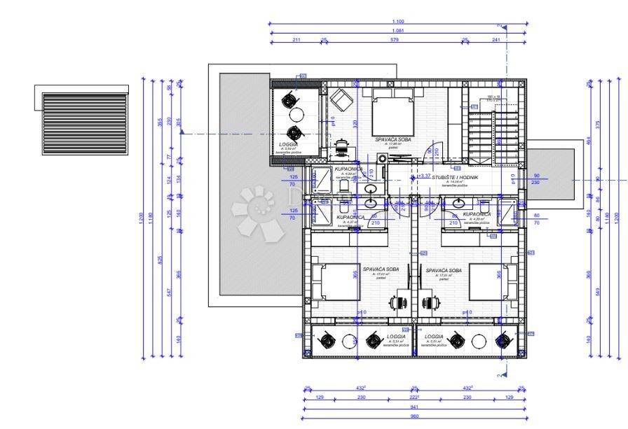
Prvi kat:
Tri spavaće sobe s vlastitim kupaonicama.
Svaka soba ima izlaz na balkon s prekrasnim pogledom na zeleni okoliš.

Vanjski Prostor
Unutar ograđenog dvorišta vila nudi:
Bazen od 30,84 m za potpuni užitak i opuštanje.
Ljetnu kuhinju od 9,86 m, idealnu za pripremu obroka na otvorenom.
Tri parkirna mjesta s automatskim ulaznim kapijama.
Vrt s automatskim navodnjavanjem, travnjakom i mediteranskim biljem.
Vanjska rasvjeta i video nadzor za dodatnu sigurnost i ugodnu atmosferu.

Tehničke Karakteristike
Krovna konstrukcija: Armiranobetonska ploča (18 cm) s toplinskom i hidroizolacijom.
Međukatne konstrukcije: Armiranobetonska ploča (18 cm).
Fasada: ETICS sustav s toplinskom izolacijom (8 cm) i završnim slojem.
Vanjska stolarija: PVC s električnim podizačima roleta i ugrađenim komarnicima.
Unutarnja vrata: Prirodni furnir s elegantnim lazurnim premazom.

Podne obloge:
Prizemlje: Keramika vrhunske kvalitete.
Spavaće sobe: Parket za dodatnu udobnost i toplinu.

Grijanje i hlađenje:
Dizalica topline zrak-voda za potrošnu toplu vodu i podno grijanje.
Split sustavi (dizalice topline zrak-zrak) za grijanje u prijelaznim razdobljima i hlađenje.
Dimnjak u dnevnom boravku omogućuje ugradnju kamina za ugodnu atmosferu tijekom zime.
Alarmni sustav i video nadzor za maksimalnu sigurnost.

Energetski Učinkovita Gradnja
Gradnja ove moderne vile koristi najnovije građevinske materijale i tehnologije za:
Bolju toplinsku izolaciju.
Učinkovite sustave grijanja i hlađenja.
Energetski učinkovite uređaje koji osiguravaju niže troškove održavanja.

Idealna Investicija
Ova luksuzna vila savršen je izbor za:
Obiteljski život u modernom i elegantnom okruženju.
Kuću za odmor na ekskluzivnoj lokaciji blizu mora.
Investiciju za turistički najam zbog izuzetne atraktivnosti lokacije.

Ne propustite priliku!
Za više informacija i dogovor za obilazak, kontaktirajte nas već danas!

LORENA KOGEJ
Agent s licencom
Mob 091/738-7200
Telefon 052/639-276
lorena.kogej@dogma-nekretnine.com

ID KOD AGENCIJE: IS1516034

Lorena Kogej
Agent s licencom
Mob: 091/738-7200
Tel: 052/639-276
E-mail: lorena.kogej@dogma-nekretnine.com
www.dogma-nekretnine.com
Ako želite znati više, možete razgovarati s Lorena Kogej.
Značajke
Vrsta
Obiteljska kuća
Ugovor
Prodaja
Kat
1
Površina
229 m² | poslovni prostor 1.143 m²
Prostorije
5
Spavaće sobe
4
Kupaonice
3+
Balkon
Ne
Terasa
Ne
Detalji površine

Stambeni prostor

Kat
1
Površina
229,0 m²
Koeficijent
100%
Vrsta površine
Glavni
Komercijalna površina
229,0 m²

Zemljište

Kat
Prizemlje
Površina
914,0 m²
Koeficijent
100%
Vrsta površine
Dodatno
Komercijalna površina
914,0 m²
Informacije o cijeni
Cijena
€ 760.000
Cijena po m²
665 €/m²
Energetska učinkovitost
  • Godina izgradnje

    2024
  • Energetski certifikat

    Oslobođeno
Otkrijte svaki kutak nekretnine
+23
Dodatne mogućnosti

Obratite se oglašivaču

Ili