Trosobni stan novo, prizemlje, Povljana

€ 235.000
3
72 m²
PR
Terasa

Bilješka

Oglas ažuriran 08. 04. 2026.
Opis

referenca: DA100064074

Povljana, Pag - S2 u novogradnji s dvorištem

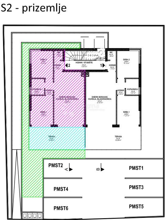
Na prodaju je moderno dizajniran prizemni stan u zgradi s ukupno 6 stanova, vrhunske kvalitete gradnje. Sastoji se od hodnika, WC-a, dvije spavaće sobe (jedna s izlazom na veliku terasu), kupaonice i prostranog dnevnog boravka s kuhinjom i blagovaonicom, koji također ima izlaz na terasu od 22 m kroz kliznu staklenu stijenu. Stanu pripada i 40 m okućnice te jedno parkirno mjesto.

Visokokvalitetna PVC stolarija s troslojnim low-E staklima opremljena je električnim aluminijskim roletama i komarnicima. Ulazna vrata su protuprovalna i protupožarna. Sve sobe i boravak imaju inverter multi-split klima uređaje Gree s Wi-Fi upravljanjem. Podovi su od visokokvalitetne keramike modernih boja, jednostavni za održavanje. Kupaonica ima električno podno grijanje, kupaonski radijator i Geberit sanitarnu opremu.

Građevina je stambena, samostojeća, s ulazom sa sjevernog pročelja. Smještena je u mirnoj ulici novog naselja, 350 m od mora. Svi stanovi i terase orijentirani su prema jugu i moru. Vanjski zidovi imaju 10 cm izolacije mineralnom vunom, završeni Demit fasadom. Balkonske ograde kombiniraju puni i stakleni dio. Osigurana je toplinska, hidro i zvučna izolacija, uključujući međukatnu od 4 cm elastificiranog polistirena. Prostorije imaju dnevno svjetlo i ventilaciju. Unutarnja vrata su drvena, s dovratnicima širine zida. Svako parkirno mjesto ima priključak za punjenje električnih vozila. Zgrada je projektirana za energetski razred A+. Planirani rok izgradnje je ljeto 2025.

Prikazane slike 3D služe samo kao ideja i za vizualizaciju unutarnjeg i vanjskog uređenja. Stanovi se prodaju nenamješteni.

Povljana je malo, ali urbano naselje na otoku Pagu. Krase je kilometri plaža i šljunčanih i pješčanih. Naselje nudi sve što je potrebno za život ili odmor: trgovine, kafiće, restorane, ljekarnu, ambulantu, javni prijevoz, igrališta i još mnogo toga. A ako vam Povljana nije dovoljna, otok Pag nudi pregršt sadržaja. S više od 300 kilometara obale (više nego cijela država Izrael), otok čeka da ga istražite dok gradovi Novalja i Pag nude urbane i povijesne atrakcije. Na svakom koraku možete uživati u gurmanskim specijalitetima, od svjetski priznatog Paškog sira do poznate Paške janjetine. Bez obzira na to gdje zalutate na ovom predivnom otoku, sigurno nećete pogriješiti.

Obratite nam se s povjerenjem,

Vlatko Šaran
+385 98 429 832

ID KOD AGENCIJE: DA100064074

Vlatko Šaran
Agent s licencom
Mob: 098/429-832
Tel: 023/551-400
E-mail: vlatko.saran@dogma-nekretnine.com
www.dogma-nekretnine.com
Ako želite znati više, možete razgovarati s Vlatko Šaran .
Značajke
Vrsta
Stan
Ugovor
Prodaja
Kat
Prizemlje
Površina
72 m²
Prostorije
3
Spavaće sobe
2
Balkon
Ne
Terasa
Da
Informacije o cijeni
Cijena
€ 235.000
Cijena po m²
3.264 €/m²
Energetska učinkovitost
  • Godina izgradnje

    2025
  • Stanje

    Novo / U izgradnji
  • Energetski certifikat

    Oslobođeno
Otkrijte svaki kutak nekretnine
+22
Dodatne mogućnosti

Obratite se oglašivaču

Ili