Dvosobni stan novo, drugi kat, Povljana

€ 495.000
2
93 m²
1
2
Da
Balkon
Terasa

Bilješka

Oglas ažuriran 19. 11. 2025.
Opis

referenca: DA100062319

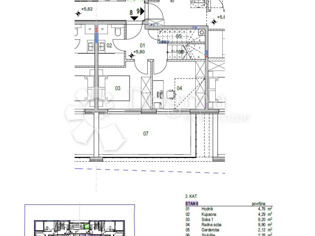
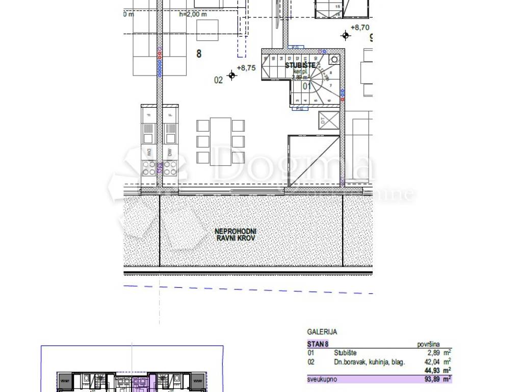
Povljana, Pag - Dvoetažni stan S8 smješten odmah uz more

Povljana, Pag - Dvoetažni stan S8 smješten odmah uz more

Na prodaju je dvoetažni stan s ukupnom površinom od 93.89m2, smješten na vrhunskoj lokaciji. Ovaj prostrani stan nudi praktičan raspored prostorija na dvije etaže. Prva etaža ovog stana sastoji se od spavaće sobe, kupaonice, radne sobe i praktične garderobe. Posebno je istaknuta terasa površine 16.34m2 koja pruža prostor za opuštanje i uživanje na otvorenom, sa pogledom na more i na okolicu. Druga etaža obuhvaća svijetli dnevni boravak, blagovaonicu i kuhinju. Ova etaža, smještena na vrhu zgrade s prozorima okrenutim na sjeverozapad i na jugoistok pruža ugodan prostor za druženje s obitelji i prijateljima, kao i za svakodnevne aktivnosti.

Stan dolazi s dodatnim pogodnostima uključujući garažno parkirno mjesto i spremišni prostor, što pruža dodatnu praktičnost i sigurnost. Također, budući stanari će uživati u udobnosti klima jedinica i podnog grijanja koje će biti dostupno u cijelom stanu. Aluminijski dvoslojni prozori osiguravaju optimalnu izolaciju od vanjskih utjecaja, dok će 10 cm izolacije od mineralne vune dodatno povećati energetsku učinkovitost stanovanja.

Obratite nam se s povjerenjem

ID KOD AGENCIJE: DA100062319

Andrea Milak
Agent s licencom
Mob: 098/809-094
Tel: 023/551-400
E-mail: andrea.culi@dogma-nekretnine.com
www.dogma-nekretnine.com
Ako želite znati više, možete razgovarati s Andrea Milak .
Značajke
Vrsta
Stan
Ugovor
Prodaja
Kat
2 kat
Dizalo
Da
Površina
93 m²
Prostorije
2
Spavaće sobe
1
Kupaonice
1
Balkon
Da
Terasa
Da
Garažno mjesto, parkirna mjesta
1 u garaži
Informacije o cijeni
Cijena
€ 495.000
Cijena po m²
5.323 €/m²
Energetska učinkovitost
  • Godina izgradnje

    2024
  • Stanje

    Novo / U izgradnji
  • Energetski certifikat

    Oslobođeno
Otkrijte svaki kutak nekretnine
+7
Dodatne mogućnosti

Obratite se oglašivaču

Ili