Trosobni stan novo, prvi kat, Tar-Vabriga

€ 210.272
3
65 m²
2
1
Ne

Bilješka

Oglas ažuriran 23. 12. 2025.
Opis

referenca: 1809

S171

Poreč okolica, ca. 2km od mora novi stanovi u izgradnji
U mjestu sa svim potrebnim sadržajem supermarketi,ljekarna,škola vrtić i sve ostalo .
Zgrada ima 11 stanova
2 u prizemlju i po 3 stana na 1.,2. i 3. katu U cijelom stanu je previđeno podno grijanje, te 1. faze za klima uređaje, PVC stolarija i sanitarije, / tuš u kupaonicama .
Svakom stanu pripadaju 2 parkirna mjesta !
Predvidjen rok zavrsetka je 1.7.25.

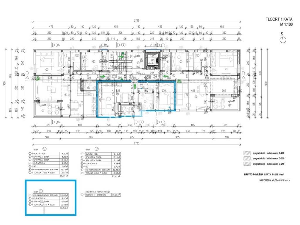
Stan C , površine 65,71m2 sastoji se od : hodnika, 2 spavaće sobe , kupaonica , toalet za goste , kuhinja i blagovaonica sa dnevnim boravkom i izlaz na terasu .
Značajke
Vrsta
Stan
Ugovor
Prodaja
Kat
1 kat
Dizalo
Ne
Površina
65 m²
Prostorije
3
Spavaće sobe
2
Kupaonice
2
Namješteno
Ne
Garažno mjesto, parkirna mjesta
1 na zajedničkom parkingu
Grijanje
Samostalno
Klimatizacija
Hlađenje/grijanje
Informacije o cijeni
Cijena
€ 210.272
Cijena po m²
3.235 €/m²
Energetska učinkovitost
  • Godina izgradnje

    2024
  • Stanje

    Novo / U izgradnji
  • Grijanje

    Samostalno
  • Klima uređaj

    Hlađenje/grijanje
Otkrijte svaki kutak nekretnine
+5
Dodatne mogućnosti

Obratite se oglašivaču

Ili