Trosobni stan Povljana, Povljana

€ 459.000
3
122 m²
2
Balkon

Bilješka

Oglas ažuriran 03. 03. 2026.
Opis

referenca: EUROVILLA-305345

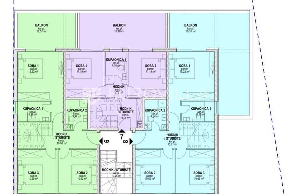
Pag, Povljana, dvoetažni trosoban stan 180 m od mora, S8

Predstavljamo Vam projekt vrhunske novogradnje u Povljani na otoku Pagu na top lokaciji! Projekt se sastoji od zgrade s 8 jedinica stambene namjene raspoređenih na ukupno 3 etaže. Zgrada je udaljena svega 180 m od mora i popularnih pješčanih plaža ovog mjesta. Također, u neposrednoj blizini se nalazi i centar Povljane kao i svi ostali sadržaji potrebni za kvalitetan i ispunjen život ili odmor.S8- 121,67m2 - 2. katStan S8 nalazi se na 2. katu zgrade te je raspoređen na 2 etaže. Ukupne je neto korisne površine 121,67m2 dok njegova bruto površina iznosi 136,32m2. Prva etaža se sastoji od hodnika i stubišta (10,91m2), dvije potpuno opremljene kupaonice (4,16m2 i 3,94m2), tri spavaće sobe (15,22m2, 10,66m2 i 10,52m2) te prostranog natkrivenog balkona s kojeg se pruža zaista nestvaran pogled na more (30,31m2). Na dugoj etaži se nalaze kuhinja i blagovaonica (25,01m2), dnevni boravak (21,02m2) i stubište (4,54m2). Stanu uz to pripada i jedno vanjsko parkirno mjesto.Zgrada se trenutačno nalazi u fazi završnih radove te se useljenje očekuje početkom 2026. godine.Od opreme i materijala valja istaknuti :Konstrukcija od armiranog betona s 10 cm termoizolacijeKvalitetna ALU i PVC stolarija s komarnicima i roletama na električno upravljanjeVisoka kvaliteta keramike i sanitarijaProtuprovalna i protupožarna vrataKlima uređaji u svim sobama i dnevnom boravkuStaklene ograde na balkonimaDvorište ograđeno kamenim zidovimai još mnogo toga..Povljana je šarmantno dalmatinsko mjesto na otoku Pagu, poznato po dugim pješčanim plažama i kristalno čistom moru. Idealan je izbor za nekretnine za odmor ili turistički najam — autentičan dalmatinski ugođaj, prostrane terase i blizina lokalnih restorana. Dobra prometna povezanost cestom te blizina važnijih otočnih i kopnenih odredišta čine Povljanu privlačnom investicijskom lokacijom na Pagu.Za više informacija i dogovor o razgledavanju, slobodno nam se obratite... Više na eurovilla.hr, ID: 305345
Ako želite znati više, možete razgovarati s Filip Luštica .
Značajke
Vrsta
Stan
Ugovor
Prodaja
Kat
2
Površina
122 m²
Prostorije
3
Spavaće sobe
3
Balkon
Da
Detalji površine

Stambeni prostor

Kat
2
Površina
122,0 m²
Koeficijent
100%
Vrsta površine
Glavni
Komercijalna površina
122,0 m²
Informacije o cijeni
Cijena
€ 459.000
Cijena po m²
3.762 €/m²
Energetska učinkovitost
  • Stanje

    Novo / U izgradnji
  • Energetski certifikat

    Oslobođeno
Tlocrt
Otkrijte svaki kutak nekretnine
+22
Dodatne mogućnosti

Obratite se oglašivaču

Ili