Obiteljska kuća Radovanje, Oriovac, Oriovac

€ 60.000
4
85 m²
1
Ne

Bilješka

Oglas ažuriran 22. 01. 2026.
Opis

referenca: 1178

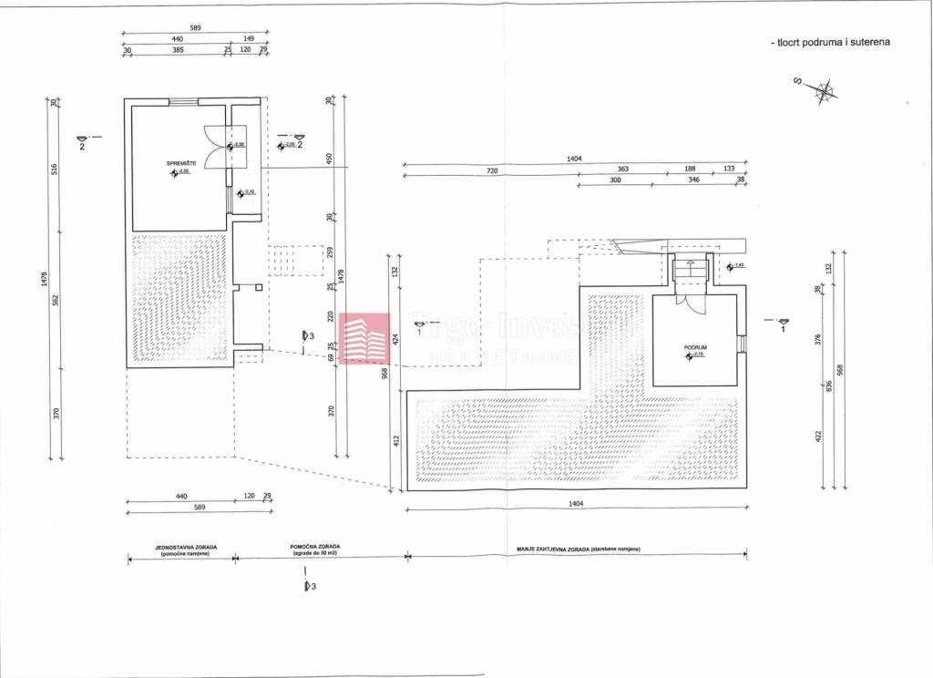
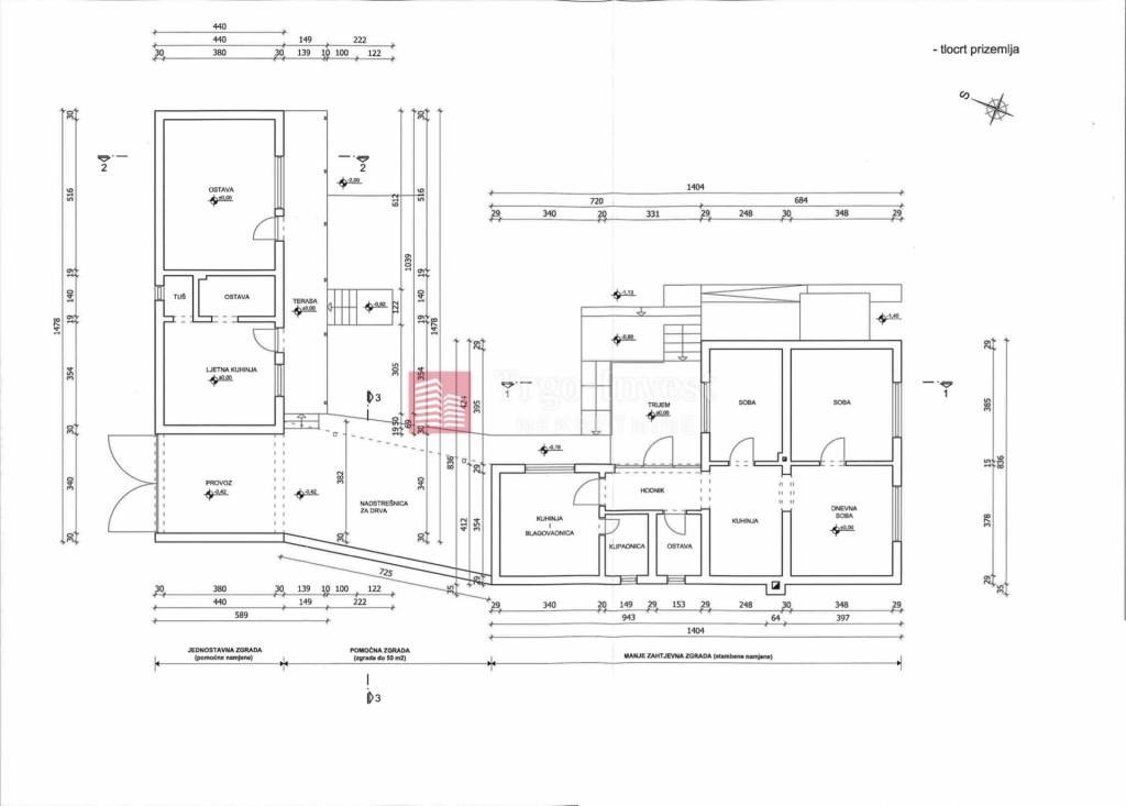
RADOVANJE prizemnica 85 m² na velikoj okućnici 2543 m²

RADOVANJE, Slavonski Brod - Kuća prizemnica površine 85 m² s podrumom, uz dodatni dvorišni objekt od 30 m² s podrumom, smještena na prostranoj okućnici ukupne površine 2.543 m².

Glavna kuća (do ulice) sastoji se od ulaznog hodnika, ostave, tri sobe, kuhinje s blagovaonicom i kupaonice. Ispod dijela kuće nalazi se podrum.
Dvorišna kuća uključuje jednu prostoriju (sobu), prostor predviđen za kuhinju/blagovaonicu i kupaonicu te ostavu.

Grijanje je klasično (peć na drva), ugrađen je klima uređaj, djelomično PVC stolarija, septička jama, priključci struje i vode.

U cijenu je uključen i voćnjak u blizini (u brdu), površine 1.791 m².

UPORABNA DOZVOLA!

Za više informacija i dogovor oko razgledavanja, obratite nam se s povjerenjem.

ID CODE: 1178

Edi Bračun
Agent s licencom
Mob: +385 95 8939 386
Tel: 035 448 862
E-mail: edi@trgo-invest-nekretnine.hr
www.trgo-invest-nekretnine.hr
Značajke
Vrsta
Obiteljska kuća
Ugovor
Prodaja
Dizalo
Ne
Površina
85 m²
Prostorije
4
Spavaće sobe
2
Kupaonice
1
Balkon
Ne
Terasa
Ne
Garažno mjesto, parkirna mjesta
1 u garaži, 3 na zajedničkom parkingu
Grijanje
Samostalno, štednjak
Klimatizacija
Samostalno, hlađenje/grijanje
Informacije o cijeni
Cijena
€ 60.000
Cijena po m²
706 €/m²
Energetska učinkovitost
  • Grijanje

    Samostalno, štednjak
  • Klima uređaj

    Samostalno, hlađenje/grijanje
  • Energetski certifikat

    Neklasificirano
Tlocrt
Otkrijte svaki kutak nekretnine
+13
Dodatne mogućnosti

Obratite se oglašivaču

Ili