Višeobiteljska kuća Kurilovec, Velika Gorica, Velika Gorica

€ 470.000
5+
156 m²
3
Ne
Terasa

Bilješka

Oglas ažuriran 22. 01. 2026.
Opis

referenca: 1896

Velika Gorica – dvojna kuća

U ponudi Mediator nekretnina pronađite dvojnu kuću u Velikoj Gorici!

Na mirnoj lokaciji u naselju Kurilovec smještena je moderna dvojna kuća koja predstavlja idealan izbor za obiteljski život. U neposrednoj blizini nalaze se svi sadržaji potrebni za ugodan svakodnevni život poput vrtića, škole, trgovine, javnog prijevoza i ostalih usluga.

Sastoji se od prizemlja i kata s pažljivo osmišljenim rasporedom prostorija koji pruža komfor, funkcionalnost i praktičnost.

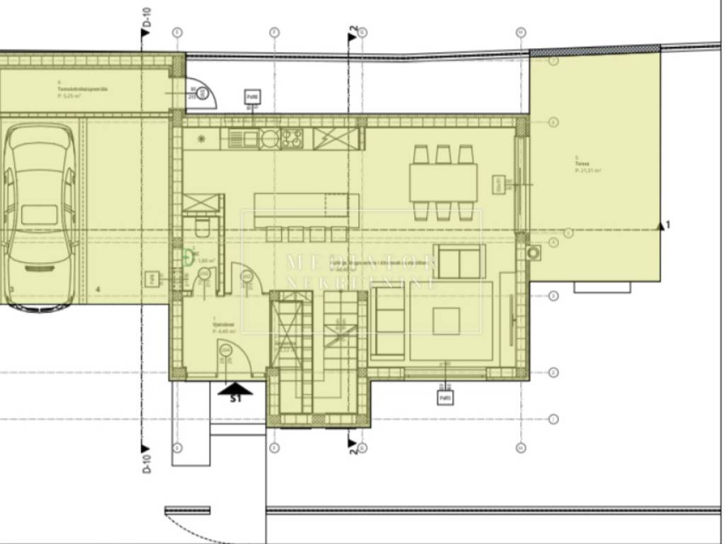
PRIZEMLJE:

Vjetrobran – 4,49 m²
Garderoba – 2,22 m²
Kupaonica – 1,89 m²
Kuhinja s blagovaonicom i dnevnim boravkom – 48,40 m²
Terasa – 21,31 m²
Spremište – 5,25 m²

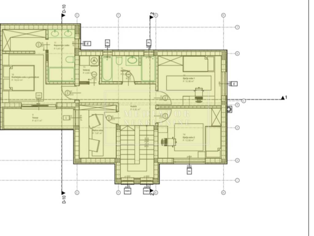
KAT:

Hodnik – 8,92 m²
Radna soba – 7,67 m²
Terasa – 4,77 m²
Master spavaća soba – 14,22 m²
Kupaonica master sobe – 5,41 m²
Kupaonica – 5,33 m²
Dječja soba 1 – 12,38 m²
Dječja soba 2 – 12,38 m²
Vešeraj – 2,03 m²

Ukupno - 156,67 m²

Uz kuću dolaze dva natkrivena parkirna mjesta te pripadajući dio okućnice, što dodatno povećava kvalitetu stanovanja. Planirani početak gradnje je prosinac 2025. godine, što vam omogućuje pravovremeno planiranje i uključivanje u proces od samog starta.

Mediator nekretnine - ključ Vašeg doma!

ID CODE: 1896

Marko Dolibašić
Agent s licencom
Mob: +385 99 5747 672
Tel: +385 51 582 317
E-mail: marko.dolibasic@mediator-nekretnine.hr
www.mediator-nekretnine.hr
Značajke
Vrsta
Višeobiteljska kuća
Ugovor
Prodaja
Dizalo
Ne
Površina
156 m²
Prostorije
5+
Spavaće sobe
3
Kupaonice
3
Balkon
Ne
Terasa
Da
Garažno mjesto, parkirna mjesta
2 na zajedničkom parkingu
Klimatizacija
Samostalno, hlađenje/grijanje
Informacije o cijeni
Cijena
€ 470.000
Cijena po m²
3.013 €/m²
Energetska učinkovitost
  • Klima uređaj

    Samostalno, hlađenje/grijanje
  • Energetski certifikat

    Neklasificirano
Otkrijte svaki kutak nekretnine
+8
Dodatne mogućnosti

Obratite se oglašivaču

Ili