Dvosobni stan Mandre, Kolan, Kolan

€ 274.000
2
63 m²
1
M
Ne

Bilješka

Oglas ažuriran 22. 01. 2026.
Opis

referenca: 4306

Apartman B-S1: Mandre, 63 m2, novogradnja

Na prodaju: Dvoetažni stan B-S1 – 63,3 m² + dvorište – novogradnja, Mandre, otok Pag

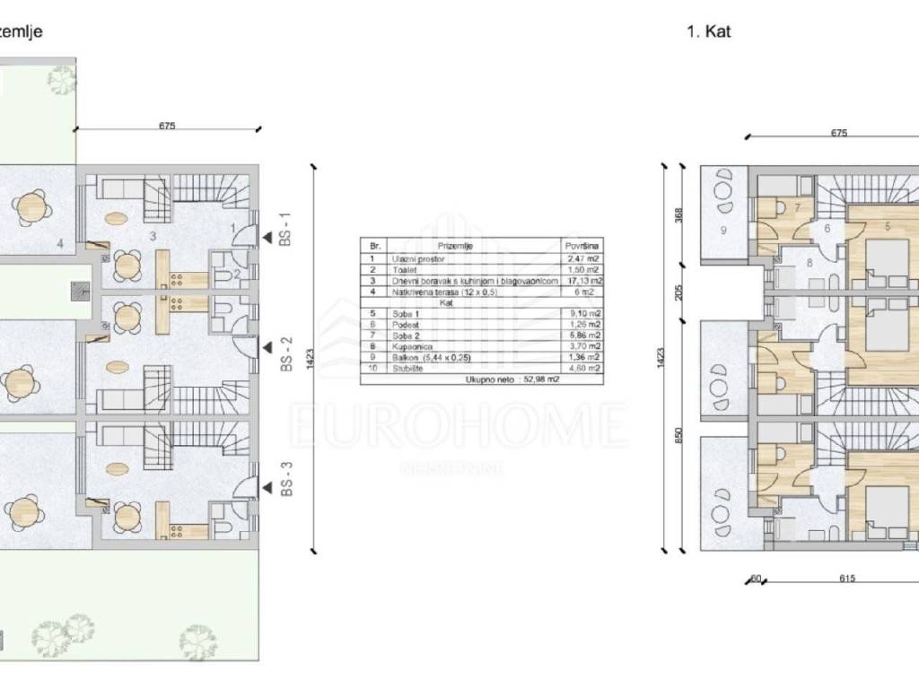
Prodaje se dvoetažni dvosobni stan netto površine 63,3 m², smješten u kvalitetnoj novogradnji u Mandrama na otoku Pagu. Stan se nalazi u urbanoj vili sa svega tri stambene jedinice, svaka s vlastitim zasebnim ulazom, čime je osigurana dodatna privatnost.

Stan se sastoji od prizemlja i kata, s pripadajućim dvorištem, natkrivenom terasom u prizemlju i balkonom na katu. U cijenu su uključena dva privatna parkirna mjesta te vlastiti biopročistač.

Zgrada je moderno projektirana u mediteranskom stilu, s fasadom djelomično obloženom kamenom. Nalazi se na mirnoj i atraktivnoj lokaciji, 200 metara od plaže te u neposrednoj blizini trgovine, kafića i restorana. Stan ima orijentaciju sjeverozapad – jugoistok, što osigurava optimalno prirodno osvjetljenje tijekom dana.

Stan je opremljen podnim grijanjem u cijelom prostoru, klima uređajima u sobama, video portafonom, kvalitetnom PVC stolarijom s troslojnim izostakljenjem, ulaznim protuprovalnim vratima. U dvorištu se nalazi izvod za tuš s toplom vodom te vanjska vrtna rasvjeta.

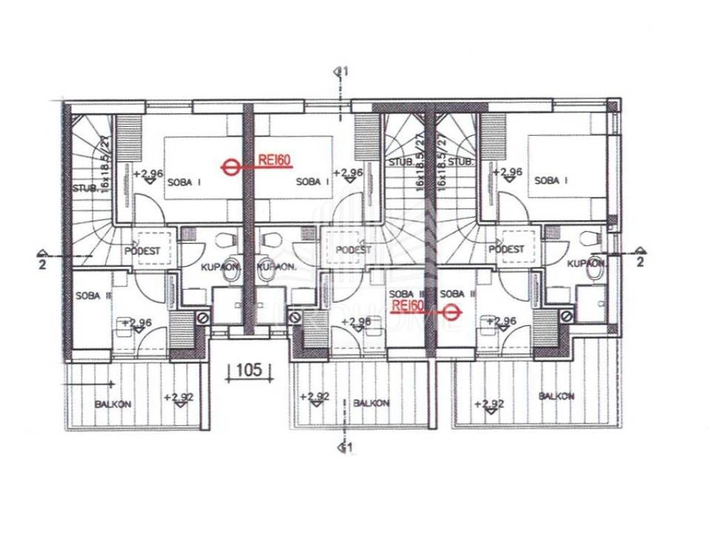
Tlocrtno, stan se sastoji od dvije spavaće sobe, dnevnog boravka, kuhinje s blagovaonicom, kupaonice s WC-om, dodatnog zasebnog WC-a, natkrivene terase u prizemlju i balkona na katu.

Planirani završetak radova predviđen je za svibanj ili lipanj 2025. godine.

Cijena stana iznosi 274.000 eura. Dokumentacija uredna, mogućnost kupnje putem kredita. Za više informacija ili dogovor oko razgledavanja, slobodno se obratite.

Planirani završetak objekta 2026.

Za više informacija i dogovor oko razgledavanja, slobodno nas kontaktirajte.

091/986-9699
Maja Tieško
Savjetnik u prodaji nekretnina

Agencijska naknada: 2% + PDV

ID CODE: 4306

Maja Tieško
Savjetnik u prodaji
Mob: 091 9869 699
Tel: 01 6231 365
E-mail: maja@eurohome-nekretnine.hr
www.eurohome-nekretnine.hr
Značajke
Vrsta
Stan
Ugovor
Prodaja
Kat
Visoko prizemlje
Katovi zgrade
2
Dizalo
Ne
Površina
63 m²
Prostorije
2
Spavaće sobe
2
Kupaonice
1
Balkon
Ne
Terasa
Ne
Garažno mjesto, parkirna mjesta
2 na zajedničkom parkingu
Grijanje
Samostalno, zrak
Klimatizacija
Samostalno, hlađenje/grijanje
Ostale karakteristike
  • Alarmni sustav
Informacije o cijeni
Cijena
€ 274.000
Cijena po m²
4.349 €/m²
Energetska učinkovitost

Potrošnja energije

A+

Otkrijte svaki kutak nekretnine
+15
Dodatne mogućnosti

Obratite se oglašivaču

Ili