Četverosobni stan Gornja Dubrava, Dubrava – Klaka - Miroševac, Zagreb

€ 428.450
4
107 m²
2
Ne
Terasa

Bilješka

Oglas ažuriran 22. 01. 2026.
Opis

referenca: 2843

Gornja Dubrava, Dubrava, četverosoban stan, 2. kat s terasom, 108 m2, PM

Prodaje se četverosoban stan s terasom na 2. katu zgrade u izgradnji u Dubravi.

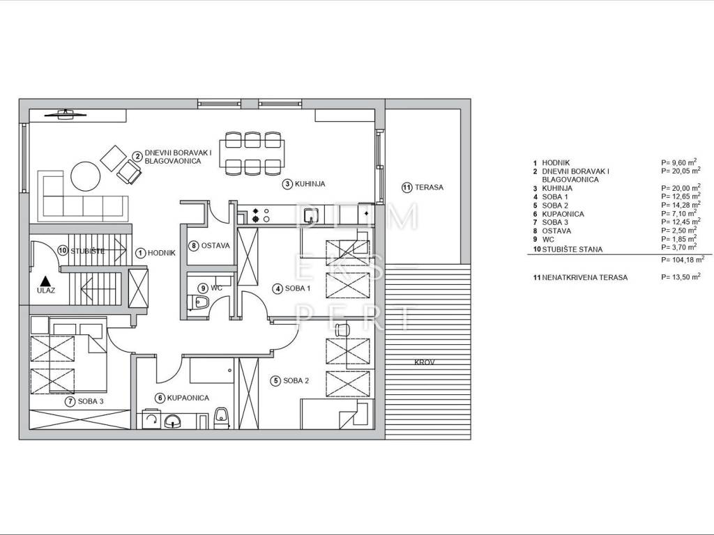
POVRŠINA STANA:
- 104,18 m² (podna, unutarnja površina)
- ukupna površina stana iznosi 107,5 m² s terasom površine 13.5 m² obračunato prema pripadajućim koeficijentima (3.37 m²).

STAN SE SASTOJI OD:
- hodnika (9,6 m²)
- dnevnog boravka s blagovaonicom (20 m²)
- kuhinje (20 m²)
- tri spavaće sobe (12,65, 14,28, 12,45 m²)
- kupaonice (7,1 m²)
- wc (1,85 m²)
- ostava (2,5 m²)
- nenatkrivene terase (13,5 m²)

Zgrada se sastoji od prizemlja i 2 kata s ukupno 5 stanova.
U cijenu je uključeno i jedno vanjsko parkirno mjesto od 12,5 m².

OPREMA:
- PVC stolarija s IZO troslojnim staklom
- armirano betonska konstrukcija zgrade
- fasada debljine 15 cm
- keramičke pločice 1. klase
- kvalitetan troslojni hrastov parket
- kupaonica opremljena sanitarnim uređajima
- podno grijanje dizalicom topline
- klima uređaj u dnevnom boravku
- protuprovalna vrata
- video portafon

Lokacija: U mirnoj ulici, okružena obiteljskim kućama, 300 metara od tramvaja, sa svim sadržajima u blizini, prva trgovina je udaljena 350 metara (Lidl). Do parka Maksimir su dvije stanice tramvaja.

KONTAKT:
Mirna Poljak
Tel: 091 5444 915
E-mail: mirna.poljak@domekspert.hr

ID CODE: 2843
Značajke
Vrsta
Stan
Ugovor
Prodaja
Kat
2 kat
Katovi zgrade
2
Dizalo
Ne
Površina
107 m²
Prostorije
4
Spavaće sobe
1
Balkon
Ne
Terasa
Da
Garažno mjesto, parkirna mjesta
1 na zajedničkom parkingu
Grijanje
Samostalno, zrak
Klimatizacija
Samostalno, hlađenje/grijanje
Ostale karakteristike
  • Protuprovalna vrata
  • Video portafon
Informacije o cijeni
Cijena
€ 428.450
Cijena po m²
4.004 €/m²
Energetska učinkovitost
  • Grijanje

    Samostalno, zrak
  • Klima uređaj

    Samostalno, hlađenje/grijanje
  • Energetski certifikat

    Neklasificirano
Dodatne mogućnosti

Obratite se oglašivaču

Ili