Trosobni stan Gaišće, Sesvete, Staro Brestje, Zagreb

€ 244.704
3
76 m²
1
1
Da

Bilješka

Oglas ažuriran 24. 03. 2026.
Opis

referenca: 3034

Gaišće, SESVETE, GAJIŠĆE, 1. KAT 76 m2, 3.S, LOĐA

Prodaje se trosoban stan na 1. katu zgrade s liftom u mirnom i dobro povezanom dijelu Sesveta, Gajišće.

Zgrada se sastoji od prizemlja i tri kata. Površine stanova su od 68 m² - 127 m².
Odličnog su i funkcionalnog rasporeda, puni svjetla, s lođama ili balkonima za uživanje na otvorenom.

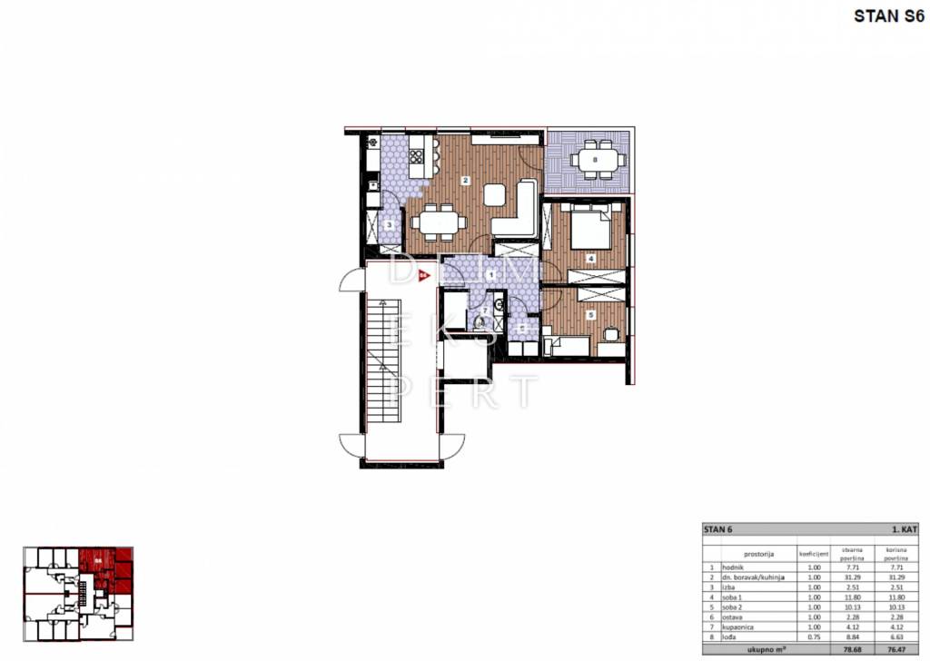
POVRŠINA STANA:
-69.84 m² (podna, grijana površina)
- ukupna površina stana iznosi 76.47 m² s lođom površine 8.84 m² obračunato prema pripadajućim koeficijentima (6.63 m²)

STAN SE SASTOJI OD:
- hodnika (7.71 m²)
- kupaonice (4.12 m²)
- dnevnog boravka s blagovaonicom i kuhinjom (31.29 m²)
- spavaće sobe (11.80 m²)
- spavaće sobe (10.13 m²)
- ostava (2.28 m²)
- izba (2.51 m²)

Orijentiran je na sjevernu i zapadnu stranu svijeta.

OPREMA:
- troslojna PVC stolarija s IZO staklom te rolete na električno podizanje/spuštanje.
- armirano betonska konstrukcija zgrade
- fasada debljine 15 cm
- keramičke pločice 1. klase
- kvalitetan hrastov parket debljine 12 mm
- kupaonica opremljena sanitarnim uređajima (osim umivaonika)
- centralno etažno plinsko grijanje (radijatori)
- klima uređaj u dnevnom boravku
- protuprovalna vrata
- video portafon

Uz stan je moguće kupiti i parkirno mjesto, a u ponudi su garažna parkirna mjesta smještena u suterenu zgrade.

Krov je izveden kao ravna ab ploča, preko koje je izveden neprohodan lagani krov blagog nagiba.

Lokacija: Projekt je smješten 700m od centra grada Sesveta, u mirnom okruženju, tik uz šumu. Kvart je planski osmišljen stoga je sve potrebno nadohvat ruke, što se naročito odnosi na osnovnu i srednju školu, trgovačke centre (Kaufland, Konzum…), Hrvatsku poštu, Dom zdravlja, banke, ljekarne.

KONTAKT:
Mirna Poljak
Tel: 01 2013 007
Tel: 091 5444 915
E-mail: mirna.poljak@domekspert.hr

KONTAKT:
Snježana Čabraja
Tel: 01 2013 007
Mob: +385 99 360 1634
E-mail: snjezana.cabraja@domekspert.hr

ID CODE: 3034
Značajke
Vrsta
Stan
Ugovor
Prodaja
Kat
1 kat
Katovi zgrade
3
Dizalo
Da
Površina
76 m²
Prostorije
3
Spavaće sobe
3
Kupaonice
1
Balkon
Ne
Terasa
Ne
Grijanje
Centralno, podno grijanje
Klimatizacija
Samostalno, hlađenje/grijanje
Ostale karakteristike
  • Protuprovalna vrata
Informacije o cijeni
Cijena
€ 244.704
Cijena po m²
3.220 €/m²
Energetska učinkovitost

Potrošnja energije

A

Tlocrt
Otkrijte svaki kutak nekretnine
+8
Dodatne mogućnosti

Obratite se oglašivaču

Ili