Trosobni stan Mandre, Kolan, Kolan

€ 274.000
3
63 m²
PR
Da
Balkon

Bilješka

Oglas ažuriran 22. 01. 2026.
Opis

referenca: 587

PAG - MANDRE Dvoetažni dvosobni stan - 63m2

MANDRE, OTOK PAG – Dvoetažni stan s dvorištem i 2 parkirna mjesta, 200 m od plaže!

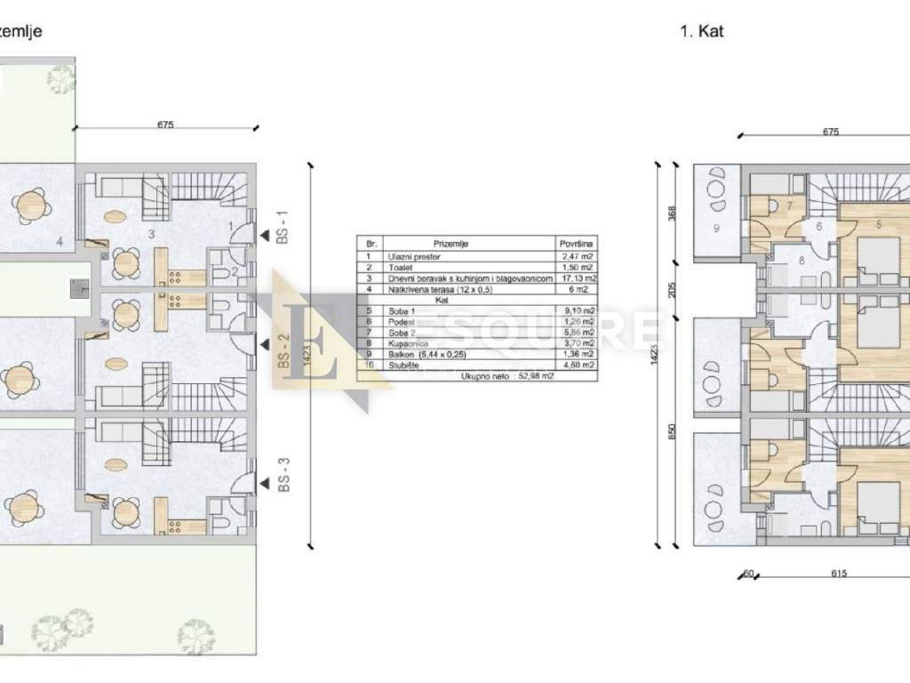
Na prodaju je moderan dvoetažni stan površine 63,3 m², smješten u kvalitetnoj novogradnji u Mandrama na otoku Pagu.

Stan se proteže kroz prizemlje i kat te ima zaseban ulaz, što pruža dodatnu privatnost. Pripadaju mu i natkrivena terasa, balkon, uređeno dvorište te dva privatna parkirna mjesta. Zgrada sadrži samo tri stambene jedinice, a stan ima vlastiti biopročistač.

Udaljenost do plaže iznosi svega 200 metara, a u neposrednoj blizini nalaze se trgovine, kafići i restorani.

Tlocrtno, stan obuhvaća:

2 spavaće sobe
dnevni boravak
kuhinju s blagovaonicom
kupaonicu s WC-om
dodatni zasebni WC
natkrivenu terasu u dvorištu
balkon

Tehnička oprema i kvaliteta gradnje:

vanjska stolarija s troslojnim izo-staklima
podno grijanje u cijelom stanu
klima uređaji u sobama
video portafon
vrtna rasvjeta
vanjski priključak za toplu vodu (tuš u dvorištu)
donji dio fasade obložen mediteranskim kamenom

Zgrada je projektirana u mediteranskom stilu, s pažnjom na detalje i kvalitetu izgradnje.
Orijentacija stana pruža optimalno prirodno osvjetljenje – sjeverozapad – jugoistok.

Idealna prilika za odmor, turističko iznajmljivanje ili miran život na otoku!

Zainteresirane kupce molimo da nas kontaktiraju putem:

Telefon: +385 99 755 3336
Email: anja@esquire.hr

ID CODE: 587

Anja Glavočević
Agent s licencom
Mob: +385 99 755 3336
E-mail: anja@esquire.hr
www.esquire.hr
Značajke
Vrsta
Stan
Ugovor
Prodaja
Kat
Prizemlje
Katovi zgrade
1
Dizalo
Da
Površina
63 m²
Prostorije
3
Spavaće sobe
2
Balkon
Da
Terasa
Ne
Garažno mjesto, parkirna mjesta
2 na zajedničkom parkingu
Grijanje
Samostalno, zrak
Klimatizacija
Samostalno, hlađenje/grijanje
Informacije o cijeni
Cijena
€ 274.000
Cijena po m²
4.349 €/m²
Energetska učinkovitost

Potrošnja energije

A+

Otkrijte svaki kutak nekretnine
+18
Dodatne mogućnosti

Obratite se oglašivaču

Ili