Obiteljska kuća Starigrad, Starigrad

€ 640.000
5
251 m²
2
Ne
Terasa

Bilješka

Oglas ažuriran 22. 01. 2026.
Opis

referenca: 932

STARIGRAD - Četverosobna luksuzna vila s bazenom - 251m2

STARIGRAD - Luksuzna vila s bazenom sa četiri spavaće sobe - 251m2

Na prodaju su dvije luksuzne, moderne vile s bazenom - svaka na parceli od 485m2

Vila se proteže na tri etaže – podrum, prizemlje i kat:

- podrum: garaža, praonica, strojarnica i stubište koje vodi u prizemlje.

- prizemlje: ulazni hodnik, spavaća soba s vlastitim kupatilom i garderobom, blagovaonica, moderna kuhinja s ostavom, prostrani dnevni boravak, gostinjski WC te dvije natkrivene terase s pogledom na grijani bazen.

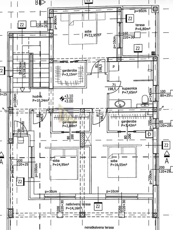
- kat: tri spavaće sobe, svaka s vlastitom garderobom, kupaonicom, hodnik te kombinacija natkrivene i nenatkrivene terase.

Tehničke značajke objekta:

- vrata i prozori - SCHÜCO aluminijska stolarija u antracit boji s električnim roletama
- podno grijanje na struju, kamin i klima uređaji za grijanje i hlađenje
- grijani bazen putem dizalice topline
- fasada izvedena ETICS sustavom (10 cm stiropor), kombinacija silikonske i kamene fasade

Planirani početak gradnje: 25.10.2025.
Završetak roh-bau faze: 31.01.2026.
Završetak kompletne gradnje: 01.08.2026.

Savršen spoj moderne arhitekture, kvalitete i komfora – idealan dom za miran život ili luksuzno ljetovanje.

Zainteresirane kupce molimo da nas kontaktiraju putem:

Telefon: +385 99 755 3336
Email: anja@esquire.hr

ID CODE: 932

Anja Glavočević
Agent s licencom
Mob: +385 99 755 3336
E-mail: anja@esquire.hr
www.esquire.hr
Značajke
Vrsta
Obiteljska kuća
Ugovor
Prodaja
Katovi zgrade
1
Dizalo
Ne
Površina
251 m²
Prostorije
5
Spavaće sobe
4
Kupaonice
2
Balkon
Ne
Terasa
Da
Garažno mjesto, parkirna mjesta
1 u garaži, 2 na zajedničkom parkingu
Grijanje
Samostalno, zrak
Klimatizacija
Samostalno, hlađenje/grijanje
Informacije o cijeni
Cijena
€ 640.000
Cijena po m²
2.550 €/m²
Energetska učinkovitost
  • Godina izgradnje

    2026
  • Grijanje

    Samostalno, zrak
  • Klima uređaj

    Samostalno, hlađenje/grijanje
  • Energetski certifikat

    Neklasificirano
Tlocrt
Otkrijte svaki kutak nekretnine
+4
Dodatne mogućnosti

Obratite se oglašivaču

Ili