Stan Petrčane, Zadar - Okolica, Petrčane - Kožino, Zadar

€ 1.453.500
5
171 m²
2
2
Ne
Balkon
Terasa

Bilješka

Oglas ažuriran 22. 01. 2026.
Opis

referenca: 1002

PETRČANE - PUNTA SKALA, Penthouse S4 –30 m od mora – exkluzivni penthouse na 2. katu s krovnom terasom!!!!

PETRČANE – PUNTA SKALA, PENTHOUSE S4 – EKSKLUZIVNI PENTHOUSE NA 2. KATU S KROVNOM TERASOM!!

Prodaje se penthouse S4 koji se nalazi na 2. katu moderne zgrade, smješten na atraktivnoj lokaciji, u jednom od najpoželjnijih dijelova Petrčana – Punta Skala. Ovaj ekskluzivni penthouse prostire se cjelokupnim drugim katom zgrade i predstavlja spoj suvremene arhitekture, funkcionalnog rasporeda, kvalitetnih materijala i iznimno prostranog vanjskog prostora, idealnog za obiteljski život, luksuzni odmor ili investiciju u turizam višeg standarda.

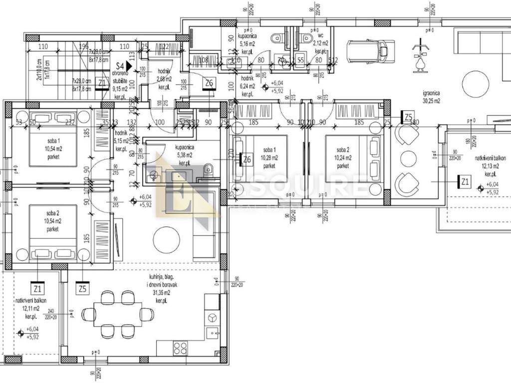
TLOCRT I POVRŠINE – STAMBENI DIO (129,93 m²)
Kuhinja, blagovaonica i dnevni boravak: 31,35 m²
Igraonica (ili drugi dnevni open space): 30,25 m²
Spavaća soba 1: 10,54 m²
Spavaća soba 2: 10,54 m²
Spavaća soba 3: 10,28 m²
Spavaća soba 4: 10,24 m²
Kupaonica 1: 5,38 m²
Kupaonica 2: 5,16 m²
Odvojeni WC: 2,12 m²
Hodnik 1: 6,24 m²
Hodnik 2: 2,68 m²
Hodnik 3: 5,15 m²
Ukupno – stambeni dio: 129,93 m²
PRIPATCI PENTHOUSE-A
Natkriveni balkon 1: 12,11 m²
Natkriveni balkon 2: 12,13 m²
Natkriveno parkirališno mjesto: 13,75 m²
Nenatkriveno parkirališno mjesto: 13,75 m²
Krovna terasa: 79,45 m²
Ukupna površina s pripatcima: 261,12 m²
Ukupna korisna vrijednost površine: 171,55 m²

OPIS UREĐENJA:
Penthouse S4 pruža vrhunski komfor i prostranost, s četiri prostrane spavaće sobe, dvije elegantne kupaonice te dva open-space dnevna boravka povezana s kuhinjom i blagovaonicom, pružajući savršenu ravnotežu privatnosti i zajedničkog prostora. Vizualizacija prikazuje dva krila – roditeljsko i dječje, a jedna soba u roditeljskom krilu može biti uređena kao kućni ured.
Velike staklene stijene omogućuju obilje prirodnog svjetla i izravan izlaz na natkrivene balkone i prostranu krovnu terasu, idealnu za luksuzni lounge, jacuzzi, ljetnu kuhinju ili sunčalište s pogledom na okruženje.
Tokom izgradnje objekta, moguće je odvojiti penthouse u dva zasebna stana prema potrebi kupca. Svi stanovi bit će uređeni s parketima i keramikom prve klase, uz suvremeni estetski i funkcionalni koncept.

LOKACIJA:
Petrčane su jedno od najcjenjenijih priobalnih mjesta zadarske regije, poznato po kristalno čistom moru, uređenim plažama, ugodnoj klimi te rezidencijalno-turističkom okruženju.
Objekt se nalazi u blizini luksuznog kompleksa Falkensteiner Punta Skala, što značajno podiže vrijednost nekretnine i investicijski potencijal.
Prednosti lokacije:
- Uređene plaže i iznimna čistoća mora
- Blizina Zadra i Nina
- Mirno okruženje i mediteranska priroda
- Nacionalni parkovi i parkovi prirode u blizini
- Odlična prometna povezanost
- Prirodan ambijent – borova šuma, maslinici, mir i privatnost

DOKUMENTACIJA UREDNA, VLASNIŠTVO 1/1!

Zainteresirane kupce molimo da nas kontaktiraju putem:

Telefon: +385 91 788 2020
Email: jelena@esquire.hr

ID CODE: 1002

Jelena Kolovrat Lisica
Ovlašteni posrednik
Mob: +385 91 788 2020
E-mail: jelena@esquire.hr
www.esquire.hr
Značajke
Vrsta
Stan
Ugovor
Prodaja
Kat
2 kat
Katovi zgrade
2
Dizalo
Ne
Površina
171 m²
Prostorije
5
Spavaće sobe
4
Kupaonice
2
Balkon
Da
Terasa
Da
Garažno mjesto, parkirna mjesta
2 na zajedničkom parkingu
Klimatizacija
Samostalno, hlađenje/grijanje
Informacije o cijeni
Cijena
€ 1.453.500
Cijena po m²
8.500 €/m²
Energetska učinkovitost
  • Godina izgradnje

    2025
  • Klima uređaj

    Samostalno, hlađenje/grijanje
  • Energetski certifikat

    Neklasificirano
Otkrijte svaki kutak nekretnine
+20
Dodatne mogućnosti

Obratite se oglašivaču

Ili