Trosobni stan Podmurvice, Rijeka, Mlaka, Rijeka

€ 450.000
3
100 m²
2
2
Ne

Bilješka

Oglas ažuriran 10. 02. 2026.
Opis

referenca: 22886

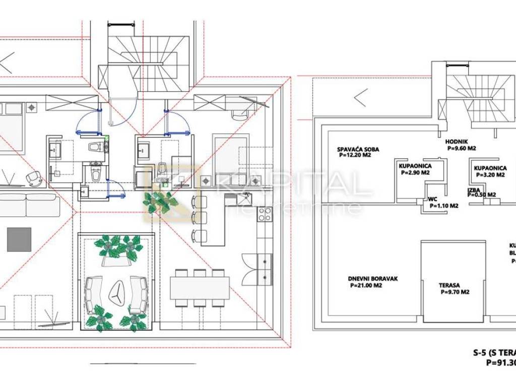
Rijeka širi centar, 100 m2, penthouse

Posredujemo u prodaji stana u novogradnji nadomak Centra Rijeke. Ovaj stan modernog dizajna ima dvije sobe i dnevni boravak te parkirno mjesto u ograđenom parkingu. Prilikom gradnje korišteni su vrhunski materijali. Fasada je stiropor od 8cm. Za sve dodatne informacije molimo nazovite 099/219 6353 ili 091/540 8520

ID CODE: 22886

Dina Komadina
Mob: 091/540-8520
Tel: 051/227-733
www.kapitalnekretnine.hr
Značajke
Vrsta
Stan
Ugovor
Prodaja
Kat
2 kat
Katovi zgrade
2
Dizalo
Ne
Površina
100 m²
Prostorije
3
Spavaće sobe
2
Kupaonice
2
Balkon
Ne
Terasa
Ne
Garažno mjesto, parkirna mjesta
1 na zajedničkom parkingu
Informacije o cijeni
Cijena
€ 450.000
Cijena po m²
4.500 €/m²
Energetska učinkovitost
  • Energetski certifikat

    Neklasificirano
Dodatne mogućnosti

Obratite se oglašivaču

Ili