Višeobiteljska kuća Remete, Maksimir, Bukovac - Remete, Zagreb

€ 349.000
5+
230 m²
3
Ne
Balkon
Terasa

Bilješka

Oglas ažuriran 23. 04. 2026.
Opis

referenca: 5627

Remete, dvojna kuća s tri stambene jedinice, 230 m2

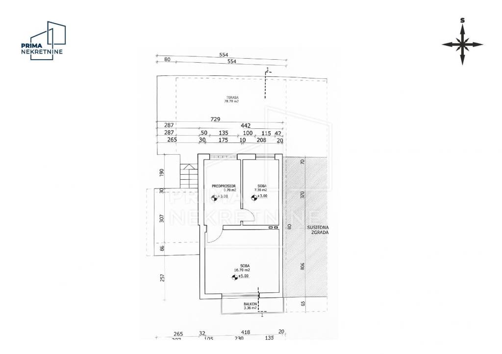
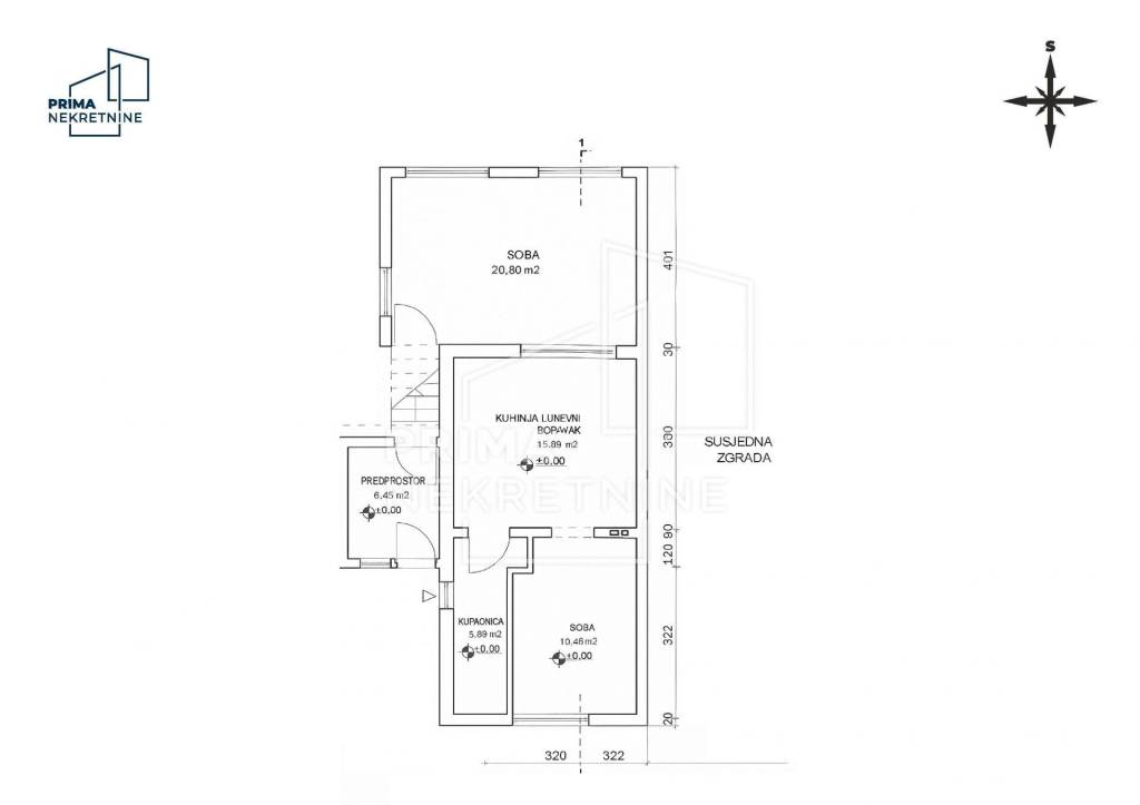
Prodaje se kuća na tri etaže, ukupne površine 230 m2 sa okućnicom od 650 m2 u mirnoj ulici u Remetama.

Svaka etaža ima zaseban ulaz, a sastoji se od prizemlja u kojem se nalazi: kuhinja s blagovaonicom, kupaonica, dnevni boravak, dvije spavaće sobe i terasa od 50 m2, prvog kata u kojoj se nalaze dvije spavaće sobe, kuhinja, predsoblje, kupaonica i terasa od 30 m2 te drugog kata, odnosno potkrovlja, koji se sastoji od spremišta, velikog dnevnog boravka, kuhinje, spavaće sobe, kupaonice i terase od 18 m2.

Uz kuću dolazi vrt i okućnica od 650 m2 te tri nenatkrivena parkirna mjesta.

Kuća je sagrađena 1964. godine, a 2023. godine je potpuno renovirana - priključci struje, vode, plina, kanalizacije, uvedeni su optički kablovi za Internet, pojačani su i hidroizolirani temelji, napravljena je nova fasada s krovom te su postavljeni novi PVC prozori.

Smještena u mirnoj ulici s dobrom prometnom povezanošću, kuća se nalazi 500 metara od Osnovne škole Remete i tri autobusne stanice za Donje Svetice, Kaptol i Kvaternikov trg (linije 226, 207, 203).

ID CODE: 5627
Značajke
Vrsta
Višeobiteljska kuća
Ugovor
Prodaja
Katovi zgrade
2
Dizalo
Ne
Površina
230 m²
Prostorije
5+
Spavaće sobe
5
Kupaonice
3
Balkon
Da
Terasa
Da
Garažno mjesto, parkirna mjesta
3 na zajedničkom parkingu
Grijanje
Centralno, podno grijanje
Informacije o cijeni
Cijena
€ 349.000
Cijena po m²
1.517 €/m²
Energetska učinkovitost

Potrošnja energije

A

Tlocrt
Otkrijte svaki kutak nekretnine
+18
Dodatne mogućnosti

Obratite se oglašivaču

Ili