Obiteljska kuća Vukomerec, Peščenica - Žitnjak, Vukomerec-Borongaj, Zagreb

€ 429.000
5+
360 m²
2
Ne

Bilješka

Oglas ažuriran 22. 01. 2026.
Opis

referenca: 5813

Vukomerec, kuća s tri etaže 360 m2 na zemljištu 567 m2

U ponudi je prostrana obiteljska kuća u Vukomercu ukupne NKP površine 360 m2, smještena na zemljištu površine 567 m2, idealna za veću obitelj ili kao investicija.

Razvedena je na tri etaže te nudi funkcionalan i fleksibilan raspored prostora.
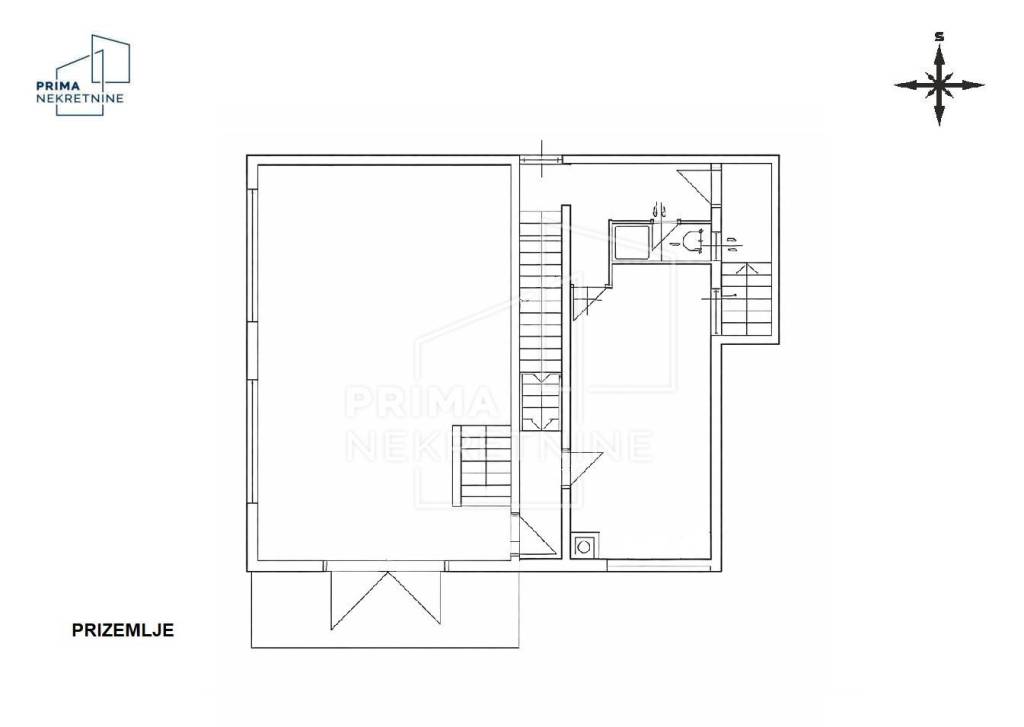
Prizemlje se sastoji od ulaznog hodnika, tri sobe, dnevnog boravka s kuhinjom te kupaonice s WC-om.
Na prvom katu nalazi se ulazni hodnik, dnevni boravak, dvije sobe, kupaonica te natkrivena terasa koja pruža dodatni prostor za boravak i opuštanje.
Drugi kat, koji je ujedno i zadnja etaža, obuhvaća boravak, kuhinju i dvije sobe, a zbog položaja u potkrovlju ima kose stropove koji prostoru daju poseban karakter.

U dvorištu se nalazi garaža te šest vanjskih parkirnih mjesta, što ovu nekretninu čini iznimno praktičnom za veće kućanstvo ili više korisnika.

Kuća se nalazi na mirnoj lokaciji, a istovremeno je dobro prometno povezana i u blizini svih važnih sadržaja.

ID CODE: 5813
Značajke
Vrsta
Obiteljska kuća
Ugovor
Prodaja
Katovi zgrade
2
Dizalo
Ne
Površina
360 m²
Prostorije
5+
Spavaće sobe
3
Kupaonice
2
Balkon
Ne
Terasa
Ne
Garažno mjesto, parkirna mjesta
1 u garaži, 6 na zajedničkom parkingu
Grijanje
Centralno, podno grijanje
Informacije o cijeni
Cijena
€ 429.000
Cijena po m²
1.192 €/m²
Energetska učinkovitost
  • Godina izgradnje

    1978
  • Grijanje

    Centralno, podno grijanje
  • Energetski certifikat

    Neklasificirano
Tlocrt
Otkrijte svaki kutak nekretnine
+9
Dodatne mogućnosti

Obratite se oglašivaču

Ili